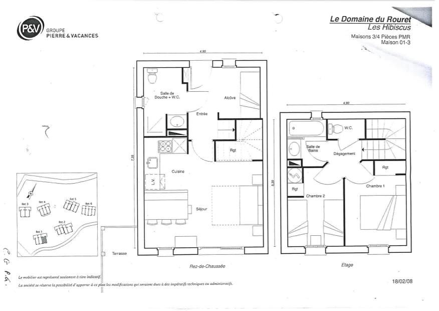
Terasse
ExtérieurRéf. 0 • 21.97 m²




Fiche lot
07120 Grospierres • Ardèche
Type
Maison
Typologie
2 chambres /T3
Surface
55 m²
Niveau
Rez-de-chaussée
Référence
01.3
Réf. 0 • 21.97 m²
Budget du lot
Prix total affiché pour ce lot et variantes disponibles selon le montage.
144 885 €
Composition du prix
Les repères utiles pour situer la résidence.
Adresse
Village Le Rouret en Ardèche - Le Domaine du Rouret
Ville
07120 Grospierres
Ardèche • Auvergne-Rhône-Alpes
Livraison prévue
4ème trimestre 2005
Actabilité
Le programme est actable
Classe énergie
Promoteur
Pierre & Sens
À propos du programme
Situé au cœur de l'Ardèche, le Village se situe sur un domaine de 80 ha, dans les montagnes, à moins de 2h de Montpellier, 2h30 de Marseille et 3h de Lyon.
Autour de ce magnifique village avec arboretum labellisé Clef Verte, une réserve naturelle protégée et un refuge LPO (Ligue pour la Protection des Oiseaux) de 12 hectares a été créé en 2021.
Composé d'appartements du Studio cabine/4 personnes au 2 pièces/4 personnes et des Maisons 2 pièces/4 personnes à 4 pièces/8 personnes, tous avec terrasse ou balcon.
Il propose de nombreux loisirs sur place : 2 espaces aquatiques (incluant 4 piscines extérieures, une rivière sauvage à descendre en bouée), tennis, minigolf, tir à l'arc, centre équestre, bowling...et à proximité : canoë-kayak, canyoning, escalade, parc aventure, découvertes de la région : grottes, cavernes, balade...
Avis expert
Il s'agit d'une superbe opportunité d'investissement alliant une belle rentabilité au plaisir de pouvoir profiter d'un domaine magnifique.
Avec son clocher, ses rues piétonnes, ses bâtisses aux tons pastel, et même un château du 19ème siècle, il conjugue tous les charmes de l'Ardèche, pour un patrimoine de qualité.
Mon estimation
Calculez votre capacité d'emprunt pour une estimation personnalisée.
Estimatif mensuel moyen sur 10 ans
Cash-flow mensuel
--
Estimatif mensuel moyen sur 10 ans
A retenir
07120 Grospierres
Disponible à l'achatPrix du logement
144 885 €
T.T.CMon estimation
Calculez votre capacité d'emprunt pour une estimation personnalisée.
Estimatif mensuel moyen sur 10 ans
Cash-flow mensuel
--
Estimatif mensuel moyen sur 10 ans
Livraison
4ème trimestre 2005
Parcours d'achat
Étape 1
Comparez les lots, les plans et les prestations pour identifier le bien qui vous correspond.
Étape 2
Remplissez votre demande d'achat en ligne, puis validez les informations et documents demandés.
Étape 3
Finalisez votre plan de financement, puis validez les pièces demandées pour sécuriser l'opération.
Étape 4
Suivez les dernières formalités avec votre conseiller jusqu'à la signature définitive et la livraison.
Demande d'achat 100% en ligne
Renseignez vos informations et déposez vos pièces justificatives directement depuis votre espace sécurisé.
Informations importantes
Dépôt
1 500 EUR
Versé au notaire 10 jours après signature
Prestations
À la carte
Travaux et parking chiffrés selon lot
Garanties
VEFA + GFA
Cadre légal sécurisé
Frais notaire
2-3%
vs 7-8% dans l'ancien
Afin de valider votre achat, vous devrez verser un dépôt de garantie par virement auprès du notaire, 10 jours après la signature de votre contrat de réservation. Le dépôt affiché (1 500 EUR) correspond à une moyenne indicative et peut varier selon le promoteur.
L'activité de promotion immobilière est très encadrée. Pour la vente de logements neufs, c'est le régime de VEFA qui encadre l'opération.
Le montant dépend du lot, du promoteur et des choix retenus. Les prix fixes ci-dessous concernent uniquement les services financiers.
Liste non exhaustive, tarifs HT soumis à modification.
Acheter dans le neuf vous permet de réaliser une économie significative sur les frais de notaire.
Le promoteur de cette résidence est couvert par une Garantie Financière d'Achèvement (GFA). Cette garantie, réglementée par la loi, atteste de sa capacité à mener à bien la construction du projet.
Pour valider votre achat, le promoteur vous demandera :