Étape 1
Choisir et comparer
Comparez les lots, les plans et les prestations pour identifier le bien qui vous correspond.




Fiche lot
42100 Saint-Étienne • Loire
Type
Appartement
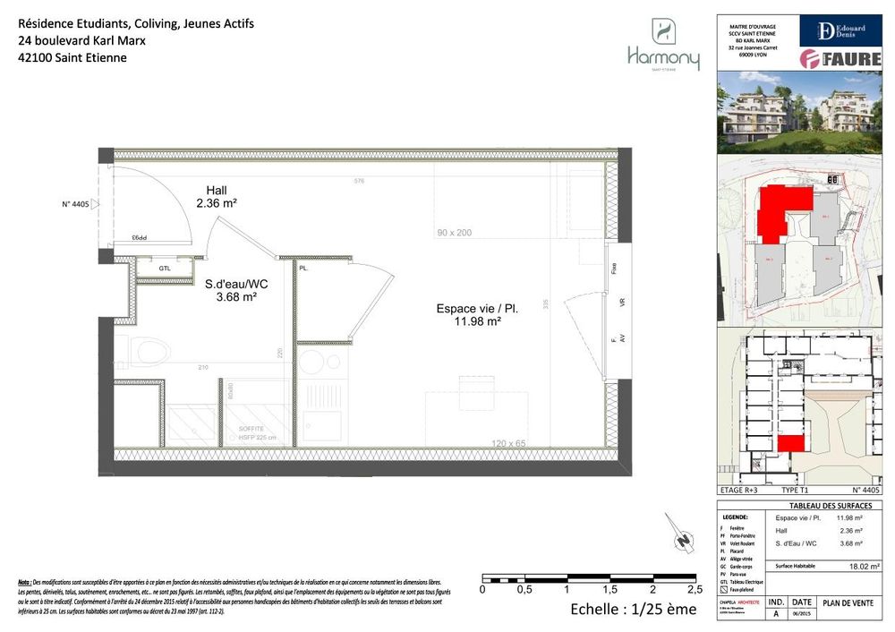
Typologie
Studio /T1
Surface
18 m²
Niveau
3ème étage
Orientation
EST
Référence
4405
Budget du lot
Prix total affiché pour ce lot et variantes disponibles selon le montage.
98 034 €
Composition du prix
Les repères utiles pour situer la résidence.
Adresse
0024 BD KARL MARX
Ville
42100 Saint-Étienne
Loire • Auvergne-Rhône-Alpes
Livraison prévue
2ème trimestre 2027
Classe énergie
Promoteur
NEXITY
À propos du programme
Destinés aux étudiants et aux jeunes actifs, seuls ou en colocation, les appartements sont meublés, équipés et dotés de tout le confort du neuf.
Balcon ou terrasse privative complètent le portrait de cette résidence tournée vers le bien-être de ses usagers.
Saint-Étienne est aujourd'hui à la tête d'une métropole regroupant 53 communes.
Terre d'innovations et de créations sous toutes ses formes, elle attire, entre autres, quelques 30 000 étudiants chaque année.
En phase avec les besoins de la ville qui compte accueillir 10 000 étudiants de plus d'ici 2035, Harmony propose des logements sous la forme de studio, ou de T3 pour colocation.
UNE RÉSIDENCE AUX MULTIPLES SERVICES : salle de coworking, espace déjeuner, fitness, laverie et buanderie, connexion internet haut débit, locaux à vélos en sous-sol.
Achat Mobilier en sus :
- T1 : 1 956€TTC
- T4 : 5 460€TTC
RESIDENCE NON ELIGIBLE A LA RECUPERATION DE TVA
Documents utiles
Les pièces les plus utiles pour comprendre le programme.
Ce que propose la résidence
Équipements et services communs
Isolation thermique
Isolation phonique
Isolation acoustique
Local à vélo
Visiophone par votre smartphone
Ses points forts
Ce qui rend ce programme unique
RE 2020
Ascenseur
Fibre optique
Mon estimation
Calculez votre capacité d'emprunt pour une estimation personnalisée.
Estimatif mensuel moyen sur 10 ans
Cash-flow mensuel
--
Estimatif mensuel moyen sur 10 ans
Les points de repère utiles autour du programme.
Transports :
11 min à vélo du tramway
Commerces :
5 min à pied
Écoles :
7 min à pied
Universités :
15 min à pied
A retenir
42100 Saint-Étienne
Disponible à l'achatPrix du logement
98 034 €
T.T.CMon estimation
Calculez votre capacité d'emprunt pour une estimation personnalisée.
Estimatif mensuel moyen sur 10 ans
Cash-flow mensuel
--
Estimatif mensuel moyen sur 10 ans
Livraison
2ème trimestre 2027
Parcours d'achat
Étape 1
Comparez les lots, les plans et les prestations pour identifier le bien qui vous correspond.
Étape 2
Remplissez votre demande d'achat en ligne, puis validez les informations et documents demandés.
Étape 3
Finalisez votre plan de financement, puis validez les pièces demandées pour sécuriser l'opération.
Étape 4
Suivez les dernières formalités avec votre conseiller jusqu'à la signature définitive et la livraison.
Demande d'achat 100% en ligne
Renseignez vos informations et déposez vos pièces justificatives directement depuis votre espace sécurisé.
Informations importantes
Dépôt
1 500 EUR
Versé au notaire 10 jours après signature
Prestations
À la carte
Travaux et parking chiffrés selon lot
Garanties
VEFA + GFA
Cadre légal sécurisé
Frais notaire
2-3%
vs 7-8% dans l'ancien
Afin de valider votre achat, vous devrez verser un dépôt de garantie par virement auprès du notaire, 10 jours après la signature de votre contrat de réservation. Le dépôt affiché (1 500 EUR) correspond à une moyenne indicative et peut varier selon le promoteur.
L'activité de promotion immobilière est très encadrée. Pour la vente de logements neufs, c'est le régime de VEFA qui encadre l'opération.
Le montant dépend du lot, du promoteur et des choix retenus. Les prix fixes ci-dessous concernent uniquement les services financiers.
Liste non exhaustive, tarifs HT soumis à modification.
Acheter dans le neuf vous permet de réaliser une économie significative sur les frais de notaire.
Le promoteur de cette résidence est couvert par une Garantie Financière d'Achèvement (GFA). Cette garantie, réglementée par la loi, atteste de sa capacité à mener à bien la construction du projet.
Pour valider votre achat, le promoteur vous demandera :