Handee

Appartement T2 neuf à Rillieux-la-Pape — FLORILLA 2

17 Rue du Drevieux 69140 Rillieux-la-Pape URBAT
Plan
Plan
Image 2
1 photoPlan disponible

Fiche lot

Caractéristiques du logement

69140 Rillieux-la-Pape • Rhône

Programme FLORILLA 2
Actable à partir du 31 décembre 2026 Livraison 4ème trimestre 2028

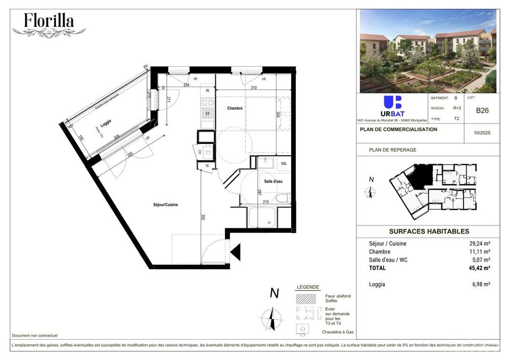
Type

Appartement

Typologie

1 chambre /T2

Surface

45 m²

Niveau

2ème étage

Référence

B26

Annexes et extérieurs

2 élément(s)
Parking
Stationnement

Réf. 129

Terasse
Extérieur

Réf. 06.98 m²

Solutions d'investissement disponibles

Résidence Principale Meublé Location Nue Jeanbrun

Budget du lot

Prix total affiché pour ce lot et variantes disponibles selon le montage.

222 000 €

Composition du prix

Appartement 222 000 €
Total affiché 222 000 €

Le programme

Les repères utiles pour situer la résidence.

Adresse

17 Rue du Drevieux

Ville

69140 Rillieux-la-Pape

Rhône • Auvergne-Rhône-Alpes

Livraison prévue

4ème trimestre 2028

Actabilité

Le programme sera actable à partir du 31 décembre 2026

Classe énergie

Promoteur

URBAT

À propos du programme

Florilla – Votre nouvelle adresse nature à Rillieux-la-Pape, aux portes de Lyon.

Bienvenue à Florilla, un programme immobilier neuf à Rillieux-la-Pape qui combine le charme d’un village verdoyant et la proximité immédiate de Lyon.

Idéalement située, la résidence s’organise autour d’un vaste jardin paysager, véritable havre de tranquillité pensé pour le bien-être et la douceur de vivre.

À seulement quelques minutes à pied, vous retrouvez tout ce qui simplifie le quotidien : commerces, écoles, parc Brosset, transports en commun…

Un emplacement stratégique, parfait pour les familles, les actifs ou toute personne cherchant à profiter d’une qualité de vie exceptionnelle.

Les environs offrent aussi un formidable terrain de jeu nature : Fort de Vancia, bois de Sermenaz, berges du Rhône… autant d’escapades accessibles en quelques coups de pédale.

Les appartements neufs, du 2 au 4 pièces, séduisent par leurs volumes lumineux, leurs agencements modernes et leurs terrasses ou jardins privatifs conçus pour prolonger les moments de détente.

Prestations soignées, confort thermique renforcé et sobriété énergétique font de Florilla une résidence aussi agréable à vivre que pérenne pour un investissement immobilier.

Que vous souhaitiez devenir propriétaire près de Lyon ou réaliser un investissement dans l’immobilier neuf, Florilla vous offre une adresse privilégiée où nature, praticité et qualité de vie ne font qu’un.

Florilla – L’équilibre parfait entre charme, confort et modernité.

Mon estimation

Calculez votre capacité d'emprunt pour une estimation personnalisée.

Estimatif mensuel moyen sur 10 ans

Cash-flow mensuel

--

Loyer estimé --
Mensualité prêt --
Taxe foncière --
Charges --
Impôt sur les loyers --

Estimatif mensuel moyen sur 10 ans

Chargement de la carte...

A retenir

Appartement B26

69140 Rillieux-la-Pape

Disponible à l'achat

Prix du logement

222 000 €

T.T.C
t.v.a 20%

Mon estimation

Calculez votre capacité d'emprunt pour une estimation personnalisée.

Estimatif mensuel moyen sur 10 ans

Cash-flow mensuel

--

Loyer estimé --
Mensualité prêt --
Taxe foncière --
Charges --
Impôt sur les loyers --

Estimatif mensuel moyen sur 10 ans

Trouver un conseiller

Livraison

URBAT

4ème trimestre 2028

Parcours d'achat

Acheter votre logement en 4 étapes

  1. Étape 1

    Choisir et comparer

    1

    Comparez les lots, les plans et les prestations pour identifier le bien qui vous correspond.

  2. Étape 2

    Réserver le lot

    2

    Remplissez votre demande d'achat en ligne, puis validez les informations et documents demandés.

  3. Étape 3

    Financer et valider

    3

    Finalisez votre plan de financement, puis validez les pièces demandées pour sécuriser l'opération.

  4. Étape 4

    Signer et préparer la remise des clés

    4

    Suivez les dernières formalités avec votre conseiller jusqu'à la signature définitive et la livraison.

Demande d'achat 100% en ligne

Renseignez vos informations et déposez vos pièces justificatives directement depuis votre espace sécurisé.

Informations importantes

Ce qu'il faut savoir avant d'acheter

Dépôt

1 500 EUR

Versé au notaire 10 jours après signature

Prestations

À la carte

Travaux et parking chiffrés selon lot

Garanties

VEFA + GFA

Cadre légal sécurisé

Frais notaire

2-3%

vs 7-8% dans l'ancien

Frais et dépôt de garantie

Afin de valider votre achat, vous devrez verser un dépôt de garantie par virement auprès du notaire, 10 jours après la signature de votre contrat de réservation. Le dépôt affiché (1 500 EUR) correspond à une moyenne indicative et peut varier selon le promoteur.

Dépôt de garantie : 1 500 EUR

Cadre légal et étapes (VEFA)

L'activité de promotion immobilière est très encadrée. Pour la vente de logements neufs, c'est le régime de VEFA qui encadre l'opération.

Recherche du terrainMontage de l'opérationMarché travauxSuivi de l'opérationCommercialisationConstructionLivraisonSuivi des garanties

Prestations complémentaires (optionnelles)

Le montant dépend du lot, du promoteur et des choix retenus. Les prix fixes ci-dessous concernent uniquement les services financiers.

  • Travaux modificatifs du logementSur devis
  • Place de parking supplémentaireSelon le lot
  • Courtier en financement2 500 EUR
  • Négociation assurance crédit99 EUR
  • Gestion locativeSur devis

Liste non exhaustive, tarifs HT soumis à modification.

Frais de notaire réduits

2-3%dans le neufvs7-8%ancien

Acheter dans le neuf vous permet de réaliser une économie significative sur les frais de notaire.

Garantie financière (GFA)

Le promoteur de cette résidence est couvert par une Garantie Financière d'Achèvement (GFA). Cette garantie, réglementée par la loi, atteste de sa capacité à mener à bien la construction du projet.

Sécurité Financière : La GFA garantit que le financement nécessaire à l'achèvement du projet est en place.
Livraison Conforme : Vous pouvez avoir confiance dans le fait que la résidence sera livrée selon les normes convenues.
Sérénité pour les Acheteurs : En tant qu'acquéreur, cette garantie vous assure une transition en douceur vers votre nouveau logement.

Documents requis pour l'achat

Pour valider votre achat, le promoteur vous demandera :

  • 1 Pièce d'identité officielle avec photo
  • 2 Avis d'imposition
  • 3 Justificatif de domicile
  • 4 Dépôt de garantie par virement bancaire