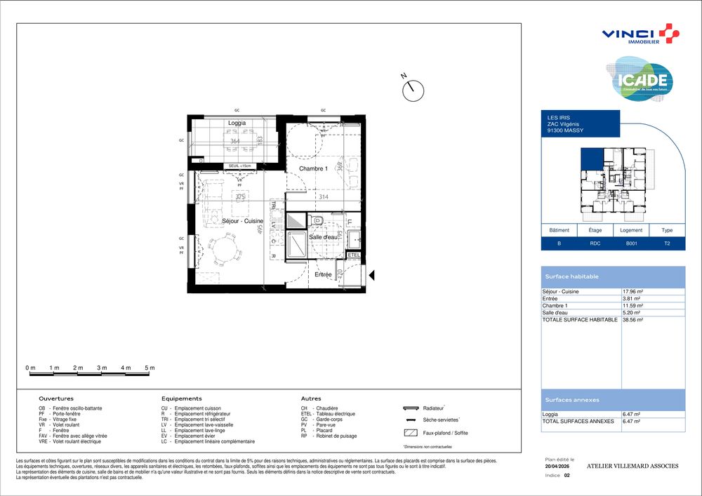
Loggia
ExtérieurRéf. 1 • 6.48 m²

Fiche lot
91300 Massy • Essonne
Type
Appartement
Typologie
1 chambre /T2
Surface
39 m²
Niveau
Rez-de-chaussée
Orientation
NORD ESTNORD OUEST
Référence
B001
Réf. 1 • 6.48 m²
Budget du lot
Prix total affiché pour ce lot et variantes disponibles selon le montage.
236 000 €
Composition du prix
Prix selon le montage
LLI TVA 10%
Selon le montage LLI retenu pour le lot.
Les repères utiles pour situer la résidence.
Adresse
Rue de Vilgénis
Ville
91300 Massy
Essonne • Île-de-France
Livraison prévue
4ème trimestre 2028
Actabilité
Le programme sera actable à partir du 30 novembre 2026
Classe énergie
Promoteur
VINCI
À propos du programme
PROCHAINEMENT À MASSY (91) – Dans le quartier Canopée, au plus près de la nature, VINCI Immobilier vous invite à découvrir LES IRIS, la dernière résidence réalisée au cœur du Parc de Vilgénis.
Du 2 au 5 pièces, les appartements, aux prestations soignées, bénéficient tous d’espaces extérieurs généreux : balcons, loggias, terrasses et attiques offrant des vues dégagées sur le parc.
Vous serez séduits par une vraie vie de quartier avec des commerces, écoles et services à deux pas.
Les gares RER B/C, Tram T12 et TGV (à 1,2 km), vous permettent de rejoindre les pôles d’activités voisins en quelques minutes et Paris en 30 minutes.
L’arrivée prochaine du métro 18 du Grand Paris Express complètera cette offre pour faciliter davantage vos déplacements.
Pour votre confort et votre sécurité, la résidence sera certifiée NF Habitat HQE et raccordée au réseau de chaleur urbain, garantissant performance énergétique et respect de l’environnement.
Mon estimation
Calculez votre capacité d'emprunt pour une estimation personnalisée.
Estimatif mensuel moyen sur 10 ans
Cash-flow mensuel
--
Estimatif mensuel moyen sur 10 ans
A retenir
91300 Massy
Disponible à l'achatPrix du logement
236 000 €
T.T.CMon estimation
Calculez votre capacité d'emprunt pour une estimation personnalisée.
Estimatif mensuel moyen sur 10 ans
Cash-flow mensuel
--
Estimatif mensuel moyen sur 10 ans
Livraison
4ème trimestre 2028
Parcours d'achat
Étape 1
Comparez les lots, les plans et les prestations pour identifier le bien qui vous correspond.
Étape 2
Remplissez votre demande d'achat en ligne, puis validez les informations et documents demandés.
Étape 3
Finalisez votre plan de financement, puis validez les pièces demandées pour sécuriser l'opération.
Étape 4
Suivez les dernières formalités avec votre conseiller jusqu'à la signature définitive et la livraison.
Demande d'achat 100% en ligne
Renseignez vos informations et déposez vos pièces justificatives directement depuis votre espace sécurisé.
Informations importantes
Dépôt
1 500 EUR
Versé au notaire 10 jours après signature
Prestations
À la carte
Travaux et parking chiffrés selon lot
Garanties
VEFA + GFA
Cadre légal sécurisé
Frais notaire
2-3%
vs 7-8% dans l'ancien
Afin de valider votre achat, vous devrez verser un dépôt de garantie par virement auprès du notaire, 10 jours après la signature de votre contrat de réservation. Le dépôt affiché (1 500 EUR) correspond à une moyenne indicative et peut varier selon le promoteur.
L'activité de promotion immobilière est très encadrée. Pour la vente de logements neufs, c'est le régime de VEFA qui encadre l'opération.
Le montant dépend du lot, du promoteur et des choix retenus. Les prix fixes ci-dessous concernent uniquement les services financiers.
Liste non exhaustive, tarifs HT soumis à modification.
Acheter dans le neuf vous permet de réaliser une économie significative sur les frais de notaire.
Le promoteur de cette résidence est couvert par une Garantie Financière d'Achèvement (GFA). Cette garantie, réglementée par la loi, atteste de sa capacité à mener à bien la construction du projet.
Pour valider votre achat, le promoteur vous demandera :