Étape 1
Choisir et comparer
Comparez les lots, les plans et les prestations pour identifier le bien qui vous correspond.




Fiche lot
91400 Orsay • Essonne
Type
Appartement
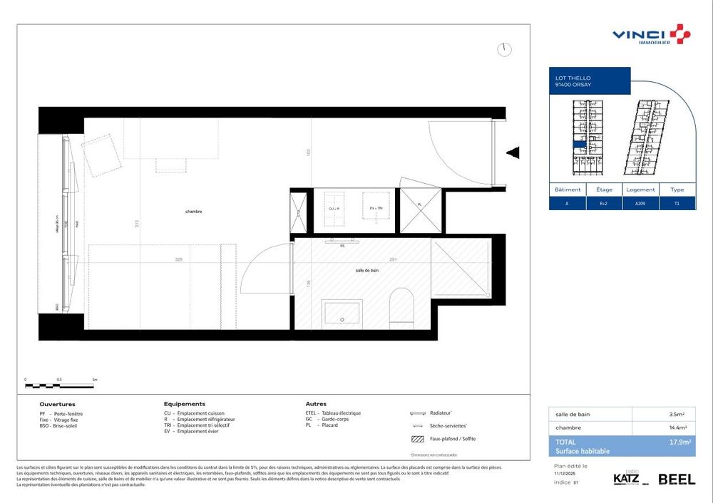
Typologie
Studio /T1
Surface
18 m²
Niveau
2ème étage
Orientation
OUEST
Référence
LA209
Budget du lot
Prix total affiché pour ce lot et variantes disponibles selon le montage.
143 221 €
Composition du prix
Les repères utiles pour situer la résidence.
Adresse
1 Parvis de l'hôpital
Ville
91400 Orsay
Essonne • Île-de-France
Livraison prévue
4ème trimestre 2028
Actabilité
Le programme sera actable à partir du 31 octobre 2026
Classe énergie
Promoteur
VINCI
À propos du programme
Résidence étudiante à Orsay (91).
Le statut LMNP (Loueur Meublé Non Professionnel) permet de bénéficier d'avantages fiscaux.
Les revenus d'une location meublée bénéficient d'abattements et de déductions plus importants que les revenus perçus sur un logement loué nu.
Possibilité de revenus faiblement imposés pendant plus de 10 ans.
La future résidence STUDENT FACTORY offre un cadre de vie exceptionnel aux étudiants : des appartements confortables entièrement équipés et « prêts à vivre », des espaces communs adaptés aux études avec de nombreux services, ainsi qu'un emplacement de choix.
À seulement 23 kilomètres de la porte de Saint-Cloud, Orsay se distingue comme le cœur du plateau de Saclay, un véritable foyer d'innovation à la française.
L'Université Paris-Saclay, classée n°1 en Europe et dans le Top 20 mondial pour les sciences, attire étudiants et chercheurs du monde entier.
Le territoire accueille également de grandes écoles prestigieuses : Polytech Paris-Saclay, ENSAE, ENSTA, CentraleSupélec, AgroParisTech.
La gare RER Le Guichet, à proximité immédiate, permet de rejoindre le centre de Paris en moins de 40 minutes.
En 2026, la ligne 18 du Grand Paris Express desservira les gares Université Paris-Saclay et Polytechnique, à proximité de la résidence.
Documents utiles
Les pièces les plus utiles pour comprendre le programme.
Ce que propose la résidence
Équipements et services communs
Isolation phonique
Local à vélo
Parking en sous-sol
Isolation thermique
Visiophone
Isolation acoustique
Ses points forts
Ce qui rend ce programme unique
RE 2020
Mon estimation
Calculez votre capacité d'emprunt pour une estimation personnalisée.
Estimatif mensuel moyen sur 10 ans
Cash-flow mensuel
--
Estimatif mensuel moyen sur 10 ans
Les points de repère utiles autour du programme.
Transports :
3 min à vélo de la métro
Commerces :
4 min à vélo
Écoles :
8 min à vélo
Universités :
5 min à vélo
A retenir
91400 Orsay
Disponible à l'achatPrix du logement
143 221 €
T.T.CMon estimation
Calculez votre capacité d'emprunt pour une estimation personnalisée.
Estimatif mensuel moyen sur 10 ans
Cash-flow mensuel
--
Estimatif mensuel moyen sur 10 ans
Livraison
4ème trimestre 2028
Parcours d'achat
Étape 1
Comparez les lots, les plans et les prestations pour identifier le bien qui vous correspond.
Étape 2
Remplissez votre demande d'achat en ligne, puis validez les informations et documents demandés.
Étape 3
Finalisez votre plan de financement, puis validez les pièces demandées pour sécuriser l'opération.
Étape 4
Suivez les dernières formalités avec votre conseiller jusqu'à la signature définitive et la livraison.
Demande d'achat 100% en ligne
Renseignez vos informations et déposez vos pièces justificatives directement depuis votre espace sécurisé.
Informations importantes
Dépôt
1 500 EUR
Versé au notaire 10 jours après signature
Prestations
À la carte
Travaux et parking chiffrés selon lot
Garanties
VEFA + GFA
Cadre légal sécurisé
Frais notaire
2-3%
vs 7-8% dans l'ancien
Afin de valider votre achat, vous devrez verser un dépôt de garantie par virement auprès du notaire, 10 jours après la signature de votre contrat de réservation. Le dépôt affiché (1 500 EUR) correspond à une moyenne indicative et peut varier selon le promoteur.
L'activité de promotion immobilière est très encadrée. Pour la vente de logements neufs, c'est le régime de VEFA qui encadre l'opération.
Le montant dépend du lot, du promoteur et des choix retenus. Les prix fixes ci-dessous concernent uniquement les services financiers.
Liste non exhaustive, tarifs HT soumis à modification.
Acheter dans le neuf vous permet de réaliser une économie significative sur les frais de notaire.
Le promoteur de cette résidence est couvert par une Garantie Financière d'Achèvement (GFA). Cette garantie, réglementée par la loi, atteste de sa capacité à mener à bien la construction du projet.
Pour valider votre achat, le promoteur vous demandera :