Parking
StationnementRéf. 0
Fiche lot
92000 Nanterre • Hauts-de-Seine
Type
Appartement
Typologie
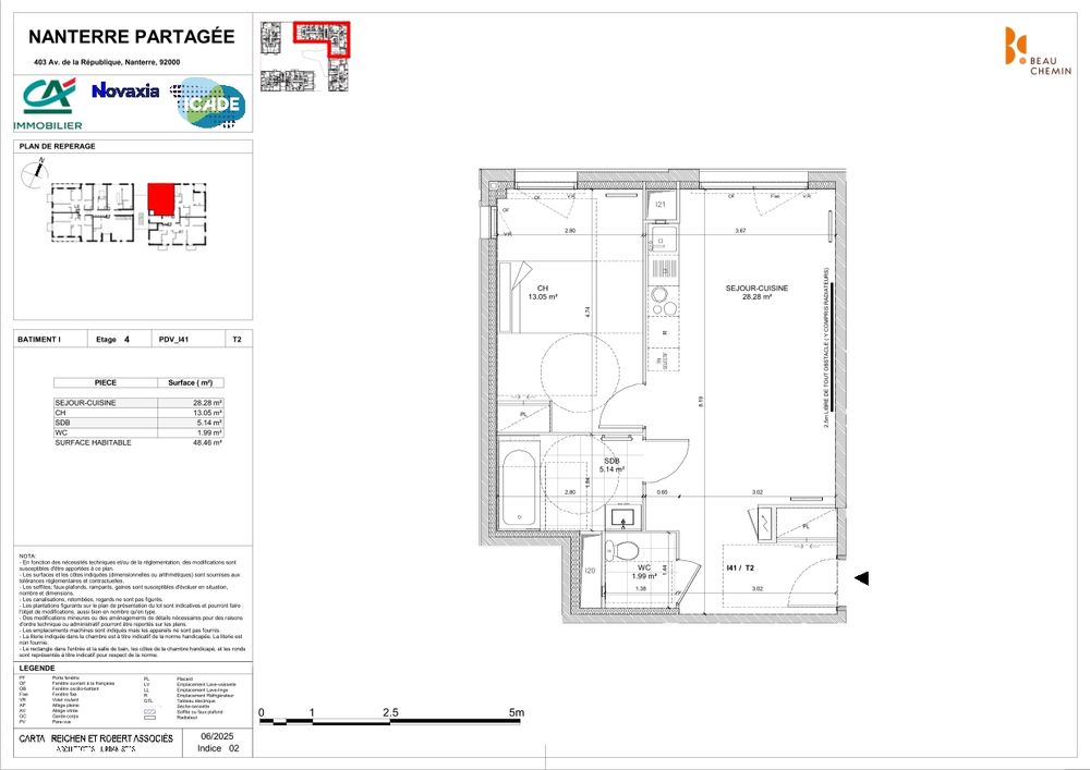
1 chambre /T2
Surface
48 m²
Niveau
4ème étage
Référence
I041
Réf. 0
Budget du lot
Prix total affiché pour ce lot et variantes disponibles selon le montage.
311 930 €
Composition du prix
Prix selon le montage
TVA 5,5%
Sous conditions de ressources et d’éligibilité.
LLI TVA 10%
Selon le montage LLI retenu pour le lot.
Les repères utiles pour situer la résidence.
Adresse
403 avenue de la République
Ville
92000 Nanterre
Hauts-de-Seine • Île-de-France
Livraison prévue
2ème trimestre 2028
Classe énergie
Promoteur
CREDIT AGRICOLE
À propos du programme
Nanterre est situé à l’Ouest de Paris, limitrophe de Colombes et accueille sur son territoire une partie du quartier d'affaire de La Défense. La commune profite d’un excellent maillage en réseau routier et en transports en commun.
Dans le cadre de la modernisation de l’actuel Hôpital Max Fourestier, ce nouveau quartier mêlera solidarité de voisinage, activités partagées autour de la nature, lieux d’échanges et de rencontres. Le bâtiment historique sera conservé, réhabilité et deviendra un espace de convivialité.
Votre futur programme neuf propose des appartements du studio au 5 pièces duplex, avec balcons ou terrasses et même des jardins privatifs. Les prestations sont soignées avec un confort thermique et acoustique renforcé, le chauffage collectif urbain, et des équipements de sécurité et de stationnement en sous-sol.
Cette résidence neuve se caractérise par sa performance énergétique aux normes RE2020, la pose de panneaux photovoltaïques, la gestion optimisée des eaux pluviales et sa stratégie bas carbone. Elle bénéficie également du label NF Habitat HQE pour des logements performants et de qualité.
Documents utiles
Les pièces les plus utiles pour comprendre le programme.
Mon estimation
Calculez votre capacité d'emprunt pour une estimation personnalisée.
Estimatif mensuel moyen sur 10 ans
Cash-flow mensuel
--
Estimatif mensuel moyen sur 10 ans
A retenir
92000 Nanterre
Disponible à l'achatPrix du logement
311 930 €
T.T.CMon estimation
Calculez votre capacité d'emprunt pour une estimation personnalisée.
Estimatif mensuel moyen sur 10 ans
Cash-flow mensuel
--
Estimatif mensuel moyen sur 10 ans
Livraison
2ème trimestre 2028
Parcours d'achat
Étape 1
Comparez les lots, les plans et les prestations pour identifier le bien qui vous correspond.
Étape 2
Remplissez votre demande d'achat en ligne, puis validez les informations et documents demandés.
Étape 3
Finalisez votre plan de financement, puis validez les pièces demandées pour sécuriser l'opération.
Étape 4
Suivez les dernières formalités avec votre conseiller jusqu'à la signature définitive et la livraison.
Demande d'achat 100% en ligne
Renseignez vos informations et déposez vos pièces justificatives directement depuis votre espace sécurisé.
Informations importantes
Dépôt
1 500 EUR
Versé au notaire 10 jours après signature
Prestations
À la carte
Travaux et parking chiffrés selon lot
Garanties
VEFA + GFA
Cadre légal sécurisé
Frais notaire
2-3%
vs 7-8% dans l'ancien
Afin de valider votre achat, vous devrez verser un dépôt de garantie par virement auprès du notaire, 10 jours après la signature de votre contrat de réservation. Le dépôt affiché (1 500 EUR) correspond à une moyenne indicative et peut varier selon le promoteur.
L'activité de promotion immobilière est très encadrée. Pour la vente de logements neufs, c'est le régime de VEFA qui encadre l'opération.
Le montant dépend du lot, du promoteur et des choix retenus. Les prix fixes ci-dessous concernent uniquement les services financiers.
Liste non exhaustive, tarifs HT soumis à modification.
Acheter dans le neuf vous permet de réaliser une économie significative sur les frais de notaire.
Le promoteur de cette résidence est couvert par une Garantie Financière d'Achèvement (GFA). Cette garantie, réglementée par la loi, atteste de sa capacité à mener à bien la construction du projet.
Pour valider votre achat, le promoteur vous demandera :