Terasse
ExtérieurRéf. 1 • 7.92 m²

Fiche lot
93300 Aubervilliers • Seine-Saint-Denis
Type
Appartement
Typologie
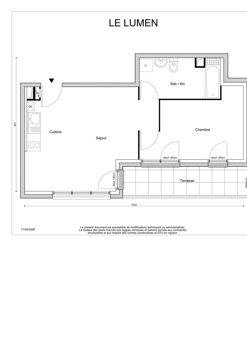
1 chambre /T2
Surface
46 m²
Niveau
4ème étage
Référence
32
Réf. 1 • 7.92 m²
Budget du lot
Prix total affiché pour ce lot et variantes disponibles selon le montage.
257 900 €
Composition du prix
Prix selon le montage
TVA 5,5%
Sous conditions de ressources et d’éligibilité.
LLI TVA 10%
Selon le montage LLI retenu pour le lot.
Ce lot est actuellement optionné
Il ne peut pas être acheté pour le moment. Contactez un conseiller pour tenter d'optionner ce lot.
Contacter un conseillerLes repères utiles pour situer la résidence.
Adresse
rue quentin
Ville
93300 Aubervilliers
Seine-Saint-Denis • Île-de-France
Livraison prévue
4ème trimestre 2028
Classe énergie
Promoteur
Green City
À propos du programme
Le Lumen est un programme immobilier neuf situé rue Quentin à Aubervilliers, à deux pas du centre-ville et des commerces, proposant 31 logements neufs livrables fin 2028.
Ce projet résidentiel se compose d’un bâtiment de quatre niveaux en façade sur rue et d’un coeur d’îlot paysager à l’arrière, offrant un cadre de vie calme et végétalisé, conforme à la réglementation RE2020 et labellisé énergie A.
Les appartements neufs sont proposés jusqu’à 3 pièces, avec des prix allant de 182 900 à 407 900 €, et conviennent aussi bien à l’achat pour résidence principale qu’à l’investissement.
À proximité immédiate de Paris, la résidence bénéficie d’un accès facilité aux autoroutes A1 et A86 ainsi qu’au boulevard périphérique, et est desservie par les lignes 7 et 12 du métro et le RER B via les gares « La Courneuve – Aubervilliers » et « La Plaine – Stade de France », complété par un réseau de bus et de tramways et la future desserte de la ligne 15 (station Mairie d’Aubervilliers).
Le cadre intérieur du programme privilégie la tranquillité et les espaces verts en coeur d’îlot ; le projet ne prévoit pas de parkings, ni de terrasses ni de caves.
Documents utiles
Les pièces les plus utiles pour comprendre le programme.
Mon estimation
Calculez votre capacité d'emprunt pour une estimation personnalisée.
Estimatif mensuel moyen sur 10 ans
Cash-flow mensuel
--
Estimatif mensuel moyen sur 10 ans
A retenir
93300 Aubervilliers
OptionnéPrix du logement
257 900 €
T.T.CMon estimation
Calculez votre capacité d'emprunt pour une estimation personnalisée.
Estimatif mensuel moyen sur 10 ans
Cash-flow mensuel
--
Estimatif mensuel moyen sur 10 ans
Livraison
4ème trimestre 2028
Parcours d'achat
Étape 1
Comparez les lots, les plans et les prestations pour identifier le bien qui vous correspond.
Étape 2
Remplissez votre demande d'achat en ligne, puis validez les informations et documents demandés.
Étape 3
Finalisez votre plan de financement, puis validez les pièces demandées pour sécuriser l'opération.
Étape 4
Suivez les dernières formalités avec votre conseiller jusqu'à la signature définitive et la livraison.
Demande d'achat 100% en ligne
Renseignez vos informations et déposez vos pièces justificatives directement depuis votre espace sécurisé.
Informations importantes
Dépôt
1 500 EUR
Versé au notaire 10 jours après signature
Prestations
À la carte
Travaux et parking chiffrés selon lot
Garanties
VEFA + GFA
Cadre légal sécurisé
Frais notaire
2-3%
vs 7-8% dans l'ancien
Afin de valider votre achat, vous devrez verser un dépôt de garantie par virement auprès du notaire, 10 jours après la signature de votre contrat de réservation. Le dépôt affiché (1 500 EUR) correspond à une moyenne indicative et peut varier selon le promoteur.
L'activité de promotion immobilière est très encadrée. Pour la vente de logements neufs, c'est le régime de VEFA qui encadre l'opération.
Le montant dépend du lot, du promoteur et des choix retenus. Les prix fixes ci-dessous concernent uniquement les services financiers.
Liste non exhaustive, tarifs HT soumis à modification.
Acheter dans le neuf vous permet de réaliser une économie significative sur les frais de notaire.
Le promoteur de cette résidence est couvert par une Garantie Financière d'Achèvement (GFA). Cette garantie, réglementée par la loi, atteste de sa capacité à mener à bien la construction du projet.
Pour valider votre achat, le promoteur vous demandera :