Étape 1
Choisir et comparer
Comparez les lots, les plans et les prestations pour identifier le bien qui vous correspond.

Fiche lot
94000 Créteil • Val-de-Marne
Type
Appartement
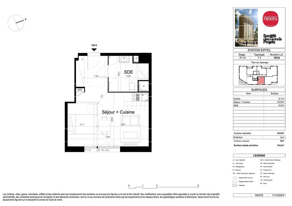
Typologie
Studio /T1
Surface
34 m²
Niveau
10ème étage
Orientation
EST
Référence
1014
Budget du lot
Prix total affiché pour ce lot et variantes disponibles selon le montage.
241 000 €
Composition du prix
Prix selon le montage
LLI TVA 10%
Selon le montage LLI retenu pour le lot.
Les repères utiles pour situer la résidence.
Adresse
0002 RUE ALBERT EINSTEIN
Ville
94000 Créteil
Val-de-Marne • Île-de-France
Livraison prévue
3ème trimestre 2028
Classe énergie
Promoteur
NEXITY
À propos du programme
Découvrez notre projet de construction emblématique au coeur du quartier de la gare de l'Echat, avec des logements diversifiés allant du studio au 5 pièces, pour habiter ou investir.
Les appartements offriront pour la plupart un espace privatif extérieur tel qu'un balcon ou une loggia, ainsi qu'une double exposition pour maximiser la lumière naturelle.
Le bâtiment, avec sa céramique en relief doré, deviendra le signal d'entrée du quartier et offrira des vues dégagées depuis ses 17 étages.
Un coeur d'îlot paysager sera aménagé à l'arrière du bâtiment, avec des espaces verts, une terrasse collective équipée d'assises, et un local vélos pour les résidents.
Mon estimation
Calculez votre capacité d'emprunt pour une estimation personnalisée.
Estimatif mensuel moyen sur 10 ans
Cash-flow mensuel
--
Estimatif mensuel moyen sur 10 ans
A retenir
94000 Créteil
Disponible à l'achatPrix du logement
241 000 €
T.T.CMon estimation
Calculez votre capacité d'emprunt pour une estimation personnalisée.
Estimatif mensuel moyen sur 10 ans
Cash-flow mensuel
--
Estimatif mensuel moyen sur 10 ans
Livraison
3ème trimestre 2028
Parcours d'achat
Étape 1
Comparez les lots, les plans et les prestations pour identifier le bien qui vous correspond.
Étape 2
Remplissez votre demande d'achat en ligne, puis validez les informations et documents demandés.
Étape 3
Finalisez votre plan de financement, puis validez les pièces demandées pour sécuriser l'opération.
Étape 4
Suivez les dernières formalités avec votre conseiller jusqu'à la signature définitive et la livraison.
Demande d'achat 100% en ligne
Renseignez vos informations et déposez vos pièces justificatives directement depuis votre espace sécurisé.
Informations importantes
Dépôt
1 500 EUR
Versé au notaire 10 jours après signature
Prestations
À la carte
Travaux et parking chiffrés selon lot
Garanties
VEFA + GFA
Cadre légal sécurisé
Frais notaire
2-3%
vs 7-8% dans l'ancien
Afin de valider votre achat, vous devrez verser un dépôt de garantie par virement auprès du notaire, 10 jours après la signature de votre contrat de réservation. Le dépôt affiché (1 500 EUR) correspond à une moyenne indicative et peut varier selon le promoteur.
L'activité de promotion immobilière est très encadrée. Pour la vente de logements neufs, c'est le régime de VEFA qui encadre l'opération.
Le montant dépend du lot, du promoteur et des choix retenus. Les prix fixes ci-dessous concernent uniquement les services financiers.
Liste non exhaustive, tarifs HT soumis à modification.
Acheter dans le neuf vous permet de réaliser une économie significative sur les frais de notaire.
Le promoteur de cette résidence est couvert par une Garantie Financière d'Achèvement (GFA). Cette garantie, réglementée par la loi, atteste de sa capacité à mener à bien la construction du projet.
Pour valider votre achat, le promoteur vous demandera :