Handee

DOMAINE DE LA PLAINE - programme neuf à Montesson (78360, Île-de-France)

Route de Sartrouville78360 MontessonOGIC

Aucune image disponible

Navigation du programme

DOMAINE DE LA PLAINE

Résidence

Le programme en détail

Toutes les informations clés du programme, ses documents utiles et les prestations de la résidence.

Le programme

Les repères utiles pour situer la résidence.

Adresse

Route de Sartrouville

Ville

78360 Montesson

Yvelines • Île-de-France

Livraison prévue

4ème trimestre 2027

Actabilité

Le programme est actable

Classe énergie

Promoteur

OGIC

À propos du programme

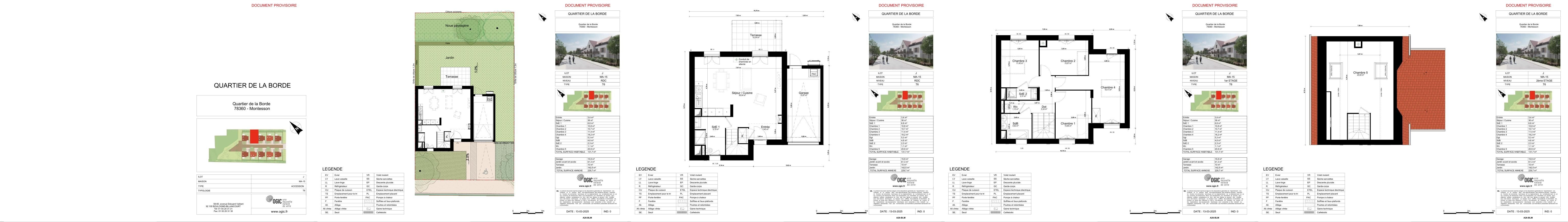
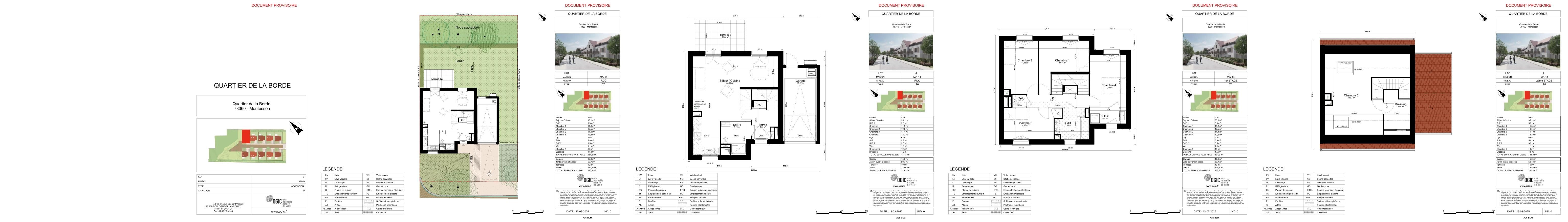
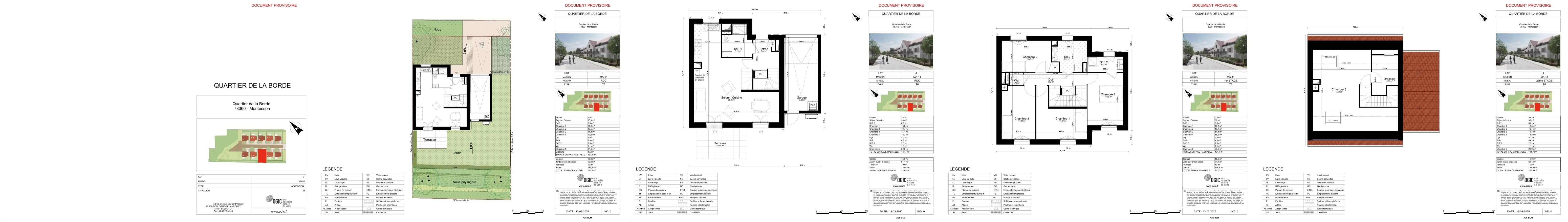
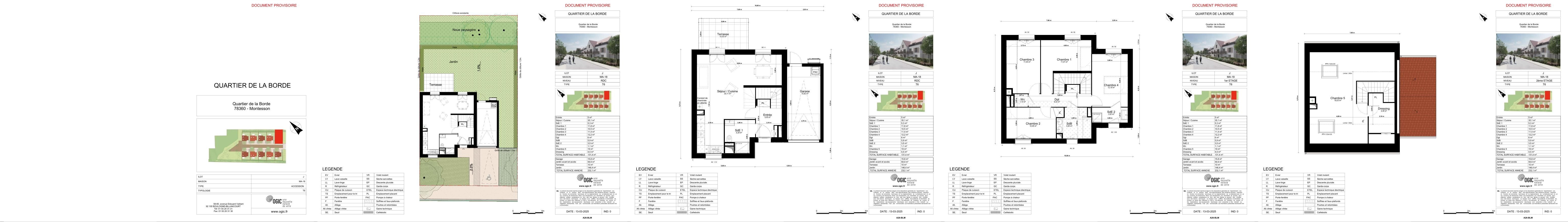
En lisière de la célèbre plaine maraîchère de Montesson, cette réalisation intimiste propose des maisons individuelles de 4, 5 ou 6 pièces, de 100 à 130 m².

Les logements, aux prestations raffinées, offrent de vastes espaces de vie traversants, une suite parentale avec salle d'eau privative et des chambres spacieuses.

Chaque maison se prolonge par un jardin privatif et une terrasse.

Idéalement située, la résidence permet de rejoindre la gare de Sartrouville en 9 minutes à vélo (RER A et Transilien J/L), menant à La Défense en 17 minutes et Paris Saint-Lazare en 29 minutes.

Le centre-ville et ses commerces sont accessibles en 10 minutes à vélo.

Documents utiles

Les pièces les plus utiles pour comprendre le programme.

Plan 3D

Explorer le volume du programme

Une lecture plus concrète de l'implantation et de l'organisation des logements.

Quartier

Comprendre l'environnement du programme

Carte, points d'intérêt et aperçu de la ville pour situer le programme dans son environnement.

Chargement de la carte...

5 logements trouvés

Annexes
Chambres
Étage
Budget
Surface
program image
Disponible

622 900 €

Mensualité totale

--

Mensualité prêt --
Taxe foncière --
Charges --

Estimatif mensuel moyen sur 10 ans

Livraison

OGIC

4ème trimestre 2027

program image
Disponible

624 900 €

Mensualité totale

--

Mensualité prêt --
Taxe foncière --
Charges --

Estimatif mensuel moyen sur 10 ans

Livraison

OGIC

4ème trimestre 2027

program image
Disponible

628 900 €

Mensualité totale

--

Mensualité prêt --
Taxe foncière --
Charges --

Estimatif mensuel moyen sur 10 ans

Livraison

OGIC

4ème trimestre 2027

program image
Disponible

629 900 €

Mensualité totale

--

Mensualité prêt --
Taxe foncière --
Charges --

Estimatif mensuel moyen sur 10 ans

Livraison

OGIC

4ème trimestre 2027

program image
Disponible

637 900 €

Mensualité totale

--

Mensualité prêt --
Taxe foncière --
Charges --

Estimatif mensuel moyen sur 10 ans

Livraison

OGIC

4ème trimestre 2027

Suggestions

Programmes similaires (12)

Découvrez d'autres programmes susceptibles de vous intéresser.

program image

à partir de

306 000 €

Chatou - 78

40 AVENUE FOCH

78400 40 AVENUE FOCH CHATOU

Livraison

EMERIGE

1er trimestre 2029

program image

à partir de

268 000 €

Rueil-Malmaison - 92

Les Hydrangeas

92500 77-89 Rue Jules Parent

Gare 7 minCommerces 2 minÉcole 2 min

Livraison

LIVINX

4ème trimestre 2027

Slide

à partir de

494 000 €

Le Mesnil-le-Roi - 78

Les Terrasses du Chateau

78600 98 rue Jules Rein

Livraison

MARIGNAN

4ème trimestre 2027

Slide

à partir de

586 955 €

Le Pecq - 78

RELAIS ET PAVILLON GRANCHAMP

78230 6 ALLÉE DES BELVEDERES|17 ALLÉE DES POTAGERS

Livraison

Histoire & Patrimoine

4ème trimestre 2025

Slide

à partir de

529 400 €

Sartrouville - 78

Carré des Arts

78500

Livraison

Les Nouveaux Constructeurs

2ème trimestre 2029

Slide

à partir de

421 000 €

Saint-Germain-en-Laye - 78

Clos Saint-Louis Acte I

78100 Centre Hospitalier Intercommunal

Livraison

MARIGNAN

2ème trimestre 2026

Slide

à partir de

280 000 €

Saint-Germain-en-Laye - 78

Clos Saint-Louis - Acte IV - Résidences Ourches

78100 2 Rue d'Ourches

Livraison

MARIGNAN

3ème trimestre 2028

program image

à partir de

255 000 €

Sartrouville - 78

HORIZON

78500 22 RUE MICHELET SARTROUVILLE

Livraison

Fayat Immobilier

2ème trimestre 2028

program image

à partir de

1 450 000 €

Suresnes - 92

Horizon

92150 4 Allée Beau Site

Livraison

NACA IMMOBILIER

4ème trimestre 2026

program image

à partir de

214 000 €

Rueil-Malmaison - 92

RUEIL MALMAISON

92500 53 à 57 avenue du Président Pompidou

Livraison

COFFIM

4ème trimestre 2023

Slide

à partir de

253 900 €

Sartrouville - 78

QUAI SARTORI

78500 14 Rue du Président Roosevelt

Livraison

LP PROMOTION

4ème trimestre 2026

Slide

à partir de

757 000 €

Rueil-Malmaison - 92

Emblème

92500 91 avenue Paul Doumer

Livraison

4ème trimestre 2026

Parcours d'achat

Acheter votre logement en 4 étapes

  1. Étape 1

    Choisir et comparer

    1

    Comparez les lots, les plans et les prestations pour identifier le bien qui vous correspond.

  2. Étape 2

    Réserver le lot

    2

    Remplissez votre demande d'achat en ligne, puis validez les informations et documents demandés.

  3. Étape 3

    Financer et valider

    3

    Finalisez votre plan de financement, puis validez les pièces demandées pour sécuriser l'opération.

  4. Étape 4

    Signer et préparer la remise des clés

    4

    Suivez les dernières formalités avec votre conseiller jusqu'à la signature définitive et la livraison.

Demande d'achat 100% en ligne

Renseignez vos informations et déposez vos pièces justificatives directement depuis votre espace sécurisé.

Informations importantes

Ce qu'il faut savoir avant d'acheter

Dépôt

1 500 EUR

Versé au notaire 10 jours après signature

Prestations

À la carte

Travaux et parking chiffrés selon lot

Garanties

VEFA + GFA

Cadre légal sécurisé

Frais notaire

2-3%

vs 7-8% dans l'ancien

Frais et dépôt de garantie

Afin de valider votre achat, vous devrez verser un dépôt de garantie par virement auprès du notaire, 10 jours après la signature de votre contrat de réservation. Le dépôt affiché (1 500 EUR) correspond à une moyenne indicative et peut varier selon le promoteur.

Dépôt de garantie : 1 500 EUR

Cadre légal et étapes (VEFA)

L'activité de promotion immobilière est très encadrée. Pour la vente de logements neufs, c'est le régime de VEFA qui encadre l'opération.

Recherche du terrainMontage de l'opérationMarché travauxSuivi de l'opérationCommercialisationConstructionLivraisonSuivi des garanties

Prestations complémentaires (optionnelles)

Le montant dépend du lot, du promoteur et des choix retenus. Les prix fixes ci-dessous concernent uniquement les services financiers.

  • Travaux modificatifs du logementSur devis
  • Place de parking supplémentaireSelon le lot
  • Courtier en financement2 500 EUR
  • Négociation assurance crédit99 EUR
  • Gestion locativeSur devis

Liste non exhaustive, tarifs HT soumis à modification.

Frais de notaire réduits

2-3%dans le neufvs7-8%ancien

Acheter dans le neuf vous permet de réaliser une économie significative sur les frais de notaire.

Garantie financière (GFA)

Le promoteur de cette résidence est couvert par une Garantie Financière d'Achèvement (GFA). Cette garantie, réglementée par la loi, atteste de sa capacité à mener à bien la construction du projet.

Sécurité Financière : La GFA garantit que le financement nécessaire à l'achèvement du projet est en place.
Livraison Conforme : Vous pouvez avoir confiance dans le fait que la résidence sera livrée selon les normes convenues.
Sérénité pour les Acheteurs : En tant qu'acquéreur, cette garantie vous assure une transition en douceur vers votre nouveau logement.

Documents requis pour l'achat

Pour valider votre achat, le promoteur vous demandera :

  • 1 Pièce d'identité officielle avec photo
  • 2 Avis d'imposition
  • 3 Justificatif de domicile
  • 4 Dépôt de garantie par virement bancaire