Balcon
ExtérieurRéf. 1 • 3.1 m²




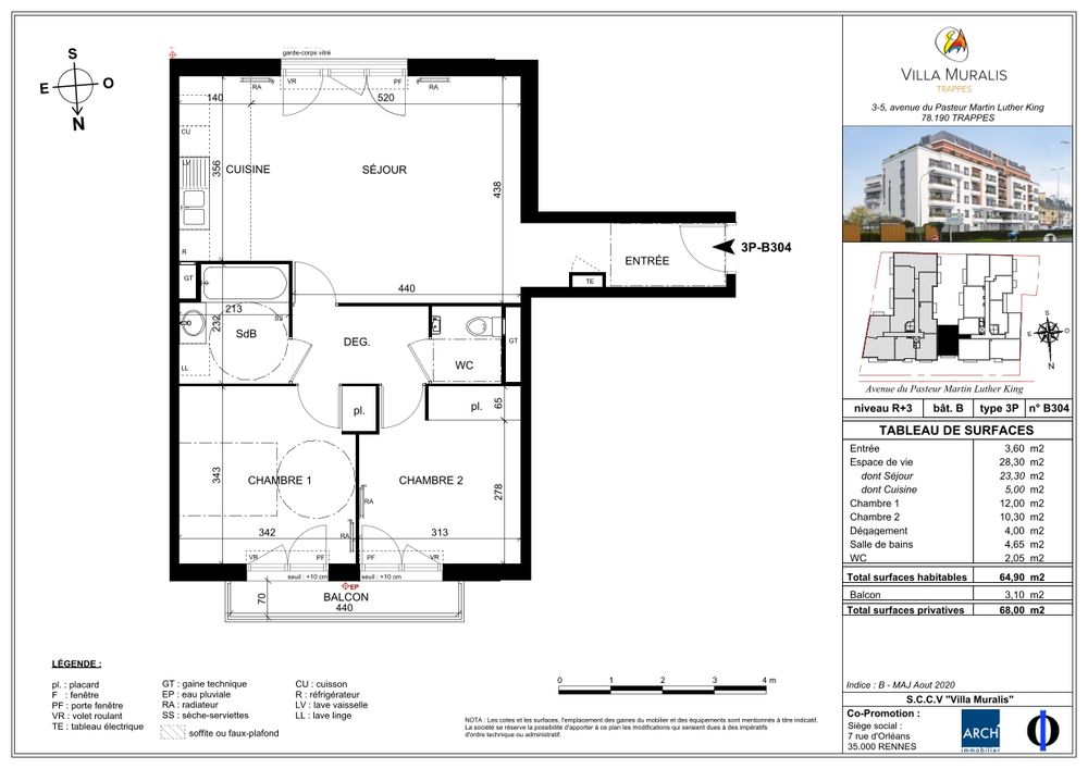
Fiche lot
78190 Trappes • Yvelines
Type
Appartement
Typologie
2 chambres /T3
Surface
65 m²
Niveau
Rez-de-chaussée
Orientation
Sud
Référence
B304
Réf. 1 • 3.1 m²
Budget du lot
Prix total affiché pour ce lot et variantes disponibles selon le montage.
274 692 €
Composition du prix
Les repères utiles pour situer la résidence.
Adresse
3-5 Boulevard du Pasteur Martin Luther King
Ville
78190 Trappes
Yvelines • Île-de-France
Livraison prévue
3ème trimestre 2024
Classe énergie
Promoteur
ARCH_IMMOBILIER
À propos du programme
Au coeur d'une ville résolument tournée vers l'avenir, "Villa Muralis" est à proximité immédiate des transports, des écoles, des commerces et de toutes les commodités.
L'opération de style contemporain, avec un coeur d'îlot paysager, propose des appartements du T1 au T4.
Chacun de ses logements offre des espaces lumineux et conviviaux. Tous les appartements s'ouvrent sur un jardin, un balcon ou une terrasse. Les derniers étages profitent quant à eux de terrasses avec vue sur le Parc Naturel de la Haute Vallée de Chevreuse.
Parmi les prestations proposées :
• Volets roulants électriques ;
• Placards équipés et aménagés ;
• Salle de bains et salles d'eau équipées de meuble vasque avec mitigeur et miroirs avec bandeaux lumineux ;
• Radiateurs sèche-serviettes dans les salles de bains et salles d'eau ;
• Parking sous-sol ;
• Hall d'entrée protégé par un sas avec digicode et interphone relié à chaque appartement ;
• Accès sécurisé par badge et visiophone ...
Documents utiles
Les pièces les plus utiles pour comprendre le programme.
Mon estimation
Calculez votre capacité d'emprunt pour une estimation personnalisée.
Estimatif mensuel moyen sur 9 ans
Cash-flow mensuel
--
Estimatif mensuel moyen sur 9 ans
A retenir
78190 Trappes
Disponible à l'achatPrix du logement
274 692 €
T.T.CMon estimation
Calculez votre capacité d'emprunt pour une estimation personnalisée.
Estimatif mensuel moyen sur 9 ans
Cash-flow mensuel
--
Estimatif mensuel moyen sur 9 ans
Livraison
3ème trimestre 2024
Parcours d'achat
Étape 1
Comparez les lots, les plans et les prestations pour identifier le bien qui vous correspond.
Étape 2
Remplissez votre demande d'achat en ligne, puis validez les informations et documents demandés.
Étape 3
Finalisez votre plan de financement, puis validez les pièces demandées pour sécuriser l'opération.
Étape 4
Suivez les dernières formalités avec votre conseiller jusqu'à la signature définitive et la livraison.
Demande d'achat 100% en ligne
Renseignez vos informations et déposez vos pièces justificatives directement depuis votre espace sécurisé.
Informations importantes
Dépôt
1 500 EUR
Versé au notaire 10 jours après signature
Prestations
À la carte
Travaux et parking chiffrés selon lot
Garanties
VEFA + GFA
Cadre légal sécurisé
Frais notaire
2-3%
vs 7-8% dans l'ancien
Afin de valider votre achat, vous devrez verser un dépôt de garantie par virement auprès du notaire, 10 jours après la signature de votre contrat de réservation. Le dépôt affiché (1 500 EUR) correspond à une moyenne indicative et peut varier selon le promoteur.
L'activité de promotion immobilière est très encadrée. Pour la vente de logements neufs, c'est le régime de VEFA qui encadre l'opération.
Le montant dépend du lot, du promoteur et des choix retenus. Les prix fixes ci-dessous concernent uniquement les services financiers.
Liste non exhaustive, tarifs HT soumis à modification.
Acheter dans le neuf vous permet de réaliser une économie significative sur les frais de notaire.
Le promoteur de cette résidence est couvert par une Garantie Financière d'Achèvement (GFA). Cette garantie, réglementée par la loi, atteste de sa capacité à mener à bien la construction du projet.
Pour valider votre achat, le promoteur vous demandera :