Parking Simple
StationnementRéf. P027


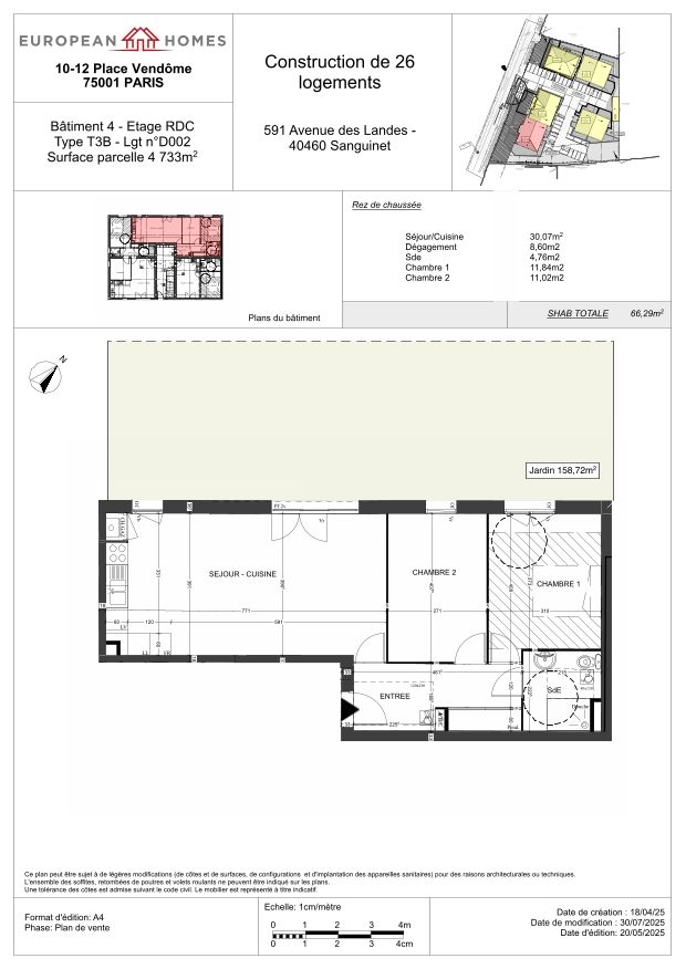
Fiche lot
40460 Sanguinet • Landes
Type
Appartement
Typologie
2 chambres /T3
Surface
66 m²
Niveau
Rez-de-chaussée
Référence
D002
Réf. P027
Réf. P034
Réf. 1 • 158.72 m²
Budget du lot
Prix total affiché pour ce lot et variantes disponibles selon le montage.
287 000 €
Composition du prix
Les repères utiles pour situer la résidence.
Adresse
591, AVENUE DES LANDES
Ville
40460 Sanguinet
Landes • Nouvelle-Aquitaine
Livraison prévue
4ème trimestre 2027
Classe énergie
Promoteur
EUROPEAN_HOMES
Offres en cours
Les avantages commerciaux actuellement associés au programme.
À propos du programme
À Sanguinet, à deux pas du lac, découvrez le confort du neuf en appartement ou villa-jardin.
Sanguinet, un art de vivre entre lac et océan.
Nichée au cœur des Landes, à la lisière du bassin d’Arcachon et à deux pas des plages océanes, des forêts de pins et de la dune du Pilat, Sanguinet séduit par son cadre de vie paisible et naturel.
Située à moins d’1h de Bordeaux, cette charmante commune offre un équilibre idéal entre animation urbaine et quiétude balnéaire.
Son joyau : son lac, l’un des plus grands lacs naturels de France, dont les eaux calmes invitent à la baignade, à la voile ou aux balades toute l’année.
Chaque été, Sanguinet vibre au rythme du Festival Jazz in Sanguinet, un événement culturel majeur qui attire des artistes et anime la ville d’une ambiance chaleureuse et conviviale au bord du lac.
La commune propose toutes les commodités essentielles au quotidien : supermarchés, commerces de proximité, marché hebdomadaire, médiathèque, pôle santé, associations culturelles et installations sportives.
Côté famille, Sanguinet est particulièrement bien équipée : une crèche multi-accueil, une école maternelle et une école élémentaire publiques flambants neuves dès la rentrée 2026, ainsi qu’un collège récent, offrent un parcours scolaire complet.
Documents utiles
Les pièces les plus utiles pour comprendre le programme.
Mon estimation
Calculez votre capacité d'emprunt pour une estimation personnalisée.
Estimatif mensuel moyen sur 10 ans
Cash-flow mensuel
--
Estimatif mensuel moyen sur 10 ans
A retenir
40460 Sanguinet
Disponible à l'achatPrix du logement
287 000 €
T.T.CMon estimation
Calculez votre capacité d'emprunt pour une estimation personnalisée.
Estimatif mensuel moyen sur 10 ans
Cash-flow mensuel
--
Estimatif mensuel moyen sur 10 ans
Livraison
4ème trimestre 2027
Parcours d'achat
Étape 1
Comparez les lots, les plans et les prestations pour identifier le bien qui vous correspond.
Étape 2
Remplissez votre demande d'achat en ligne, puis validez les informations et documents demandés.
Étape 3
Finalisez votre plan de financement, puis validez les pièces demandées pour sécuriser l'opération.
Étape 4
Suivez les dernières formalités avec votre conseiller jusqu'à la signature définitive et la livraison.
Demande d'achat 100% en ligne
Renseignez vos informations et déposez vos pièces justificatives directement depuis votre espace sécurisé.
Informations importantes
Dépôt
1 500 EUR
Versé au notaire 10 jours après signature
Prestations
À la carte
Travaux et parking chiffrés selon lot
Garanties
VEFA + GFA
Cadre légal sécurisé
Frais notaire
2-3%
vs 7-8% dans l'ancien
Afin de valider votre achat, vous devrez verser un dépôt de garantie par virement auprès du notaire, 10 jours après la signature de votre contrat de réservation. Le dépôt affiché (1 500 EUR) correspond à une moyenne indicative et peut varier selon le promoteur.
L'activité de promotion immobilière est très encadrée. Pour la vente de logements neufs, c'est le régime de VEFA qui encadre l'opération.
Le montant dépend du lot, du promoteur et des choix retenus. Les prix fixes ci-dessous concernent uniquement les services financiers.
Liste non exhaustive, tarifs HT soumis à modification.
Acheter dans le neuf vous permet de réaliser une économie significative sur les frais de notaire.
Le promoteur de cette résidence est couvert par une Garantie Financière d'Achèvement (GFA). Cette garantie, réglementée par la loi, atteste de sa capacité à mener à bien la construction du projet.
Pour valider votre achat, le promoteur vous demandera :