27 396 logements neufs
27 396logements neufs
27 396logements neufs
Actualisés
Le moins cher
Disponible
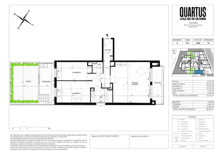
412 000 €
Offre commerciale
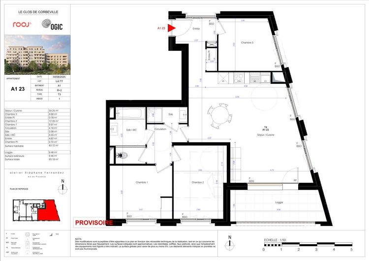
Aix-en-Provence - 13
Harmonie - Appartements
straighten 70m² apartment 2e étage explore Est balcony Loggia directions_car Parking
Mensualité totale
--
Mensualité prêt --
Taxe foncière --
Charges --
Estimatif mensuel moyen sur 9 ans
Livraison
3ème trimestre 2026
Disponible
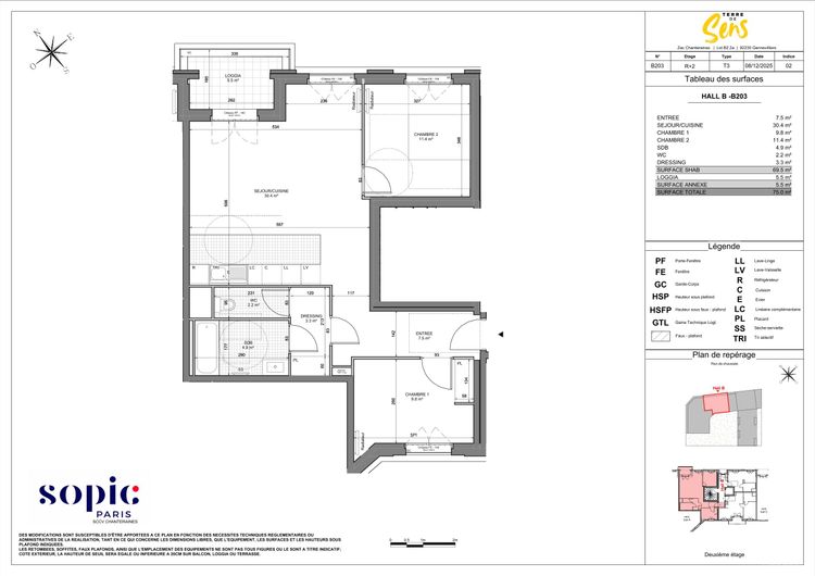
412 000 €
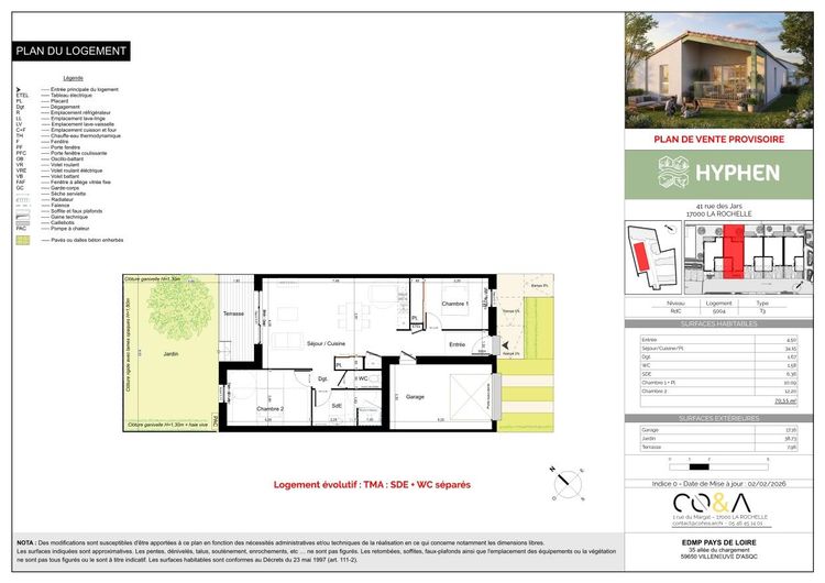
Amiens - 80
FLOW - Appartements
straighten 95m² apartment 3e étage explore NORD ESTNORD OUEST balcony Balcon 7m² deck Terrasse 24m² directions_car Parking
Mensualité totale
--
Mensualité prêt --
Taxe foncière --
Charges --
Estimatif mensuel moyen sur 9 ans
Livraison
4ème trimestre 2028
Disponible
412 000 €
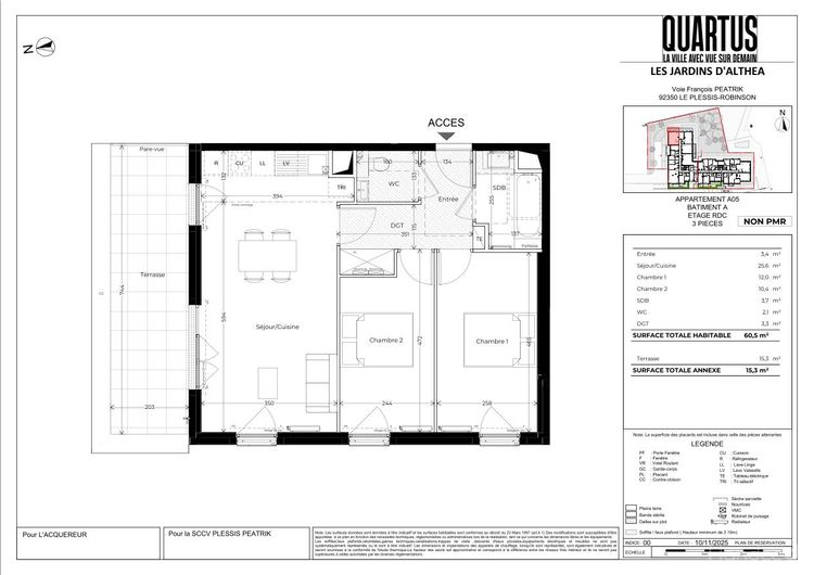
Châteauneuf-de-Gadagne - 84
LE CLOS DE LOUISE - Maisons
straighten 76m² apartment RDC explore SUD deck Terrasse 12m² yard Jardin 78m² directions_car Parking
Mensualité totale
--
Mensualité prêt --
Taxe foncière --
Charges --
Estimatif mensuel moyen sur 9 ans
Livraison
2ème trimestre 2028













