27 069 logements neufs
27 069logements neufs
27 069logements neufs
Actualisés
Le moins cher
Disponible
484 000 €
Offre commerciale
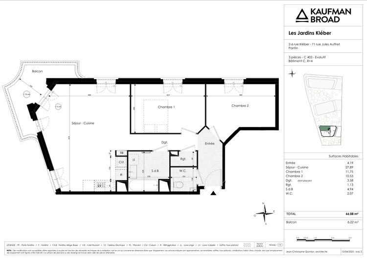
Pantin - 93
Les Jardins Kléber - Appartements
straighten 66m² apartment 4e étage explore Nord / Ouest balcony Balcon directions_car Parking
Mensualité totale
--
Mensualité prêt --
Taxe foncière --
Charges --
Estimatif mensuel moyen sur 9 ans
Livraison
1er trimestre 2028
Disponible
484 400 €
Cailloux-sur-Fontaines - 69
Les Jardins du Moulin - Appartements
straighten 85m² apartment 2e étage explore EST deck Terrasse 35m² directions_car Parking
Cash-flow mensuel
--
Loyer estimé --
Mensualité prêt --
Taxe foncière --
Charges --
Impôt sur les loyers --
Estimatif mensuel moyen sur 9 ans
Livraison
1er trimestre 2028

















