27 766 logements neufs
172 000 €
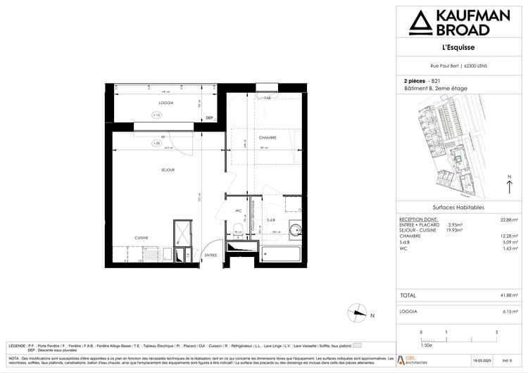
Lens - 62
L'Esquisse - Appartements
Mensualité totale
--
Estimatif mensuel moyen sur 10 ans
Livraison
2ème trimestre 2028
172 000 €
Barneville-Carteret - 50
Les Terrasses du Cap - Appartements
Mensualité totale
--
Estimatif mensuel moyen sur 10 ans
Livraison
1er trimestre 2027
172 000 €
Manosque - 04
Domaine des Aures "La Brise" - Appartements
Mensualité totale
--
Estimatif mensuel moyen sur 10 ans
Livraison
1er trimestre 2026
172 000 €
Manosque - 04
Domaine des Aures "La Brise" - Appartements
Mensualité totale
--
Estimatif mensuel moyen sur 10 ans
Livraison
1er trimestre 2026
172 028 €
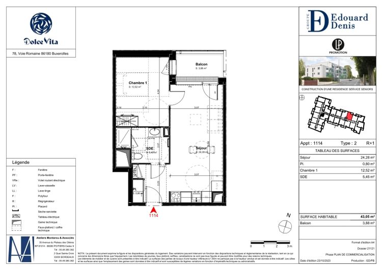
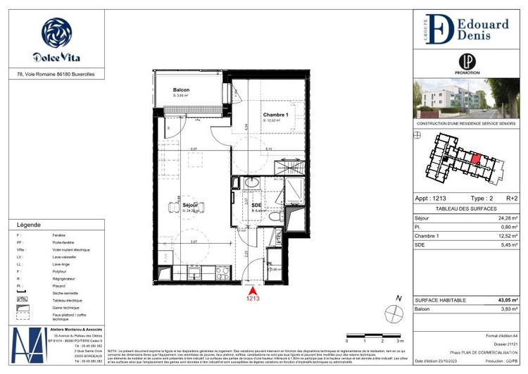
Buxerolles - 86
DOLCE VITA Residence Seniors - Appartements
Cash-flow mensuel
--
Estimatif mensuel moyen sur 10 ans
Livraison
4ème trimestre 2026














