Étape 1
Choisir et comparer
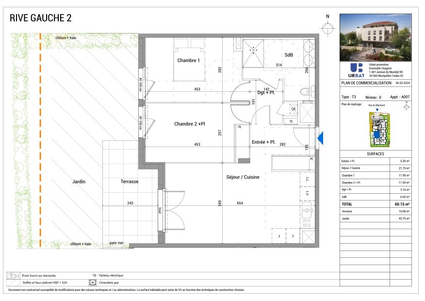
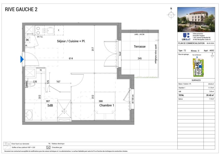
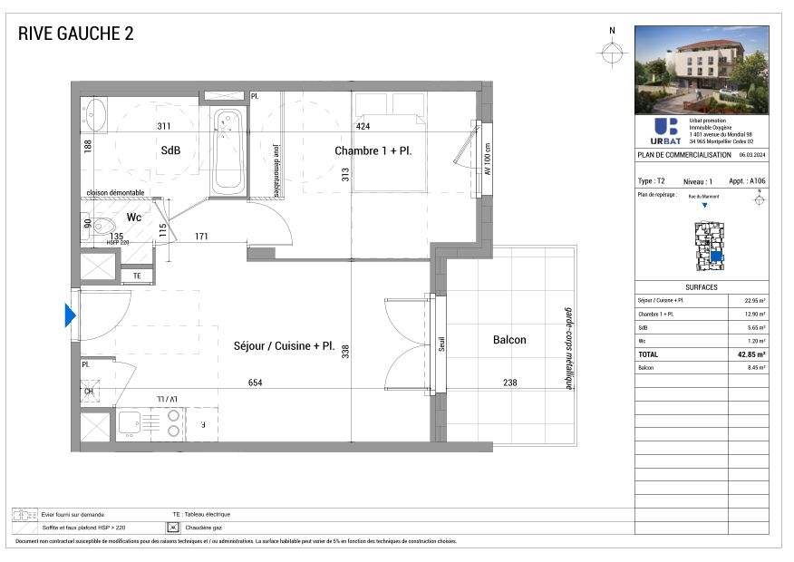
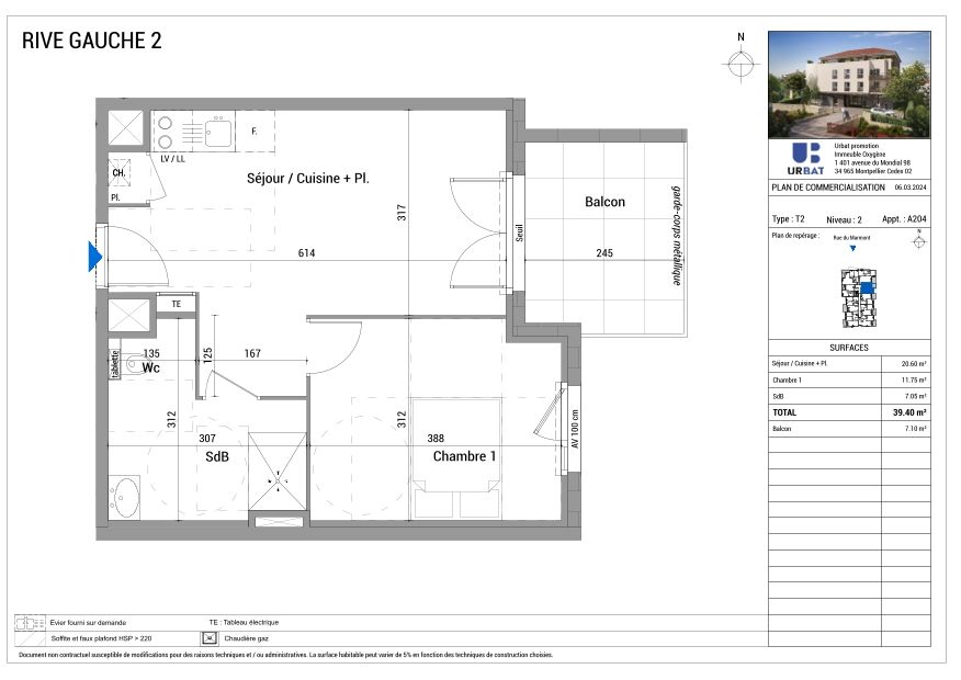
Comparez les lots, les plans et les prestations pour identifier le bien qui vous correspond.

Navigation du programme
Résidence
Toutes les informations clés du programme, ses documents utiles et les prestations de la résidence.
Les repères utiles pour situer la résidence.
Adresse
310 Rue du Marmont
Ville
01480 Jassans-Riottier
Ain • Auvergne-Rhône-Alpes
Livraison prévue
4ème trimestre 2027
Actabilité
Le programme est actable
Classe énergie
Promoteur
URBAT
À propos du programme
Au cœur du Beaujolais, vous avez choisi Jassans-Riottier, quelle bonne idée ! À 30 km de Lyon et 5 minutes de Villefranche-sur-Saône, Jassans-Riottier a tout.
Le cadre de vie en bord de Saône, les services concentrés, les équipements sportifs et de loisirs, les établissements scolaires.
Urbat vous a trouvé une adresse citadine, à 500 mètres des commerces et à quelques minutes de l’A6.
Votre résidence est comme vous l’aimez : un mix de traditionnel et de contemporain tout en discrétion et en élégance, avec des toits en tuiles, des façades effet pierre, des volumes harmonisés avec les bâtiments et pavillons voisins.
Vous, ce que vous aimez surtout, ce sont les espaces végétalisés qui entourent la résidence, le fait que les parkings soient dissimulés en sous-sol.
C’est le calme et la nature en ville !
Au détail, vous aimez aussi les petits plus qu’Urbat a intégrés pour vous : halls augmentés, paliers conviviaux, local à mobilités douces, dépose minute à vélos…
Documents utiles
Les pièces les plus utiles pour comprendre le programme.
Ce que propose la résidence
Équipements et services communs
Isolation acoustique
Isolation thermique
Isolation phonique
Ses points forts
Ce qui rend ce programme unique
RT 2012
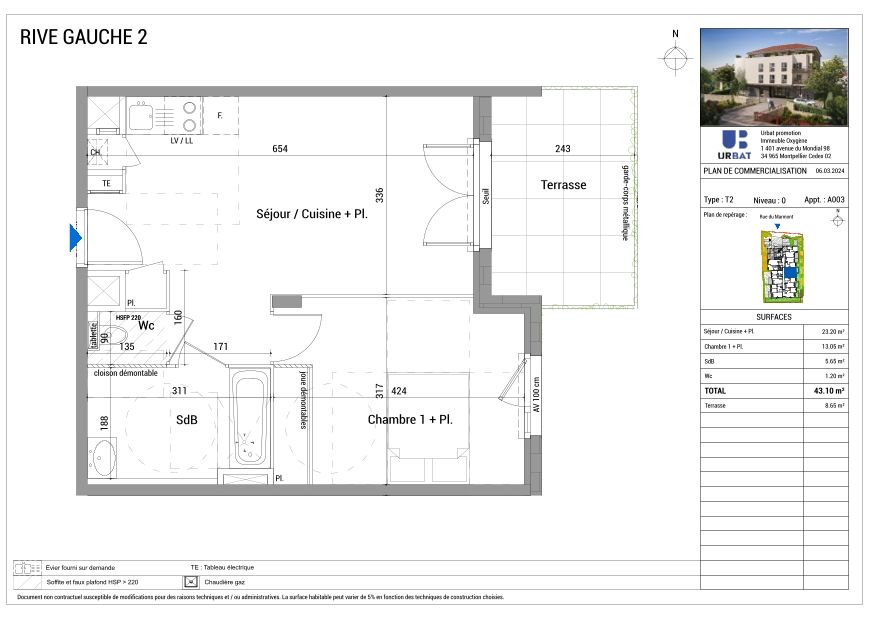
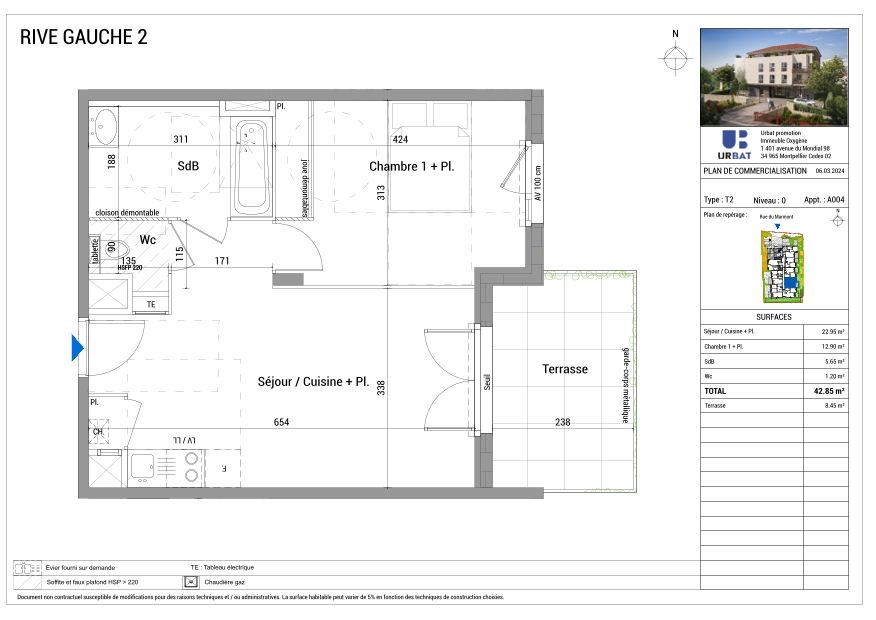
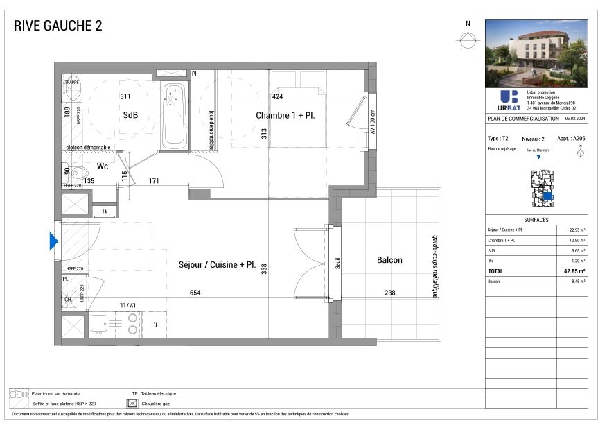
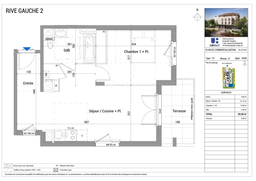
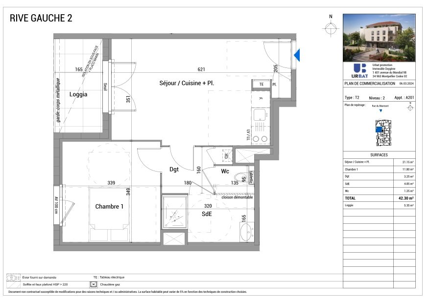
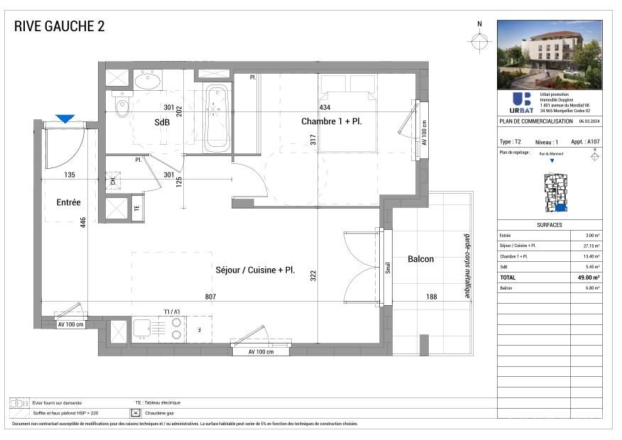
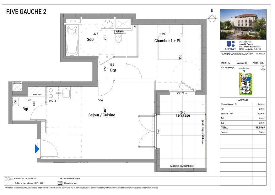
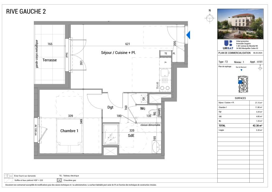
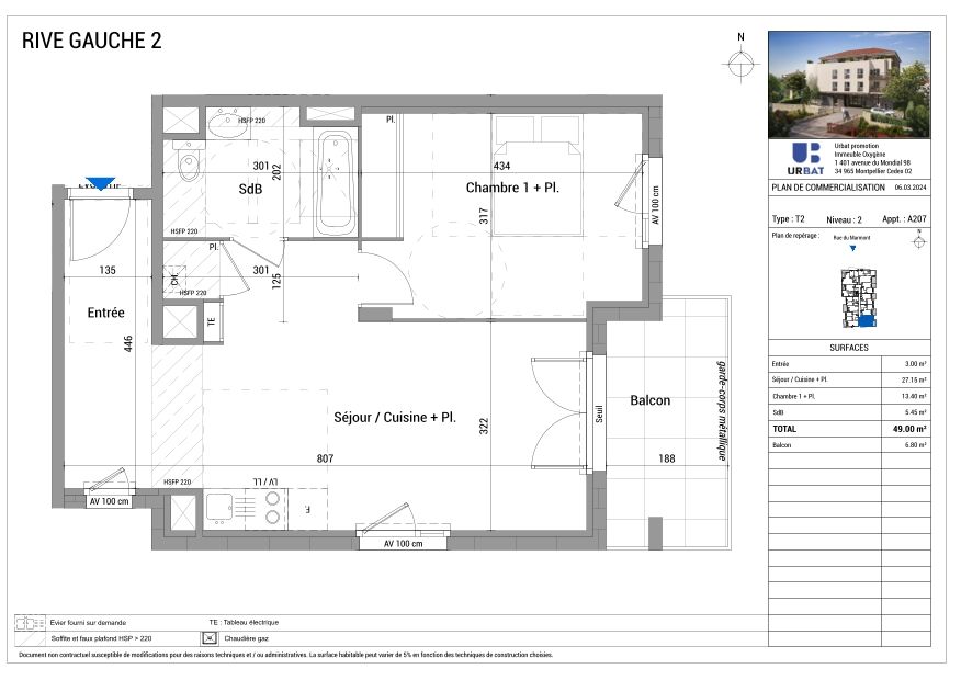
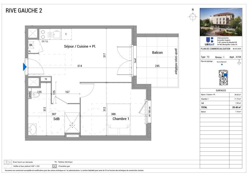
Plan 3D
Une lecture plus concrète de l'implantation et de l'organisation des logements.
Quartier
Carte, points d'intérêt et aperçu de la ville pour situer le programme dans son environnement.
Découvrez d'autres programmes susceptibles de vous intéresser.
Parcours d'achat
Étape 1
Comparez les lots, les plans et les prestations pour identifier le bien qui vous correspond.
Étape 2
Remplissez votre demande d'achat en ligne, puis validez les informations et documents demandés.
Étape 3
Finalisez votre plan de financement, puis validez les pièces demandées pour sécuriser l'opération.
Étape 4
Suivez les dernières formalités avec votre conseiller jusqu'à la signature définitive et la livraison.
Demande d'achat 100% en ligne
Renseignez vos informations et déposez vos pièces justificatives directement depuis votre espace sécurisé.
Informations importantes
Dépôt
1 500 EUR
Versé au notaire 10 jours après signature
Prestations
À la carte
Travaux et parking chiffrés selon lot
Garanties
VEFA + GFA
Cadre légal sécurisé
Frais notaire
2-3%
vs 7-8% dans l'ancien
Afin de valider votre achat, vous devrez verser un dépôt de garantie par virement auprès du notaire, 10 jours après la signature de votre contrat de réservation. Le dépôt affiché (1 500 EUR) correspond à une moyenne indicative et peut varier selon le promoteur.
L'activité de promotion immobilière est très encadrée. Pour la vente de logements neufs, c'est le régime de VEFA qui encadre l'opération.
Le montant dépend du lot, du promoteur et des choix retenus. Les prix fixes ci-dessous concernent uniquement les services financiers.
Liste non exhaustive, tarifs HT soumis à modification.
Acheter dans le neuf vous permet de réaliser une économie significative sur les frais de notaire.
Le promoteur de cette résidence est couvert par une Garantie Financière d'Achèvement (GFA). Cette garantie, réglementée par la loi, atteste de sa capacité à mener à bien la construction du projet.
Pour valider votre achat, le promoteur vous demandera :