Handee

Appartement T3 neuf à Nanterre — Beau Chemin

403 avenue de la République 92000 Nanterre CREDIT AGRICOLE
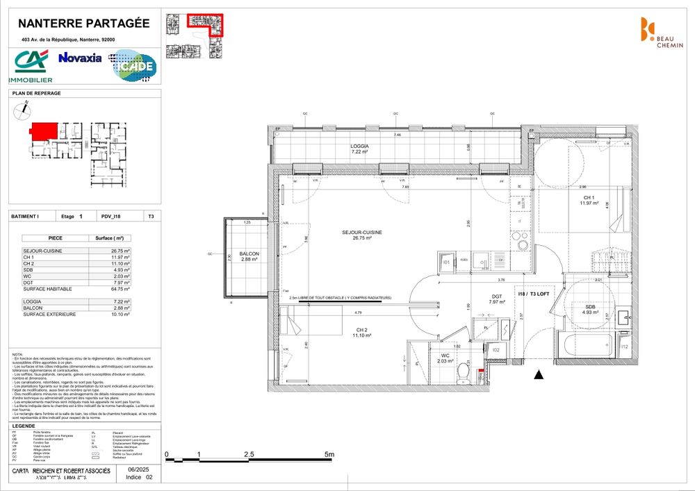
Plan
Plan
Image 2
1 photoPlan disponible

Fiche lot

Caractéristiques du logement

92000 Nanterre • Hauts-de-Seine

Programme Beau Chemin
Livraison 2ème trimestre 2028

Type

Appartement

Typologie

2 chambres /T3

Surface

65 m²

Niveau

1er étage

Référence

I018

Annexes et extérieurs

3 élément(s)
Parking
Stationnement

Réf. 0

+ 21 600 €
Balcon
Extérieur

Réf. 8276535332.88 m²

Loggia
Extérieur

Réf. 6598161657.22 m²

Solutions d'investissement disponibles

Résidence Principale Meublé Location Nue T.V.A Reduite LLI Jeanbrun LLI + Jeanbrun LLI + Meublé

Budget du lot

Prix total affiché pour ce lot et variantes disponibles selon le montage.

359 260 €

Composition du prix

Appartement 337 660 €
Annexes incluses + 21 600 €
Total affiché 359 260 €

Prix selon le montage

TVA 5,5%

Sous conditions de ressources et d’éligibilité.

315 849 €

LLI TVA 10%

Selon le montage LLI retenu pour le lot.

329 322 €

Le programme

Les repères utiles pour situer la résidence.

Adresse

403 avenue de la République

Ville

92000 Nanterre

Hauts-de-Seine • Île-de-France

Livraison prévue

2ème trimestre 2028

Classe énergie

Promoteur

CREDIT AGRICOLE

À propos du programme

Nanterre est situé à l’Ouest de Paris, limitrophe de Colombes et accueille sur son territoire une partie du quartier d'affaire de La Défense. La commune profite d’un excellent maillage en réseau routier et en transports en commun.


Dans le cadre de la modernisation de l’actuel Hôpital Max Fourestier, ce nouveau quartier mêlera solidarité de voisinage, activités partagées autour de la nature, lieux d’échanges et de rencontres. Le bâtiment historique sera conservé, réhabilité et deviendra un espace de convivialité.


Votre futur programme neuf propose des appartements du studio au 5 pièces duplex, avec balcons ou terrasses et même des jardins privatifs. Les prestations sont soignées avec un confort thermique et acoustique renforcé, le chauffage collectif urbain, et des équipements de sécurité et de stationnement en sous-sol.


Cette résidence neuve se caractérise par sa performance énergétique aux normes RE2020, la pose de panneaux photovoltaïques, la gestion optimisée des eaux pluviales et sa stratégie bas carbone. Elle bénéficie également du label NF Habitat HQE pour des logements performants et de qualité.


Documents utiles

Les pièces les plus utiles pour comprendre le programme.

Mon estimation

Calculez votre capacité d'emprunt pour une estimation personnalisée.

Estimatif mensuel moyen sur 10 ans

Cash-flow mensuel

--

Loyer estimé --
Mensualité prêt --
Taxe foncière --
Charges --
Impôt sur les loyers --

Estimatif mensuel moyen sur 10 ans

Chargement de la carte...

A retenir

Appartement I018

92000 Nanterre

Disponible à l'achat

Prix du logement

359 260 €

T.T.C
t.v.a 20%

Mon estimation

Calculez votre capacité d'emprunt pour une estimation personnalisée.

Estimatif mensuel moyen sur 10 ans

Cash-flow mensuel

--

Loyer estimé --
Mensualité prêt --
Taxe foncière --
Charges --
Impôt sur les loyers --

Estimatif mensuel moyen sur 10 ans

Trouver un conseiller

Livraison

CREDIT AGRICOLE

2ème trimestre 2028

Parcours d'achat

Acheter votre logement en 4 étapes

  1. Étape 1

    Choisir et comparer

    1

    Comparez les lots, les plans et les prestations pour identifier le bien qui vous correspond.

  2. Étape 2

    Réserver le lot

    2

    Remplissez votre demande d'achat en ligne, puis validez les informations et documents demandés.

  3. Étape 3

    Financer et valider

    3

    Finalisez votre plan de financement, puis validez les pièces demandées pour sécuriser l'opération.

  4. Étape 4

    Signer et préparer la remise des clés

    4

    Suivez les dernières formalités avec votre conseiller jusqu'à la signature définitive et la livraison.

Demande d'achat 100% en ligne

Renseignez vos informations et déposez vos pièces justificatives directement depuis votre espace sécurisé.

Informations importantes

Ce qu'il faut savoir avant d'acheter

Dépôt

1 500 EUR

Versé au notaire 10 jours après signature

Prestations

À la carte

Travaux et parking chiffrés selon lot

Garanties

VEFA + GFA

Cadre légal sécurisé

Frais notaire

2-3%

vs 7-8% dans l'ancien

Frais et dépôt de garantie

Afin de valider votre achat, vous devrez verser un dépôt de garantie par virement auprès du notaire, 10 jours après la signature de votre contrat de réservation. Le dépôt affiché (1 500 EUR) correspond à une moyenne indicative et peut varier selon le promoteur.

Dépôt de garantie : 1 500 EUR

Cadre légal et étapes (VEFA)

L'activité de promotion immobilière est très encadrée. Pour la vente de logements neufs, c'est le régime de VEFA qui encadre l'opération.

Recherche du terrainMontage de l'opérationMarché travauxSuivi de l'opérationCommercialisationConstructionLivraisonSuivi des garanties

Prestations complémentaires (optionnelles)

Le montant dépend du lot, du promoteur et des choix retenus. Les prix fixes ci-dessous concernent uniquement les services financiers.

  • Travaux modificatifs du logementSur devis
  • Place de parking supplémentaireSelon le lot
  • Courtier en financement2 500 EUR
  • Négociation assurance crédit99 EUR
  • Gestion locativeSur devis

Liste non exhaustive, tarifs HT soumis à modification.

Frais de notaire réduits

2-3%dans le neufvs7-8%ancien

Acheter dans le neuf vous permet de réaliser une économie significative sur les frais de notaire.

Garantie financière (GFA)

Le promoteur de cette résidence est couvert par une Garantie Financière d'Achèvement (GFA). Cette garantie, réglementée par la loi, atteste de sa capacité à mener à bien la construction du projet.

Sécurité Financière : La GFA garantit que le financement nécessaire à l'achèvement du projet est en place.
Livraison Conforme : Vous pouvez avoir confiance dans le fait que la résidence sera livrée selon les normes convenues.
Sérénité pour les Acheteurs : En tant qu'acquéreur, cette garantie vous assure une transition en douceur vers votre nouveau logement.

Documents requis pour l'achat

Pour valider votre achat, le promoteur vous demandera :

  • 1 Pièce d'identité officielle avec photo
  • 2 Avis d'imposition
  • 3 Justificatif de domicile
  • 4 Dépôt de garantie par virement bancaire