Parking
StationnementRéf. 0




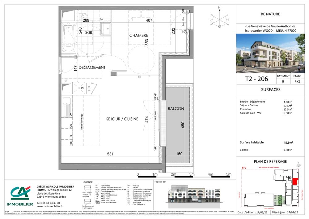
Fiche lot
77000 Melun • Seine-et-Marne
Type
Appartement
Typologie
1 chambre /T2
Surface
45 m²
Niveau
2ème étage
Orientation
Est
Référence
B206
Réf. 0
Réf. 899598120 • 7.8 m²
Budget du lot
Prix total affiché pour ce lot et variantes disponibles selon le montage.
224 900 €
Composition du prix
Prix selon le montage
TVA 5,5%
Sous conditions de ressources et d’éligibilité.
Les repères utiles pour situer la résidence.
Adresse
Eco-quartier WOODI ZAC La Plaine de Montaigu
Ville
77000 Melun
Seine-et-Marne • Île-de-France
Livraison prévue
1er trimestre 2028
Classe énergie
Promoteur
CREDIT AGRICOLE
À propos du programme
Des appartements neufs au sein de l’écoquartier WOODI à Melun.
Découvrez en avant-première la nouvelle réalisation neuve de Crédit Agricole Immobilier sur la commune de Melun en Seine-et-Marne, située à 32 min. de Paris Gare de Lyon en transports en commun*.
Ville en pleine mutation, Melun est concernée par de grands projets urbains dont l’écoquartier WOODI qui met à l’honneur l’écologie et la biodiversité pour une qualité de vie optimale. WOODI rassemble tous les équipements d’un cœur de ville : groupe scolaire, crèche, boulangerie, plaine des sports (déjà livrés), commerces, équipements sportifs, conciergerie, espaces verts et forêt de 13 ha (à venir).
Pour faciliter vos déplacements, l’écoquartier est desservi par une ligne de bus et sera prochainement relié à la Gare de Melun en moins de 15 min. grâce au TZen2 (horizon 2027)**. En voiture, vous rejoignez l’A5 en 7 min.*.
Découvrez l'écoquartier en vidéo sur la page quartier Woody.
Documents utiles
Les pièces les plus utiles pour comprendre le programme.
Mon estimation
Calculez votre capacité d'emprunt pour une estimation personnalisée.
Estimatif mensuel moyen sur 10 ans
Cash-flow mensuel
--
Estimatif mensuel moyen sur 10 ans
A retenir
77000 Melun
Disponible à l'achatPrix du logement
224 900 €
T.T.CMon estimation
Calculez votre capacité d'emprunt pour une estimation personnalisée.
Estimatif mensuel moyen sur 10 ans
Cash-flow mensuel
--
Estimatif mensuel moyen sur 10 ans
Livraison
1er trimestre 2028
Parcours d'achat
Étape 1
Comparez les lots, les plans et les prestations pour identifier le bien qui vous correspond.
Étape 2
Remplissez votre demande d'achat en ligne, puis validez les informations et documents demandés.
Étape 3
Finalisez votre plan de financement, puis validez les pièces demandées pour sécuriser l'opération.
Étape 4
Suivez les dernières formalités avec votre conseiller jusqu'à la signature définitive et la livraison.
Demande d'achat 100% en ligne
Renseignez vos informations et déposez vos pièces justificatives directement depuis votre espace sécurisé.
Informations importantes
Dépôt
1 500 EUR
Versé au notaire 10 jours après signature
Prestations
À la carte
Travaux et parking chiffrés selon lot
Garanties
VEFA + GFA
Cadre légal sécurisé
Frais notaire
2-3%
vs 7-8% dans l'ancien
Afin de valider votre achat, vous devrez verser un dépôt de garantie par virement auprès du notaire, 10 jours après la signature de votre contrat de réservation. Le dépôt affiché (1 500 EUR) correspond à une moyenne indicative et peut varier selon le promoteur.
L'activité de promotion immobilière est très encadrée. Pour la vente de logements neufs, c'est le régime de VEFA qui encadre l'opération.
Le montant dépend du lot, du promoteur et des choix retenus. Les prix fixes ci-dessous concernent uniquement les services financiers.
Liste non exhaustive, tarifs HT soumis à modification.
Acheter dans le neuf vous permet de réaliser une économie significative sur les frais de notaire.
Le promoteur de cette résidence est couvert par une Garantie Financière d'Achèvement (GFA). Cette garantie, réglementée par la loi, atteste de sa capacité à mener à bien la construction du projet.
Pour valider votre achat, le promoteur vous demandera :