Handee

Appartement T3 neuf à Pantin — Les Jardins Kléber

2-6 rue Kléber 93500 Pantin Kaufman & Broad
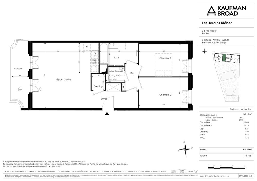
Plan
Plan
Image 2
Image 3
Image 4
Image 5
4 photosPlan disponible

Fiche lot

Caractéristiques du logement

93500 Pantin • Seine-Saint-Denis

Programme Les Jardins Kléber
Livraison 1er trimestre 2028

Type

Appartement

Typologie

2 chambres /T3

Surface

65 m²

Niveau

1er étage

Orientation

Sud

Référence

A2105

Annexes et extérieurs

2 élément(s)
56
Stationnement

Réf. 56

BALCONY
Extérieur

Réf. BALCONY

Solutions d'investissement disponibles

Résidence Principale Meublé Location Nue

Budget du lot

Prix total affiché pour ce lot et variantes disponibles selon le montage.

457 000 €

Composition du prix

Appartement 457 000 €
Total affiché 457 000 €

Le programme

Les repères utiles pour situer la résidence.

Adresse

2-6 rue Kléber

Ville

93500 Pantin

Seine-Saint-Denis • Île-de-France

Livraison prévue

1er trimestre 2028

Classe énergie

Promoteur

Kaufman & Broad

À propos du programme

À l’image de l’Est parisien, Pantin affiche une cote de popularité en hausse continue et offre une qualité de vie irréprochable.

Desservie par les lignes 5 et 11 du métro, cette commune bénéficie de tous les avantages de la petite couronne parisienne : Paris est à une station ou moins de 15 minutes à pied, et au quotidien les nombreux équipements culturels, scolaires et sportifs font le bonheur de ses habitants.

Cette nouvelle résidence neuve de standing présente une architecture classique et élégante, avec ses façades en briques et enduits et propose un large choix de surfaces, du studio au 4 pièces.

Une opportunité idéale pour investir dans un bien à louer vide ou meublé en colocation et profiter de la croissance du marché immobilier de cette ville.

Documents utiles

Les pièces les plus utiles pour comprendre le programme.

Mon estimation

Calculez votre capacité d'emprunt pour une estimation personnalisée.

Estimatif mensuel moyen sur 10 ans

Cash-flow mensuel

--

Loyer estimé --
Mensualité prêt --
Taxe foncière --
Charges --
Impôt sur les loyers --

Estimatif mensuel moyen sur 10 ans

Chargement de la carte...

A retenir

Appartement A2105

93500 Pantin

Disponible à l'achat

Prix du logement

457 000 €

T.T.C
t.v.a 20%

Mon estimation

Calculez votre capacité d'emprunt pour une estimation personnalisée.

Estimatif mensuel moyen sur 10 ans

Cash-flow mensuel

--

Loyer estimé --
Mensualité prêt --
Taxe foncière --
Charges --
Impôt sur les loyers --

Estimatif mensuel moyen sur 10 ans

Trouver un conseiller

Livraison

Kaufman & Broad

1er trimestre 2028

Parcours d'achat

Acheter votre logement en 4 étapes

  1. Étape 1

    Choisir et comparer

    1

    Comparez les lots, les plans et les prestations pour identifier le bien qui vous correspond.

  2. Étape 2

    Réserver le lot

    2

    Remplissez votre demande d'achat en ligne, puis validez les informations et documents demandés.

  3. Étape 3

    Financer et valider

    3

    Finalisez votre plan de financement, puis validez les pièces demandées pour sécuriser l'opération.

  4. Étape 4

    Signer et préparer la remise des clés

    4

    Suivez les dernières formalités avec votre conseiller jusqu'à la signature définitive et la livraison.

Demande d'achat 100% en ligne

Renseignez vos informations et déposez vos pièces justificatives directement depuis votre espace sécurisé.

Informations importantes

Ce qu'il faut savoir avant d'acheter

Dépôt

1 500 EUR

Versé au notaire 10 jours après signature

Prestations

À la carte

Travaux et parking chiffrés selon lot

Garanties

VEFA + GFA

Cadre légal sécurisé

Frais notaire

2-3%

vs 7-8% dans l'ancien

Frais et dépôt de garantie

Afin de valider votre achat, vous devrez verser un dépôt de garantie par virement auprès du notaire, 10 jours après la signature de votre contrat de réservation. Le dépôt affiché (1 500 EUR) correspond à une moyenne indicative et peut varier selon le promoteur.

Dépôt de garantie : 1 500 EUR

Cadre légal et étapes (VEFA)

L'activité de promotion immobilière est très encadrée. Pour la vente de logements neufs, c'est le régime de VEFA qui encadre l'opération.

Recherche du terrainMontage de l'opérationMarché travauxSuivi de l'opérationCommercialisationConstructionLivraisonSuivi des garanties

Prestations complémentaires (optionnelles)

Le montant dépend du lot, du promoteur et des choix retenus. Les prix fixes ci-dessous concernent uniquement les services financiers.

  • Travaux modificatifs du logementSur devis
  • Place de parking supplémentaireSelon le lot
  • Courtier en financement2 500 EUR
  • Négociation assurance crédit99 EUR
  • Gestion locativeSur devis

Liste non exhaustive, tarifs HT soumis à modification.

Frais de notaire réduits

2-3%dans le neufvs7-8%ancien

Acheter dans le neuf vous permet de réaliser une économie significative sur les frais de notaire.

Garantie financière (GFA)

Le promoteur de cette résidence est couvert par une Garantie Financière d'Achèvement (GFA). Cette garantie, réglementée par la loi, atteste de sa capacité à mener à bien la construction du projet.

Sécurité Financière : La GFA garantit que le financement nécessaire à l'achèvement du projet est en place.
Livraison Conforme : Vous pouvez avoir confiance dans le fait que la résidence sera livrée selon les normes convenues.
Sérénité pour les Acheteurs : En tant qu'acquéreur, cette garantie vous assure une transition en douceur vers votre nouveau logement.

Documents requis pour l'achat

Pour valider votre achat, le promoteur vous demandera :

  • 1 Pièce d'identité officielle avec photo
  • 2 Avis d'imposition
  • 3 Justificatif de domicile
  • 4 Dépôt de garantie par virement bancaire