Handee

Appartement T5 neuf à Arcueil — LE DOMAINE L'ADHARA

21 Avenue Jeanne d'Arc 94110 Arcueil NACA IMMOBILIER
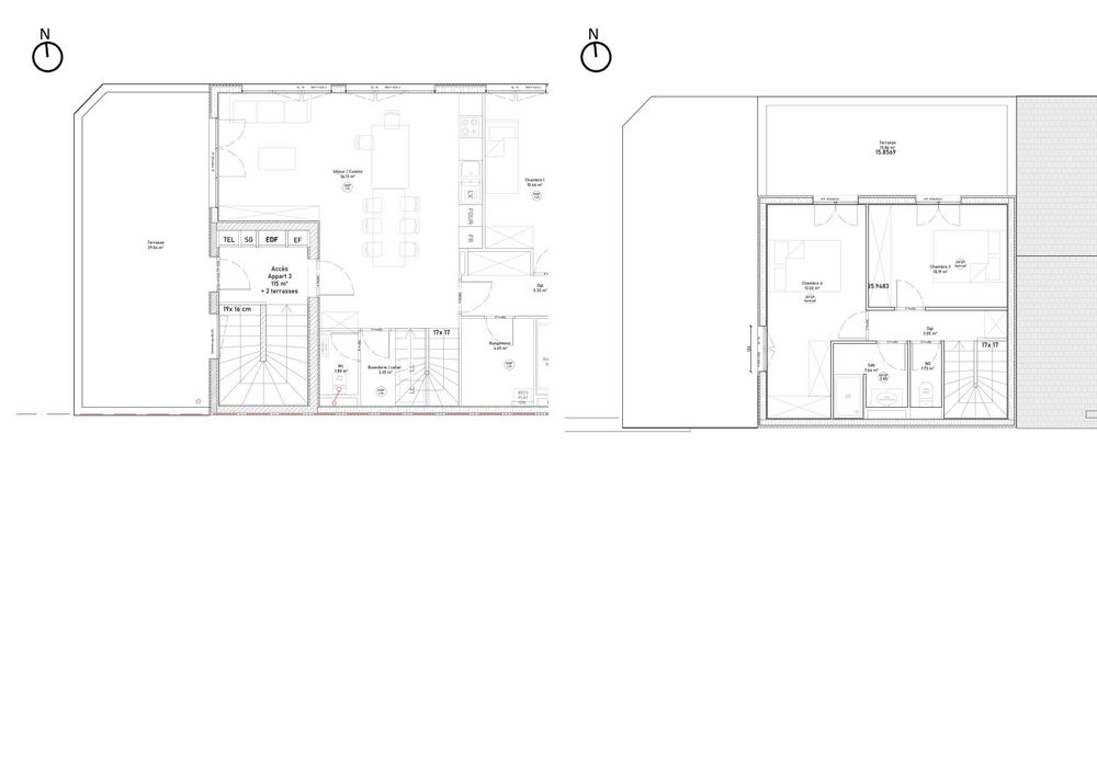
Plan
Plan
Image 2
1 photoPlan disponible

Fiche lot

Caractéristiques du logement

94110 Arcueil • Val-de-Marne

Programme LE DOMAINE L'ADHARA
Actable à partir du 30 septembre 2026 Livraison 3ème trimestre 2026

Type

Appartement

Typologie

4 chambres /T5

Surface

115 m²

Niveau

2ème étage

Orientation

Ouest

Référence

T5 DIADEM

Annexes et extérieurs

2 élément(s)
6
Stationnement

Réf. 0

Terasse
Extérieur

Réf. 144.95 m²

Solutions d'investissement disponibles

Résidence Principale Meublé Location Nue T.V.A Reduite

Budget du lot

Prix total affiché pour ce lot et variantes disponibles selon le montage.

850 800 €

Composition du prix

Appartement 850 800 €
Total affiché 850 800 €

Prix selon le montage

TVA 5,5%

Sous conditions de ressources et d’éligibilité.

747 995 €

Le programme

Les repères utiles pour situer la résidence.

Adresse

21 Avenue Jeanne d'Arc

Ville

94110 Arcueil

Val-de-Marne • Île-de-France

Livraison prévue

3ème trimestre 2026

Actabilité

Le programme sera actable à partir du 30 septembre 2026

Classe énergie

Promoteur

NACA IMMOBILIER

À propos du programme

À seulement quelques pas de la gare RER B Laplace, du Métro 4 Barbara et du centre commercial de la Vache Noire, LE DOMAINE L'ADHARA vous ouvre les portes d’un lieu de vie privilégié, alliant confort moderne, élégance architecturale et intimité résidentielle.

Ce programme neuf, intimiste et résolument haut de gamme, se compose de cinq logements uniques nichés dans un écrin de verdure sécurisé.

Chaque bien a été pensé pour offrir une expérience de vie sereine et raffinée, avec des prestations aux dernières normes de construction et des performances énergétiques élevées (DPE B pour la majorité des lots, C pour le T2 Mira).

Le projet s’inscrit sur une parcelle située au cœur d’Arcueil, à la jonction entre des typologies urbaines variées : immeubles collectifs, maisons individuelles, place publique et rues commerçantes.

Cette position en fait un point de transition entre centre-ville, quartiers résidentiels et grands axes.

Une place de stationnement attribuée pour chaque lot.

Mon estimation

Calculez votre capacité d'emprunt pour une estimation personnalisée.

Estimatif mensuel moyen sur 10 ans

Cash-flow mensuel

--

Loyer estimé --
Mensualité prêt --
Taxe foncière --
Charges --
Impôt sur les loyers --

Estimatif mensuel moyen sur 10 ans

Chargement de la carte...

A retenir

Appartement T5 DIADEM

94110 Arcueil

Disponible à l'achat

Prix du logement

850 800 €

T.T.C
t.v.a 20%

Mon estimation

Calculez votre capacité d'emprunt pour une estimation personnalisée.

Estimatif mensuel moyen sur 10 ans

Cash-flow mensuel

--

Loyer estimé --
Mensualité prêt --
Taxe foncière --
Charges --
Impôt sur les loyers --

Estimatif mensuel moyen sur 10 ans

Trouver un conseiller

Livraison

NACA IMMOBILIER

3ème trimestre 2026

Parcours d'achat

Acheter votre logement en 4 étapes

  1. Étape 1

    Choisir et comparer

    1

    Comparez les lots, les plans et les prestations pour identifier le bien qui vous correspond.

  2. Étape 2

    Réserver le lot

    2

    Remplissez votre demande d'achat en ligne, puis validez les informations et documents demandés.

  3. Étape 3

    Financer et valider

    3

    Finalisez votre plan de financement, puis validez les pièces demandées pour sécuriser l'opération.

  4. Étape 4

    Signer et préparer la remise des clés

    4

    Suivez les dernières formalités avec votre conseiller jusqu'à la signature définitive et la livraison.

Demande d'achat 100% en ligne

Renseignez vos informations et déposez vos pièces justificatives directement depuis votre espace sécurisé.

Informations importantes

Ce qu'il faut savoir avant d'acheter

Dépôt

1 500 EUR

Versé au notaire 10 jours après signature

Prestations

À la carte

Travaux et parking chiffrés selon lot

Garanties

VEFA + GFA

Cadre légal sécurisé

Frais notaire

2-3%

vs 7-8% dans l'ancien

Frais et dépôt de garantie

Afin de valider votre achat, vous devrez verser un dépôt de garantie par virement auprès du notaire, 10 jours après la signature de votre contrat de réservation. Le dépôt affiché (1 500 EUR) correspond à une moyenne indicative et peut varier selon le promoteur.

Dépôt de garantie : 1 500 EUR

Cadre légal et étapes (VEFA)

L'activité de promotion immobilière est très encadrée. Pour la vente de logements neufs, c'est le régime de VEFA qui encadre l'opération.

Recherche du terrainMontage de l'opérationMarché travauxSuivi de l'opérationCommercialisationConstructionLivraisonSuivi des garanties

Prestations complémentaires (optionnelles)

Le montant dépend du lot, du promoteur et des choix retenus. Les prix fixes ci-dessous concernent uniquement les services financiers.

  • Travaux modificatifs du logementSur devis
  • Place de parking supplémentaireSelon le lot
  • Courtier en financement2 500 EUR
  • Négociation assurance crédit99 EUR
  • Gestion locativeSur devis

Liste non exhaustive, tarifs HT soumis à modification.

Frais de notaire réduits

2-3%dans le neufvs7-8%ancien

Acheter dans le neuf vous permet de réaliser une économie significative sur les frais de notaire.

Garantie financière (GFA)

Le promoteur de cette résidence est couvert par une Garantie Financière d'Achèvement (GFA). Cette garantie, réglementée par la loi, atteste de sa capacité à mener à bien la construction du projet.

Sécurité Financière : La GFA garantit que le financement nécessaire à l'achèvement du projet est en place.
Livraison Conforme : Vous pouvez avoir confiance dans le fait que la résidence sera livrée selon les normes convenues.
Sérénité pour les Acheteurs : En tant qu'acquéreur, cette garantie vous assure une transition en douceur vers votre nouveau logement.

Documents requis pour l'achat

Pour valider votre achat, le promoteur vous demandera :

  • 1 Pièce d'identité officielle avec photo
  • 2 Avis d'imposition
  • 3 Justificatif de domicile
  • 4 Dépôt de garantie par virement bancaire