Handee

Appartement T2 neuf à Créteil — STATION EIFFEL

0002 RUE ALBERT EINSTEIN 94000 Créteil NEXITY
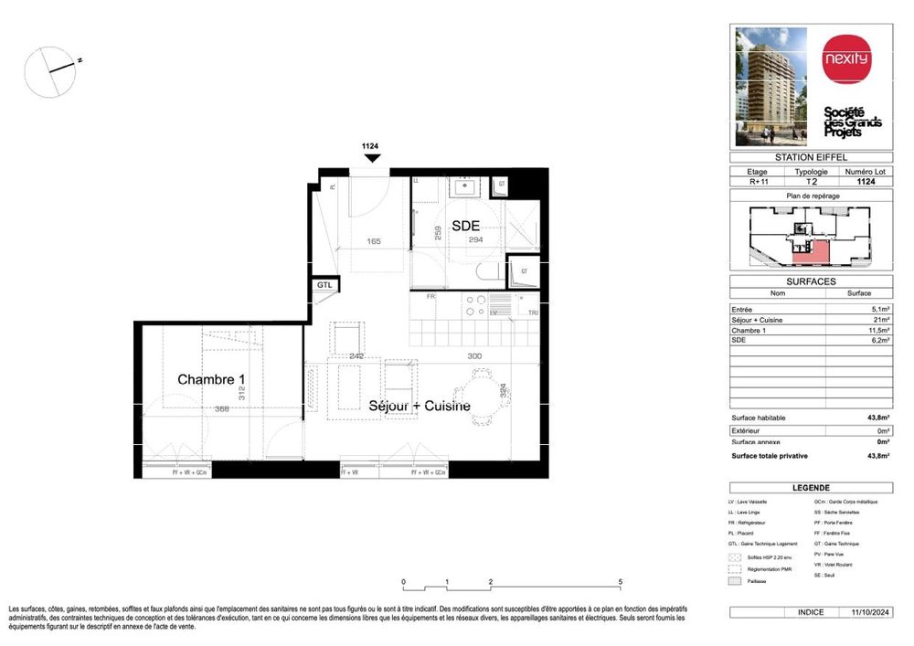
Plan
Plan
Image 2
1 photoPlan disponible

Fiche lot

Caractéristiques du logement

94000 Créteil • Val-de-Marne

Programme STATION EIFFEL
Livraison 3ème trimestre 2028

Type

Appartement

Typologie

1 chambre /T2

Surface

44 m²

Niveau

11ème étage

Orientation

EST

Référence

1124

Annexes et extérieurs

1 élément(s)
PARKING SS
Stationnement

Réf. 410

Solutions d'investissement disponibles

Résidence Principale Meublé Location Nue LLI Jeanbrun LLI + Jeanbrun LLI + Meublé

Budget du lot

Prix total affiché pour ce lot et variantes disponibles selon le montage.

278 000 €

Composition du prix

Appartement 278 000 €
Total affiché 278 000 €

Prix selon le montage

LLI TVA 10%

Selon le montage LLI retenu pour le lot.

254 833 €

Le programme

Les repères utiles pour situer la résidence.

Adresse

0002 RUE ALBERT EINSTEIN

Ville

94000 Créteil

Val-de-Marne • Île-de-France

Livraison prévue

3ème trimestre 2028

Classe énergie

Promoteur

NEXITY

À propos du programme

Découvrez notre projet de construction emblématique au coeur du quartier de la gare de l'Echat, avec des logements diversifiés allant du studio au 5 pièces, pour habiter ou investir.

Les appartements offriront pour la plupart un espace privatif extérieur tel qu'un balcon ou une loggia, ainsi qu'une double exposition pour maximiser la lumière naturelle.

Le bâtiment, avec sa céramique en relief doré, deviendra le signal d'entrée du quartier et offrira des vues dégagées depuis ses 17 étages.

Un coeur d'îlot paysager sera aménagé à l'arrière du bâtiment, avec des espaces verts, une terrasse collective équipée d'assises, et un local vélos pour les résidents.

Mon estimation

Calculez votre capacité d'emprunt pour une estimation personnalisée.

Estimatif mensuel moyen sur 10 ans

Cash-flow mensuel

--

Loyer estimé --
Mensualité prêt --
Taxe foncière --
Charges --
Impôt sur les loyers --

Estimatif mensuel moyen sur 10 ans

Chargement de la carte...

A retenir

Appartement 1124

94000 Créteil

Disponible à l'achat

Prix du logement

278 000 €

T.T.C
t.v.a 20%

Mon estimation

Calculez votre capacité d'emprunt pour une estimation personnalisée.

Estimatif mensuel moyen sur 10 ans

Cash-flow mensuel

--

Loyer estimé --
Mensualité prêt --
Taxe foncière --
Charges --
Impôt sur les loyers --

Estimatif mensuel moyen sur 10 ans

Trouver un conseiller

Livraison

NEXITY

3ème trimestre 2028

Parcours d'achat

Acheter votre logement en 4 étapes

  1. Étape 1

    Choisir et comparer

    1

    Comparez les lots, les plans et les prestations pour identifier le bien qui vous correspond.

  2. Étape 2

    Réserver le lot

    2

    Remplissez votre demande d'achat en ligne, puis validez les informations et documents demandés.

  3. Étape 3

    Financer et valider

    3

    Finalisez votre plan de financement, puis validez les pièces demandées pour sécuriser l'opération.

  4. Étape 4

    Signer et préparer la remise des clés

    4

    Suivez les dernières formalités avec votre conseiller jusqu'à la signature définitive et la livraison.

Demande d'achat 100% en ligne

Renseignez vos informations et déposez vos pièces justificatives directement depuis votre espace sécurisé.

Informations importantes

Ce qu'il faut savoir avant d'acheter

Dépôt

1 500 EUR

Versé au notaire 10 jours après signature

Prestations

À la carte

Travaux et parking chiffrés selon lot

Garanties

VEFA + GFA

Cadre légal sécurisé

Frais notaire

2-3%

vs 7-8% dans l'ancien

Frais et dépôt de garantie

Afin de valider votre achat, vous devrez verser un dépôt de garantie par virement auprès du notaire, 10 jours après la signature de votre contrat de réservation. Le dépôt affiché (1 500 EUR) correspond à une moyenne indicative et peut varier selon le promoteur.

Dépôt de garantie : 1 500 EUR

Cadre légal et étapes (VEFA)

L'activité de promotion immobilière est très encadrée. Pour la vente de logements neufs, c'est le régime de VEFA qui encadre l'opération.

Recherche du terrainMontage de l'opérationMarché travauxSuivi de l'opérationCommercialisationConstructionLivraisonSuivi des garanties

Prestations complémentaires (optionnelles)

Le montant dépend du lot, du promoteur et des choix retenus. Les prix fixes ci-dessous concernent uniquement les services financiers.

  • Travaux modificatifs du logementSur devis
  • Place de parking supplémentaireSelon le lot
  • Courtier en financement2 500 EUR
  • Négociation assurance crédit99 EUR
  • Gestion locativeSur devis

Liste non exhaustive, tarifs HT soumis à modification.

Frais de notaire réduits

2-3%dans le neufvs7-8%ancien

Acheter dans le neuf vous permet de réaliser une économie significative sur les frais de notaire.

Garantie financière (GFA)

Le promoteur de cette résidence est couvert par une Garantie Financière d'Achèvement (GFA). Cette garantie, réglementée par la loi, atteste de sa capacité à mener à bien la construction du projet.

Sécurité Financière : La GFA garantit que le financement nécessaire à l'achèvement du projet est en place.
Livraison Conforme : Vous pouvez avoir confiance dans le fait que la résidence sera livrée selon les normes convenues.
Sérénité pour les Acheteurs : En tant qu'acquéreur, cette garantie vous assure une transition en douceur vers votre nouveau logement.

Documents requis pour l'achat

Pour valider votre achat, le promoteur vous demandera :

  • 1 Pièce d'identité officielle avec photo
  • 2 Avis d'imposition
  • 3 Justificatif de domicile
  • 4 Dépôt de garantie par virement bancaire