Parking
StationnementRéf. 13



Fiche lot
94100 Saint-Maur-des-Fossés • Val-de-Marne
Type
Appartement
Typologie
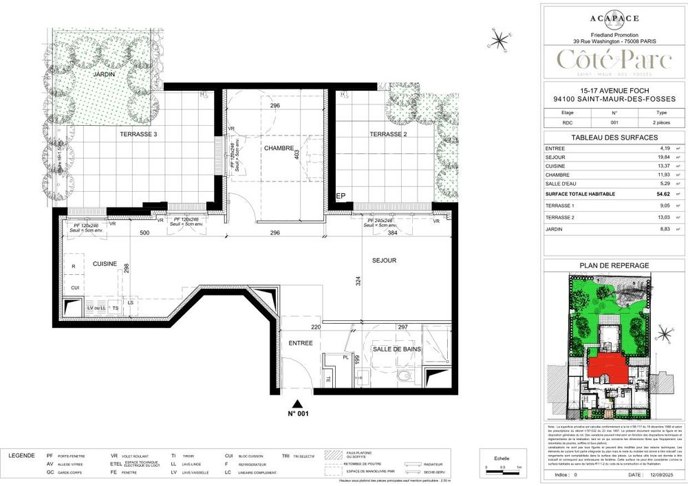
1 chambre /T2
Surface
55 m²
Niveau
1er étage
Orientation
Nord-Est
Référence
001
Réf. 13
Budget du lot
Prix total affiché pour ce lot et variantes disponibles selon le montage.
455 000 €
Composition du prix
Les repères utiles pour situer la résidence.
Adresse
15 AVENUE FOCH SAINT MAUR DES FOSSES
Ville
94100 Saint-Maur-des-Fossés
Val-de-Marne • Île-de-France
Livraison prévue
1er trimestre 2028
Actabilité
Le programme est actable
Classe énergie
Promoteur
ACAPACE
À propos du programme
Devenez propriétaire au cœur d'une résidence intimiste et verdoyante.
Avec vue dégagée sur rue ou d'un vaste poumon vert, devenez propriétaire de votre appartement du studio au 5 pièces duplex, tous dotés d'un extérieur privatif entre balcon, terrasse et jardin privatif.
Au sein du quartier du Parc de Saint-Maur, la résidence Côté Parc est idéalement située avenue Foch, à seulement 3 minutes à pied du centre-ville et du RER A Le Parc-Saint-Maur, permettant de rejoindre Châtelet - Les Halles en 19 minutes.
À proximité immédiate du projet, une supérette, des restaurants et une multitude de commerces de proximité assurent la vie pratique et répondent à toutes les envies.
Pâtissier, chocolatier, boulanger, fromager, épicier, boucher, caviste, magasin bio… il est agréable de flâner devant les devantures des boutiques et se laisser tenter.
Pour s'approvisionner en produits frais, le marché se tient deux fois par semaine sur la Place des Marronniers.
Documents utiles
Les pièces les plus utiles pour comprendre le programme.
Ce que propose la résidence
Équipements et services communs
Isolation thermique
Isolation acoustique
Isolation phonique
Parking en sous-sol
Local à vélo
Ses points forts
Ce qui rend ce programme unique
RE 2020
Ascenseur
Fibre optique
Mon estimation
Calculez votre capacité d'emprunt pour une estimation personnalisée.
Estimatif mensuel moyen sur 10 ans
Cash-flow mensuel
--
Estimatif mensuel moyen sur 10 ans
Les points de repère utiles autour du programme.
Transports :
5 min à pied de la RER
Commerces :
3 min à pied
Écoles :
11 min à pied
Universités :
29 min en transports
A retenir
94100 Saint-Maur-des-Fossés
Disponible à l'achatPrix du logement
455 000 €
T.T.CMon estimation
Calculez votre capacité d'emprunt pour une estimation personnalisée.
Estimatif mensuel moyen sur 10 ans
Cash-flow mensuel
--
Estimatif mensuel moyen sur 10 ans
Livraison
1er trimestre 2028
Parcours d'achat
Étape 1
Comparez les lots, les plans et les prestations pour identifier le bien qui vous correspond.
Étape 2
Remplissez votre demande d'achat en ligne, puis validez les informations et documents demandés.
Étape 3
Finalisez votre plan de financement, puis validez les pièces demandées pour sécuriser l'opération.
Étape 4
Suivez les dernières formalités avec votre conseiller jusqu'à la signature définitive et la livraison.
Demande d'achat 100% en ligne
Renseignez vos informations et déposez vos pièces justificatives directement depuis votre espace sécurisé.
Informations importantes
Dépôt
1 500 EUR
Versé au notaire 10 jours après signature
Prestations
À la carte
Travaux et parking chiffrés selon lot
Garanties
VEFA + GFA
Cadre légal sécurisé
Frais notaire
2-3%
vs 7-8% dans l'ancien
Afin de valider votre achat, vous devrez verser un dépôt de garantie par virement auprès du notaire, 10 jours après la signature de votre contrat de réservation. Le dépôt affiché (1 500 EUR) correspond à une moyenne indicative et peut varier selon le promoteur.
L'activité de promotion immobilière est très encadrée. Pour la vente de logements neufs, c'est le régime de VEFA qui encadre l'opération.
Le montant dépend du lot, du promoteur et des choix retenus. Les prix fixes ci-dessous concernent uniquement les services financiers.
Liste non exhaustive, tarifs HT soumis à modification.
Acheter dans le neuf vous permet de réaliser une économie significative sur les frais de notaire.
Le promoteur de cette résidence est couvert par une Garantie Financière d'Achèvement (GFA). Cette garantie, réglementée par la loi, atteste de sa capacité à mener à bien la construction du projet.
Pour valider votre achat, le promoteur vous demandera :