Balcon
ExtérieurRéf. 1 • 6.3 m²



Fiche lot
95240 Cormeilles-en-Parisis • Val-d'Oise
Type
Appartement
Typologie
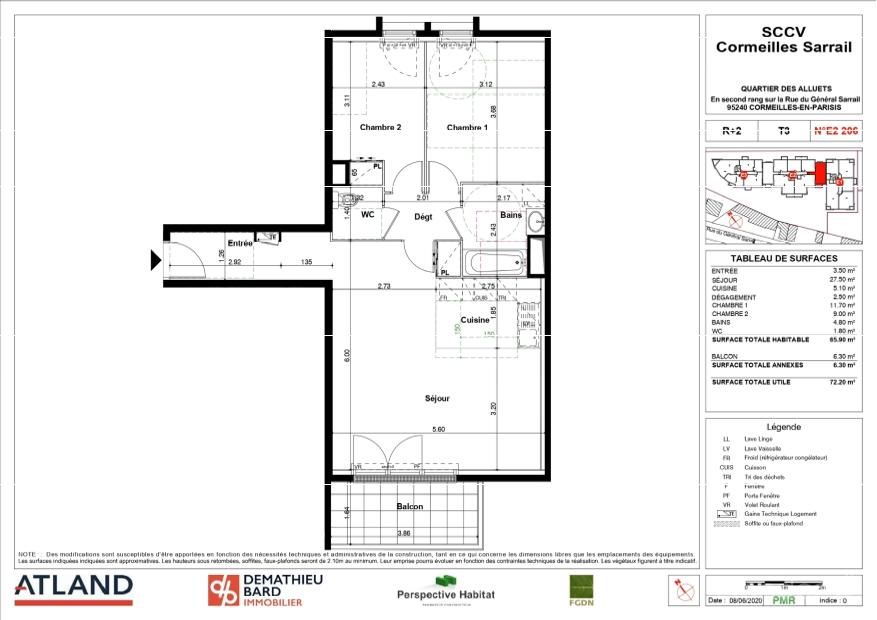
2 chambres /T3
Surface
66 m²
Niveau
2ème étage
Référence
E2206
Réf. 1 • 6.3 m²
Budget du lot
Prix total affiché pour ce lot et variantes disponibles selon le montage.
350 520 €
Composition du prix
Les repères utiles pour situer la résidence.
Adresse
12 à 14 voie Privée du colonel Arnaud Beltrame
Ville
95240 Cormeilles-en-Parisis
Val-d'Oise • Île-de-France
Livraison prévue
À confirmer
Classe énergie
Promoteur
COFFIM
À propos du programme
Dans une résidence livrée en 2024, d’architecture contemporaine, au cœur du quartier calme et pratique de l'Alsace-Lorraine, à proximité immédiate de la gare SNCF et à seulement quelques pas des écoles, des commerces de bouche et des rives de Seine. 16 logements déclinés du studio au 3 pièces, bénéficiant de
prestations soignées et de de qualité et dont la plupart profitent d'espaces extérieurs, et d’un parking en sous-sol (Prix parking en sus : entre 14 000€ et 16 000€ ).
Un investisseur institutionnel (Société) nous a confié un mandat simple pour vendre des lots en « revente » déjà livrés et qui pour certains ont déjà été occupés.
Ils sont tous vacants, et sont « fiscalement neufs » (dans les 5 ans de la livraison) donc soumis à des frais de notaires réduits.
Nous attendons confirmation de la possibilité du PTZ pour les lots jamais habités. En voici la liste : E1 101, E1 202, E1 403, E2 002, E2 003, E2 004, E2 104, , E2 105, E2 206, E2 303, E2 304, E2 305, E2 402.
Les appartements sont en revente dans les 5 ans, donc frais de notaire réduits.
Documents utiles
Les pièces les plus utiles pour comprendre le programme.
Ce que propose la résidence
Équipements et services communs
Parking en sous-sol
Isolation thermique
Isolation acoustique
Isolation phonique
Mon estimation
Calculez votre capacité d'emprunt pour une estimation personnalisée.
Estimatif mensuel moyen sur 10 ans
Cash-flow mensuel
--
Estimatif mensuel moyen sur 10 ans
A retenir
95240 Cormeilles-en-Parisis
Disponible à l'achatPrix du logement
350 520 €
T.T.CMon estimation
Calculez votre capacité d'emprunt pour une estimation personnalisée.
Estimatif mensuel moyen sur 10 ans
Cash-flow mensuel
--
Estimatif mensuel moyen sur 10 ans
Livraison
À confirmer
Parcours d'achat
Étape 1
Comparez les lots, les plans et les prestations pour identifier le bien qui vous correspond.
Étape 2
Remplissez votre demande d'achat en ligne, puis validez les informations et documents demandés.
Étape 3
Finalisez votre plan de financement, puis validez les pièces demandées pour sécuriser l'opération.
Étape 4
Suivez les dernières formalités avec votre conseiller jusqu'à la signature définitive et la livraison.
Demande d'achat 100% en ligne
Renseignez vos informations et déposez vos pièces justificatives directement depuis votre espace sécurisé.
Informations importantes
Dépôt
1 500 EUR
Versé au notaire 10 jours après signature
Prestations
À la carte
Travaux et parking chiffrés selon lot
Garanties
VEFA + GFA
Cadre légal sécurisé
Frais notaire
2-3%
vs 7-8% dans l'ancien
Afin de valider votre achat, vous devrez verser un dépôt de garantie par virement auprès du notaire, 10 jours après la signature de votre contrat de réservation. Le dépôt affiché (1 500 EUR) correspond à une moyenne indicative et peut varier selon le promoteur.
L'activité de promotion immobilière est très encadrée. Pour la vente de logements neufs, c'est le régime de VEFA qui encadre l'opération.
Le montant dépend du lot, du promoteur et des choix retenus. Les prix fixes ci-dessous concernent uniquement les services financiers.
Liste non exhaustive, tarifs HT soumis à modification.
Acheter dans le neuf vous permet de réaliser une économie significative sur les frais de notaire.
Le promoteur de cette résidence est couvert par une Garantie Financière d'Achèvement (GFA). Cette garantie, réglementée par la loi, atteste de sa capacité à mener à bien la construction du projet.
Pour valider votre achat, le promoteur vous demandera :