Étape 1
Choisir et comparer
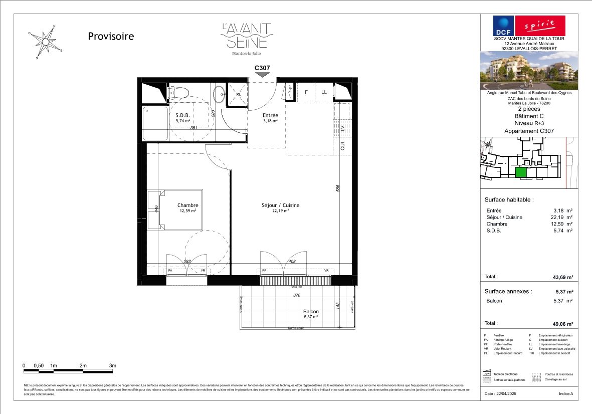
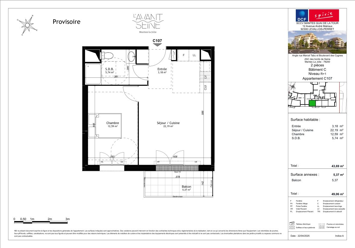
Comparez les lots, les plans et les prestations pour identifier le bien qui vous correspond.



Navigation du programme
Résidence
Toutes les informations clés du programme, ses documents utiles et les prestations de la résidence.
Les repères utiles pour situer la résidence.
Adresse
Boulevard des cygnes
Ville
78200 Mantes-la-Jolie
Yvelines • Île-de-France
Livraison prévue
3ème trimestre 2028
Actabilité
Le programme est actable
Classe énergie
Promoteur
SPIRIT
À propos du programme
Une adresse d'exception face à la Seine ! Une résidence raffinée située boulevard des Cygnes, offrant une vue imprenable sur la Seine. Profitez d'un cadre de vie paisible et lumineux.
Un panorama unique, un quotidien apaisé. Une architecture élégante sublimée par la Seine et ses berges aménagées. Une résidence à 15 minutes à pied du centre-ville et de la mairie.
Des appartements conçus pour votre confort, du studio au 5 pièces, avec balcon, loggia ou terrasse pour prolonger chaque espace de vie. Des aménagements intérieurs variés pour répondre aux besoins de tous.
Un investissement rare face à la Seine ! Une opportunité exclusive dans un cadre naturel et urbain harmonieux. Offrez-vous un cadre de vie unique où la sérénité de la Seine rencontre la proximité des commodités.
Documents utiles
Les pièces les plus utiles pour comprendre le programme.
Ce que propose la résidence
Équipements et services communs
Isolation phonique
Vidéophone
Isolation acoustique
Isolation thermique
Parking intérieur de résidence
Ses points forts
Ce qui rend ce programme unique
Fibre optique
RE 2020
Ascenseur
Quartier
Carte, points d'intérêt et aperçu de la ville pour situer le programme dans son environnement.
Les points de repère utiles autour du programme.
Transports :
7 min à vélo de la gare
Commerces :
5 min à pied
Écoles :
4 min à pied
Universités :
6 min à pied
Découvrez d'autres programmes susceptibles de vous intéresser.
Parcours d'achat
Étape 1
Comparez les lots, les plans et les prestations pour identifier le bien qui vous correspond.
Étape 2
Remplissez votre demande d'achat en ligne, puis validez les informations et documents demandés.
Étape 3
Finalisez votre plan de financement, puis validez les pièces demandées pour sécuriser l'opération.
Étape 4
Suivez les dernières formalités avec votre conseiller jusqu'à la signature définitive et la livraison.
Demande d'achat 100% en ligne
Renseignez vos informations et déposez vos pièces justificatives directement depuis votre espace sécurisé.
Informations importantes
Dépôt
1 500 EUR
Versé au notaire 10 jours après signature
Prestations
À la carte
Travaux et parking chiffrés selon lot
Garanties
VEFA + GFA
Cadre légal sécurisé
Frais notaire
2-3%
vs 7-8% dans l'ancien
Afin de valider votre achat, vous devrez verser un dépôt de garantie par virement auprès du notaire, 10 jours après la signature de votre contrat de réservation. Le dépôt affiché (1 500 EUR) correspond à une moyenne indicative et peut varier selon le promoteur.
L'activité de promotion immobilière est très encadrée. Pour la vente de logements neufs, c'est le régime de VEFA qui encadre l'opération.
Le montant dépend du lot, du promoteur et des choix retenus. Les prix fixes ci-dessous concernent uniquement les services financiers.
Liste non exhaustive, tarifs HT soumis à modification.
Acheter dans le neuf vous permet de réaliser une économie significative sur les frais de notaire.
Le promoteur de cette résidence est couvert par une Garantie Financière d'Achèvement (GFA). Cette garantie, réglementée par la loi, atteste de sa capacité à mener à bien la construction du projet.
Pour valider votre achat, le promoteur vous demandera :