Étape 1
Choisir et comparer
Comparez les lots, les plans et les prestations pour identifier le bien qui vous correspond.





Navigation du programme
Résidence
Toutes les informations clés du programme, ses documents utiles et les prestations de la résidence.
Les repères utiles pour situer la résidence.
Adresse
636 Route du Croissant
Ville
50380 Saint-Pair-sur-Mer
Manche • Normandie
Livraison prévue
3ème trimestre 2027
Classe énergie
Promoteur
Kaufman & Broad
Offres en cours
Les avantages commerciaux actuellement associés au programme.
À propos du programme
Sur la côte Normande, à Saint-Pair-sur-Mer, découvrez un domaine intimiste composé de 31 maisons neuves qui se déclinent en 6 modèles de 2 à 4 chambres livrées clés en main.
Les façades, parées de colombages aux teintes douces - vert d'eau, taupe, gris bleuté - s'inspirent élégamment du patrimoine régional.
Jumelée par deux, chaque maison s’ouvre sur un jardin privatif et accueille, selon les modèles, un garage indépendant ou un abri de jardin.
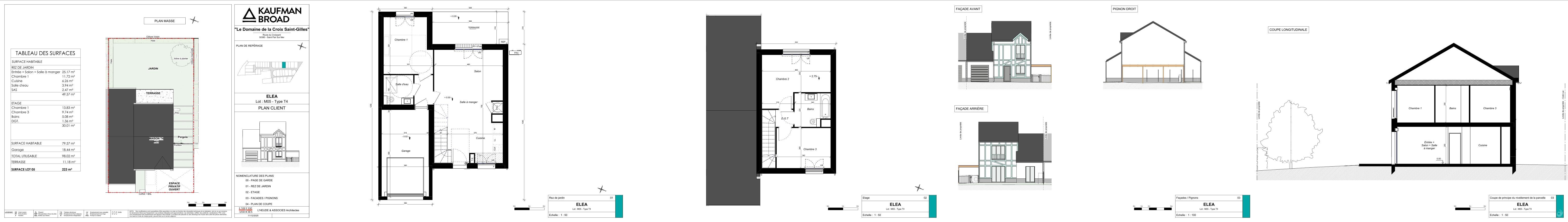
Une maison individuelle d’environ 130 m² habitables composée de 4 chambres séduira les amateurs de grands espaces.
Leur conception privilégie les volumes généreux et la lumière naturelle, pour un confort optimal en toutes saisons.
Les équipements contemporains et les prestations de standing garantissent élégance et bien-être.
Documents utiles
Les pièces les plus utiles pour comprendre le programme.
Ce que propose la résidence
Équipements et services communs
Isolation thermique
Isolation acoustique
Isolation phonique
Ses points forts
Ce qui rend ce programme unique
Fibre optique
RE 2020
Plan 3D
Une lecture plus concrète de l'implantation et de l'organisation des logements.
Quartier
Carte, points d'intérêt et aperçu de la ville pour situer le programme dans son environnement.
Les points de repère utiles autour du programme.
Universités :
2h44 en transports
Transports :
10 min en voiture de la gare
Commerces :
2 min en vélo
Écoles :
4 min en vélo
Découvrez d'autres programmes susceptibles de vous intéresser.
Parcours d'achat
Étape 1
Comparez les lots, les plans et les prestations pour identifier le bien qui vous correspond.
Étape 2
Remplissez votre demande d'achat en ligne, puis validez les informations et documents demandés.
Étape 3
Finalisez votre plan de financement, puis validez les pièces demandées pour sécuriser l'opération.
Étape 4
Suivez les dernières formalités avec votre conseiller jusqu'à la signature définitive et la livraison.
Demande d'achat 100% en ligne
Renseignez vos informations et déposez vos pièces justificatives directement depuis votre espace sécurisé.
Informations importantes
Dépôt
1 500 EUR
Versé au notaire 10 jours après signature
Prestations
À la carte
Travaux et parking chiffrés selon lot
Garanties
VEFA + GFA
Cadre légal sécurisé
Frais notaire
2-3%
vs 7-8% dans l'ancien
Afin de valider votre achat, vous devrez verser un dépôt de garantie par virement auprès du notaire, 10 jours après la signature de votre contrat de réservation. Le dépôt affiché (1 500 EUR) correspond à une moyenne indicative et peut varier selon le promoteur.
L'activité de promotion immobilière est très encadrée. Pour la vente de logements neufs, c'est le régime de VEFA qui encadre l'opération.
Le montant dépend du lot, du promoteur et des choix retenus. Les prix fixes ci-dessous concernent uniquement les services financiers.
Liste non exhaustive, tarifs HT soumis à modification.
Acheter dans le neuf vous permet de réaliser une économie significative sur les frais de notaire.
Le promoteur de cette résidence est couvert par une Garantie Financière d'Achèvement (GFA). Cette garantie, réglementée par la loi, atteste de sa capacité à mener à bien la construction du projet.
Pour valider votre achat, le promoteur vous demandera :