Étape 1
Choisir et comparer
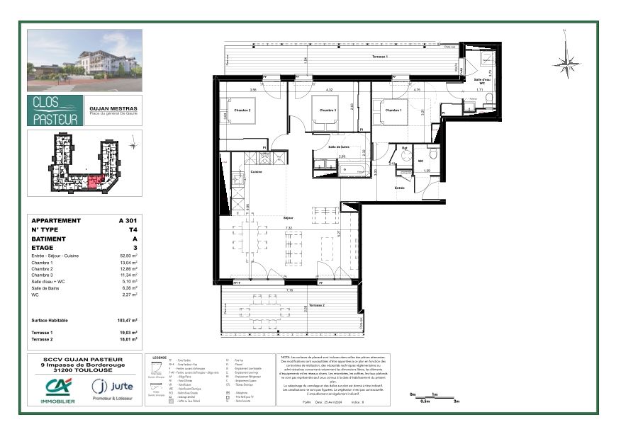
Comparez les lots, les plans et les prestations pour identifier le bien qui vous correspond.

Navigation du programme
Résidence
Toutes les informations clés du programme, ses documents utiles et les prestations de la résidence.
Les repères utiles pour situer la résidence.
Adresse
Place du Général de Gaulle
Ville
33470 Gujan-Mestras
Gironde • Nouvelle-Aquitaine
Livraison prévue
4ème trimestre 2026
Classe énergie
Promoteur
CREDIT AGRICOLE
À propos du programme
HABITER OU INVESTIR AU COEUR DU BASSIN D'ARCACHON GUJAN-MESTRAS S'OFFRE À VOUS
Réputée pour ses 7 ports et l’excellence de ses produits, Gujan-Mestras cultive un art de vivre authentique et préservé.
Ici, il fait bon se ressourcer sur la plage de sable fin bordée de tamaris ou le long de son littoral paisible entre Bassin et prés salés.
En vélo ou à pied, on aime flâner le long des ports pittoresques, s’accorder le temps de déguster les fruits de mer des jolies cabanes ostréicoles, et se délecter en toutes saisons d’atmosphères uniques entre mer et forêt...
UNE ADRESSE IDÉALE AU CENTRE DE GUJAN-MESTRAS
Située sur la place de la mairie et de son parc, la résidence Clos Pasteur rayonne.
Les habitants apprécieront la simplicité d’une vie au coeur du centre-ville, entre convivialité et quiétude.
Au quotidien nul besoin de voiture.
Commerces et services se situent à distance piétonne ou à quelques minutes de vélo.
Facile d’accès et proche de toutes vos envies, cette adresse participe à une qualité de vie qui vous invite à la détente en famille ou entre amis.
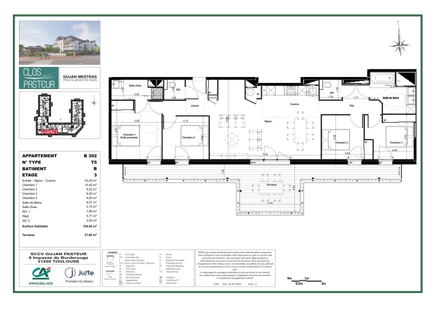
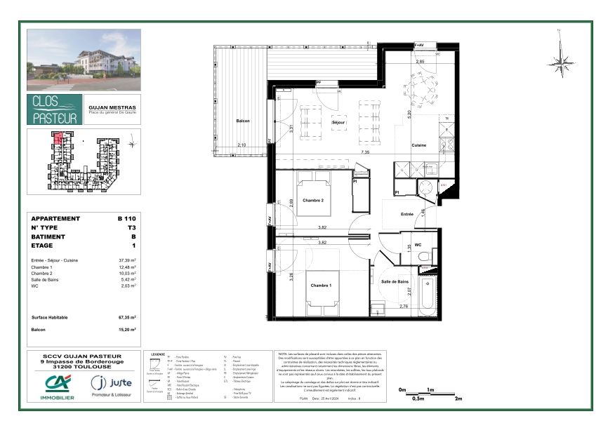
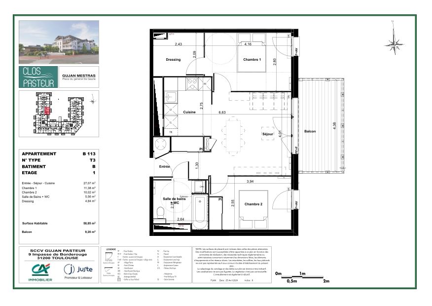
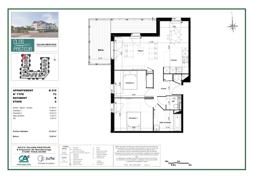
APPARTEMENTS NEUFS DU 2 AU 4 PIECES
Des appartements placés sous le signe du bien-être
Éloge du plaisir de vivre en extérieur, les généreux balcons animent les volumes tels de larges galeries en seconde peau.
Ornées de colonnades et d’arcs cintrés, ces extérieurs évoquent avec subtilité les somptueuses demeures de La Nouvelle-Orléans.
Le confort dans les détails
Crédit Agricole Immobilier et Juste Promotion ont conçu ces appartements pour vous garantir un bien-être durable.
Les aménagements fluides et les volumes généreux des pièces correspondent aux attentes les plus exigeantes en matière de confort.
Les orientations font la part belle à la clarté naturelle pour composer des intérieurs lumineux et chaleureux.
Les prestations scrupuleusement sélectionnées conjuguent qualité et élégance pour s’accorder en harmonie à votre décoration personnelle.
Documents utiles
Les pièces les plus utiles pour comprendre le programme.
Quartier
Carte, points d'intérêt et aperçu de la ville pour situer le programme dans son environnement.
Découvrez d'autres programmes susceptibles de vous intéresser.
Parcours d'achat
Étape 1
Comparez les lots, les plans et les prestations pour identifier le bien qui vous correspond.
Étape 2
Remplissez votre demande d'achat en ligne, puis validez les informations et documents demandés.
Étape 3
Finalisez votre plan de financement, puis validez les pièces demandées pour sécuriser l'opération.
Étape 4
Suivez les dernières formalités avec votre conseiller jusqu'à la signature définitive et la livraison.
Demande d'achat 100% en ligne
Renseignez vos informations et déposez vos pièces justificatives directement depuis votre espace sécurisé.
Informations importantes
Dépôt
1 500 EUR
Versé au notaire 10 jours après signature
Prestations
À la carte
Travaux et parking chiffrés selon lot
Garanties
VEFA + GFA
Cadre légal sécurisé
Frais notaire
2-3%
vs 7-8% dans l'ancien
Afin de valider votre achat, vous devrez verser un dépôt de garantie par virement auprès du notaire, 10 jours après la signature de votre contrat de réservation. Le dépôt affiché (1 500 EUR) correspond à une moyenne indicative et peut varier selon le promoteur.
L'activité de promotion immobilière est très encadrée. Pour la vente de logements neufs, c'est le régime de VEFA qui encadre l'opération.
Le montant dépend du lot, du promoteur et des choix retenus. Les prix fixes ci-dessous concernent uniquement les services financiers.
Liste non exhaustive, tarifs HT soumis à modification.
Acheter dans le neuf vous permet de réaliser une économie significative sur les frais de notaire.
Le promoteur de cette résidence est couvert par une Garantie Financière d'Achèvement (GFA). Cette garantie, réglementée par la loi, atteste de sa capacité à mener à bien la construction du projet.
Pour valider votre achat, le promoteur vous demandera :