Handee

Appartement T3 neuf à Sanguinet — RESIDENCE JAZZ EN LAC

591, AVENUE DES LANDES 40460 Sanguinet EUROPEAN_HOMES
Plan
Plan
Image 2
Image 3
2 photosPlan disponible

Fiche lot

Caractéristiques du logement

40460 Sanguinet • Landes

Offre commerciale : OFFRE EXCEPTIONNELLE : FRAIS DE NOTAIRE OFFERTS*
Programme RESIDENCE JAZZ EN LAC
Livraison 4ème trimestre 2027

Type

Appartement

Typologie

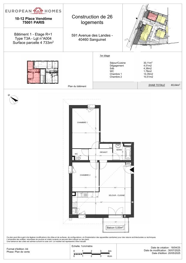
2 chambres /T3

Surface

66 m²

Niveau

1er étage

Référence

A004

Annexes et extérieurs

3 élément(s)
Parking Simple
Stationnement

Réf. P003

Parking Simple
Stationnement

Réf. P004

Balcon
Extérieur

Réf. 15.05 m²

Solutions d'investissement disponibles

Résidence Principale Meublé Location Nue

Budget du lot

Prix total affiché pour ce lot et variantes disponibles selon le montage.

230 000 €

Composition du prix

Appartement 230 000 €
Total affiché 230 000 €

Le programme

Les repères utiles pour situer la résidence.

Offre commerciale : OFFRE EXCEPTIONNELLE : FRAIS DE NOTAIRE OFFERTS*
Voir le programme

Adresse

591, AVENUE DES LANDES

Ville

40460 Sanguinet

Landes • Nouvelle-Aquitaine

Livraison prévue

4ème trimestre 2027

Classe énergie

Promoteur

EUROPEAN_HOMES

Offres en cours

Les avantages commerciaux actuellement associés au programme.

OFFRE EXCEPTIONNELLE : FRAIS DE NOTAIRE OFFERTS*

À propos du programme

À Sanguinet, à deux pas du lac, découvrez le confort du neuf en appartement ou villa-jardin.

Sanguinet, un art de vivre entre lac et océan.

Nichée au cœur des Landes, à la lisière du bassin d’Arcachon et à deux pas des plages océanes, des forêts de pins et de la dune du Pilat, Sanguinet séduit par son cadre de vie paisible et naturel.

Située à moins d’1h de Bordeaux, cette charmante commune offre un équilibre idéal entre animation urbaine et quiétude balnéaire.

Son joyau : son lac, l’un des plus grands lacs naturels de France, dont les eaux calmes invitent à la baignade, à la voile ou aux balades toute l’année.

Chaque été, Sanguinet vibre au rythme du Festival Jazz in Sanguinet, un événement culturel majeur qui attire des artistes et anime la ville d’une ambiance chaleureuse et conviviale au bord du lac.

La commune propose toutes les commodités essentielles au quotidien : supermarchés, commerces de proximité, marché hebdomadaire, médiathèque, pôle santé, associations culturelles et installations sportives.

Côté famille, Sanguinet est particulièrement bien équipée : une crèche multi-accueil, une école maternelle et une école élémentaire publiques flambants neuves dès la rentrée 2026, ainsi qu’un collège récent, offrent un parcours scolaire complet.

Documents utiles

Les pièces les plus utiles pour comprendre le programme.

Mon estimation

Calculez votre capacité d'emprunt pour une estimation personnalisée.

Estimatif mensuel moyen sur 10 ans

Cash-flow mensuel

--

Loyer estimé --
Mensualité prêt --
Taxe foncière --
Charges --
Impôt sur les loyers --

Estimatif mensuel moyen sur 10 ans

Chargement de la carte...

A retenir

Appartement A004

40460 Sanguinet

Disponible à l'achat
OFFRE EXCEPTIONNELLE : FRAIS DE NOTAIRE OFFERTS*

Prix du logement

230 000 €

T.T.C
t.v.a 20%

Mon estimation

Calculez votre capacité d'emprunt pour une estimation personnalisée.

Estimatif mensuel moyen sur 10 ans

Cash-flow mensuel

--

Loyer estimé --
Mensualité prêt --
Taxe foncière --
Charges --
Impôt sur les loyers --

Estimatif mensuel moyen sur 10 ans

Trouver un conseiller

Livraison

EUROPEAN_HOMES

4ème trimestre 2027

Parcours d'achat

Acheter votre logement en 4 étapes

  1. Étape 1

    Choisir et comparer

    1

    Comparez les lots, les plans et les prestations pour identifier le bien qui vous correspond.

  2. Étape 2

    Réserver le lot

    2

    Remplissez votre demande d'achat en ligne, puis validez les informations et documents demandés.

  3. Étape 3

    Financer et valider

    3

    Finalisez votre plan de financement, puis validez les pièces demandées pour sécuriser l'opération.

  4. Étape 4

    Signer et préparer la remise des clés

    4

    Suivez les dernières formalités avec votre conseiller jusqu'à la signature définitive et la livraison.

Demande d'achat 100% en ligne

Renseignez vos informations et déposez vos pièces justificatives directement depuis votre espace sécurisé.

Informations importantes

Ce qu'il faut savoir avant d'acheter

Dépôt

1 500 EUR

Versé au notaire 10 jours après signature

Prestations

À la carte

Travaux et parking chiffrés selon lot

Garanties

VEFA + GFA

Cadre légal sécurisé

Frais notaire

2-3%

vs 7-8% dans l'ancien

Frais et dépôt de garantie

Afin de valider votre achat, vous devrez verser un dépôt de garantie par virement auprès du notaire, 10 jours après la signature de votre contrat de réservation. Le dépôt affiché (1 500 EUR) correspond à une moyenne indicative et peut varier selon le promoteur.

Dépôt de garantie : 1 500 EUR

Cadre légal et étapes (VEFA)

L'activité de promotion immobilière est très encadrée. Pour la vente de logements neufs, c'est le régime de VEFA qui encadre l'opération.

Recherche du terrainMontage de l'opérationMarché travauxSuivi de l'opérationCommercialisationConstructionLivraisonSuivi des garanties

Prestations complémentaires (optionnelles)

Le montant dépend du lot, du promoteur et des choix retenus. Les prix fixes ci-dessous concernent uniquement les services financiers.

  • Travaux modificatifs du logementSur devis
  • Place de parking supplémentaireSelon le lot
  • Courtier en financement2 500 EUR
  • Négociation assurance crédit99 EUR
  • Gestion locativeSur devis

Liste non exhaustive, tarifs HT soumis à modification.

Frais de notaire réduits

2-3%dans le neufvs7-8%ancien

Acheter dans le neuf vous permet de réaliser une économie significative sur les frais de notaire.

Garantie financière (GFA)

Le promoteur de cette résidence est couvert par une Garantie Financière d'Achèvement (GFA). Cette garantie, réglementée par la loi, atteste de sa capacité à mener à bien la construction du projet.

Sécurité Financière : La GFA garantit que le financement nécessaire à l'achèvement du projet est en place.
Livraison Conforme : Vous pouvez avoir confiance dans le fait que la résidence sera livrée selon les normes convenues.
Sérénité pour les Acheteurs : En tant qu'acquéreur, cette garantie vous assure une transition en douceur vers votre nouveau logement.

Documents requis pour l'achat

Pour valider votre achat, le promoteur vous demandera :

  • 1 Pièce d'identité officielle avec photo
  • 2 Avis d'imposition
  • 3 Justificatif de domicile
  • 4 Dépôt de garantie par virement bancaire