Handee

LE CLOS DES LILAS - programme neuf à Pau (64000, Nouvelle-Aquitaine)

5 avenue des lilas64000 PauURBAT

Aucune image disponible

Navigation du programme

LE CLOS DES LILAS

Résidence

Le programme en détail

Toutes les informations clés du programme, ses documents utiles et les prestations de la résidence.

Le programme

Les repères utiles pour situer la résidence.

Adresse

5 avenue des lilas

Ville

64000 Pau

Pyrénées-Atlantiques • Nouvelle-Aquitaine

Livraison prévue

4ème trimestre 2027

Actabilité

Le programme sera actable à partir du 30 septembre 2026

Classe énergie

Promoteur

URBAT

À propos du programme

À Pau, dans le quartier recherché de Peyroulet, Urbat dévoile une adresse pleine de charme et d’histoire : une résidence intimiste bâtie autour d’un édifice du XIXe siècle conservé et magnifié.

Située à proximité immédiate du centre-ville, du château d’Henri IV et du parc Beaumont, elle offre une qualité de vie exceptionnelle, entre patrimoine et modernité.

La résidence accueille 39 appartements du 2 au 4 pièces.

Ce projet en réhabilitation offre des logements à l’architecture singulière mêlant pierre, brique et élévations contemporaines, avec extérieurs généreux : balcons, terrasses ou jardins privatifs.

Les appartements sont pensés pour le confort, la lumière naturelle et la personnalisation avec options multiplans, bureaux intégrés et espaces optimisés.

L’environnement verdoyant est au cœur du projet : arbres de haute tige conservés, revégétalisation des abords, parkings engazonnés et ombragés, local à vélo en sous-sol.

Un extérieur conçu comme une vraie pièce à vivre, avec équipements (prises, éclairage, sol adapté) pour profiter pleinement du plein air.

Idéalement desservie (bus, gare TGV, A64, aéroport), proche des écoles et du campus universitaire, la résidence combine caractère, praticité et douceur de vivre.

Une opportunité rare pour habiter ou investir dans une ville dynamique, culturelle et tournée vers l’avenir.

Programme Immobilier en loi DENORMANDIE

Plan 3D

Explorer le volume du programme

Une lecture plus concrète de l'implantation et de l'organisation des logements.

Quartier

Comprendre l'environnement du programme

Carte, points d'intérêt et aperçu de la ville pour situer le programme dans son environnement.

Chargement de la carte...

27 logements trouvés

Annexes
Chambres
Étage
Budget
Surface
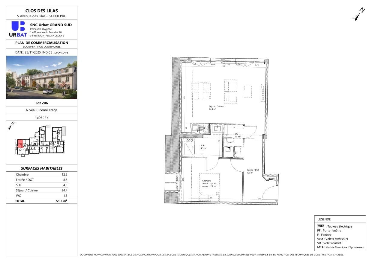
program image
Disponible

174 500 €

Mensualité totale

--

Mensualité prêt --
Taxe foncière --
Charges --

Estimatif mensuel moyen sur 10 ans

Livraison

URBAT

4ème trimestre 2027

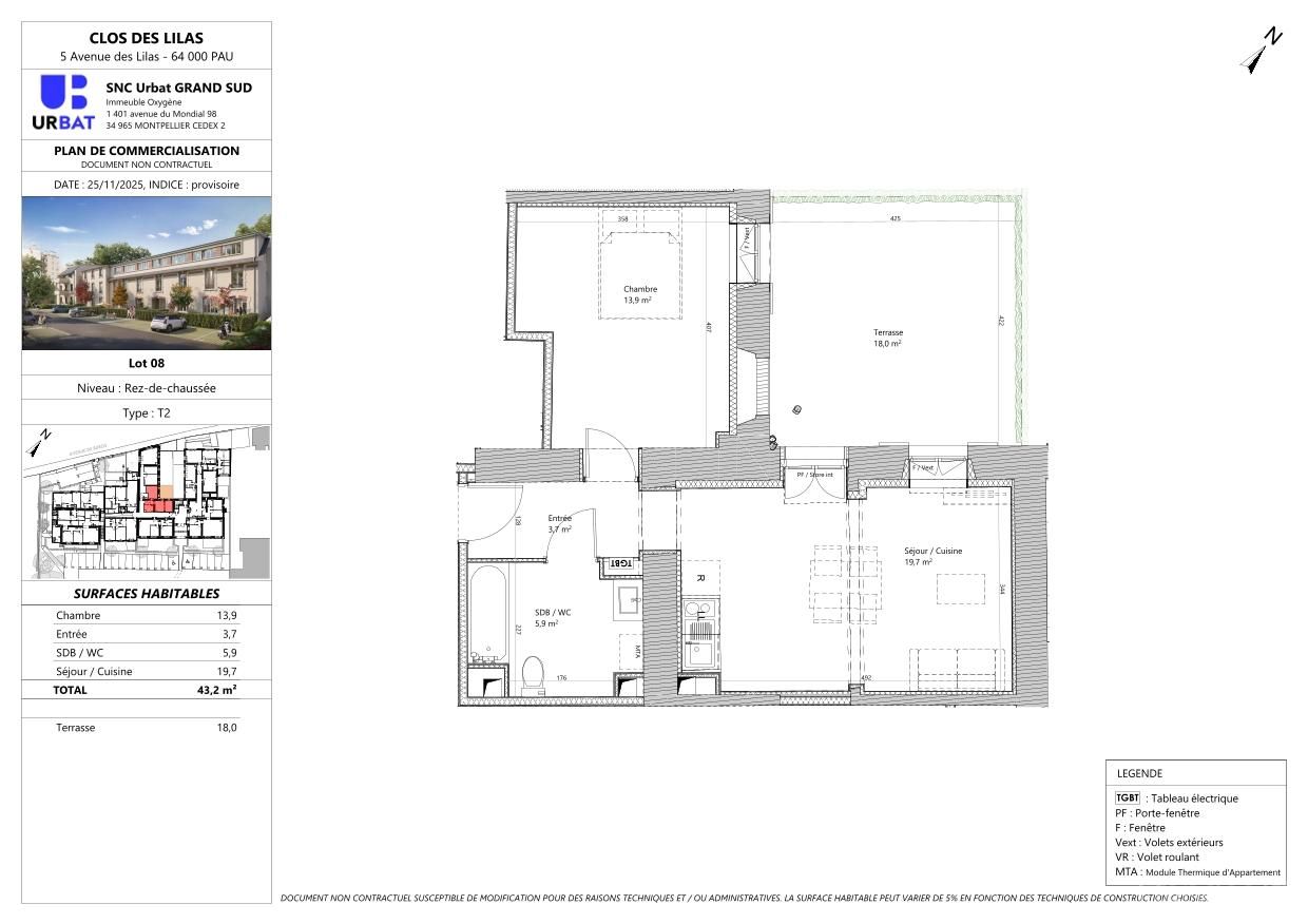
program image
Disponible

177 000 €

Mensualité totale

--

Mensualité prêt --
Taxe foncière --
Charges --

Estimatif mensuel moyen sur 10 ans

Livraison

URBAT

4ème trimestre 2027

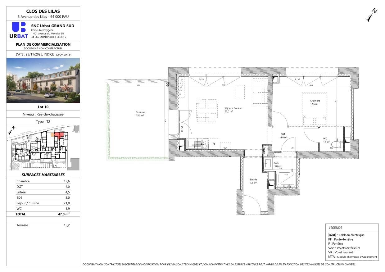
program image
Disponible

177 000 €

Mensualité totale

--

Mensualité prêt --
Taxe foncière --
Charges --

Estimatif mensuel moyen sur 10 ans

Livraison

URBAT

4ème trimestre 2027

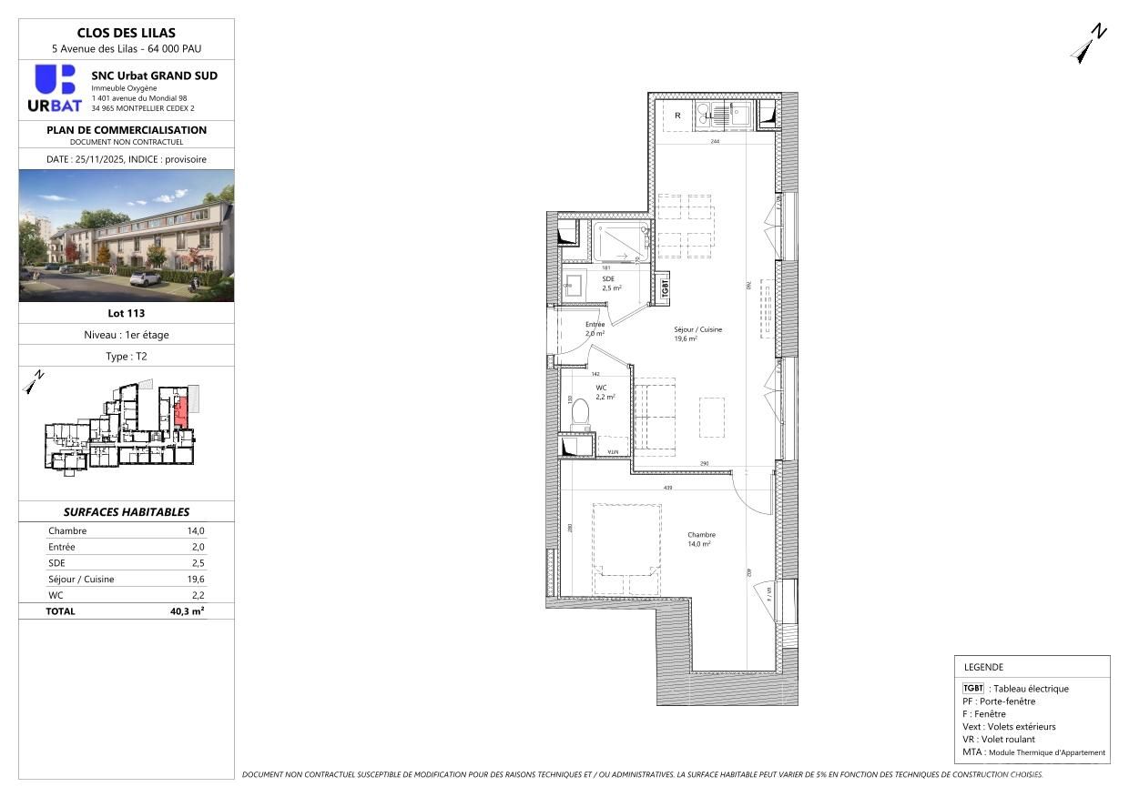
program image
Disponible

177 500 €

Mensualité totale

--

Mensualité prêt --
Taxe foncière --
Charges --

Estimatif mensuel moyen sur 10 ans

Livraison

URBAT

4ème trimestre 2027

program image
Disponible

179 000 €

Mensualité totale

--

Mensualité prêt --
Taxe foncière --
Charges --

Estimatif mensuel moyen sur 10 ans

Livraison

URBAT

4ème trimestre 2027

program image
Disponible

187 000 €

Mensualité totale

--

Mensualité prêt --
Taxe foncière --
Charges --

Estimatif mensuel moyen sur 10 ans

Livraison

URBAT

4ème trimestre 2027

program image
Disponible

189 000 €

Mensualité totale

--

Mensualité prêt --
Taxe foncière --
Charges --

Estimatif mensuel moyen sur 10 ans

Livraison

URBAT

4ème trimestre 2027

program image
Disponible

190 000 €

Mensualité totale

--

Mensualité prêt --
Taxe foncière --
Charges --

Estimatif mensuel moyen sur 10 ans

Livraison

URBAT

4ème trimestre 2027

program image
Disponible

194 000 €

Mensualité totale

--

Mensualité prêt --
Taxe foncière --
Charges --

Estimatif mensuel moyen sur 10 ans

Livraison

URBAT

4ème trimestre 2027

program image
Disponible

195 000 €

Mensualité totale

--

Mensualité prêt --
Taxe foncière --
Charges --

Estimatif mensuel moyen sur 10 ans

Livraison

URBAT

4ème trimestre 2027

program image
Disponible

197 000 €

Mensualité totale

--

Mensualité prêt --
Taxe foncière --
Charges --

Estimatif mensuel moyen sur 10 ans

Livraison

URBAT

4ème trimestre 2027

program image
Disponible

203 000 €

Mensualité totale

--

Mensualité prêt --
Taxe foncière --
Charges --

Estimatif mensuel moyen sur 10 ans

Livraison

URBAT

4ème trimestre 2027

program image
Disponible

207 000 €

Mensualité totale

--

Mensualité prêt --
Taxe foncière --
Charges --

Estimatif mensuel moyen sur 10 ans

Livraison

URBAT

4ème trimestre 2027

program image
Disponible

230 000 €

Mensualité totale

--

Mensualité prêt --
Taxe foncière --
Charges --

Estimatif mensuel moyen sur 10 ans

Livraison

URBAT

4ème trimestre 2027

program image
Disponible

239 000 €

Mensualité totale

--

Mensualité prêt --
Taxe foncière --
Charges --

Estimatif mensuel moyen sur 10 ans

Livraison

URBAT

4ème trimestre 2027

Suggestions

Programmes similaires (12)

Découvrez d'autres programmes susceptibles de vous intéresser.

Slide

à partir de

158 870 €

Idron - 64

Villazéa

64320 0000

Livraison

Edouard Denis

2ème trimestre 2027

Slide

à partir de

314 500 €

Pau - 64

PASSAGE DU HEDAS

64000 5/11 RUE SAMONZET

Livraison

Histoire & Patrimoine

4ème trimestre 2028

program image

à partir de

200 800 €

Pau - 64

LES COURSIVES DU HEDAS

64000 22/24 RUE SERVIEZ

Livraison

Histoire & Patrimoine

3ème trimestre 2026

Slide

à partir de

201 000 €

Pau - 64

LES VERGERS D'IDRON

64000 3 ROUTE DE TARBES

B
Isolation phoniqueRE 2020Isolation thermiqueIsolation acoustique

Livraison

URBAT

1er trimestre 2027

Slide

à partir de

158 870 €

Idron - 64

Villazéa

64320 0000

Livraison

NEXITY

2ème trimestre 2027

Slide

à partir de

184 500 €

Pau - 64

FAIRPLAY

64000 443 Boulevard Cami Salié

C
Isolation acoustiqueIsolation phoniqueRT 2012Isolation thermique

Livraison

URBAT

3ème trimestre 2025

Slide

à partir de

275 000 €

Idron - 64

Domaine Solena

64320 0009 AV . BEAU SOLEIL

Livraison

NEXITY

4ème trimestre 2027

program image

à partir de

159 000 €

Offre commerciale

Ozoir-la-Ferrière - 77

Les Terrasses du 105

77330 105 avenue du Général de Gaulle

Livraison

Kaufman & Broad

3ème trimestre 2028

Slide

à partir de

183 000 €

Saint-Orens-de-Gameville - 31

Senioriales de Toulouse Saint-Orens

31650 2/4 Avenue de Revel

Livraison

Les Nouveaux Constructeurs

4ème trimestre 2028

program image

à partir de

149 500 €

Béziers - 34

LE PATIO DU MIDI

34500 11 Quai du port neuf

Livraison

URBAT

4ème trimestre 2028

Slide

à partir de

178 900 €

Villefranche-sur-Saône - 69

Les Loges du Parc

69400 RUE CLAUDE VIGNARD

Livraison

Les Nouveaux Constructeurs

4ème trimestre 2028

program image

à partir de

189 000 €

Beauchamp - 95

Clos Des Bleuets

95250 Avenue Georges Clémenceau

A

Livraison

EIFFAGE

1er trimestre 2029

Parcours d'achat

Acheter votre logement en 4 étapes

  1. Étape 1

    Choisir et comparer

    1

    Comparez les lots, les plans et les prestations pour identifier le bien qui vous correspond.

  2. Étape 2

    Réserver le lot

    2

    Remplissez votre demande d'achat en ligne, puis validez les informations et documents demandés.

  3. Étape 3

    Financer et valider

    3

    Finalisez votre plan de financement, puis validez les pièces demandées pour sécuriser l'opération.

  4. Étape 4

    Signer et préparer la remise des clés

    4

    Suivez les dernières formalités avec votre conseiller jusqu'à la signature définitive et la livraison.

Demande d'achat 100% en ligne

Renseignez vos informations et déposez vos pièces justificatives directement depuis votre espace sécurisé.

Informations importantes

Ce qu'il faut savoir avant d'acheter

Dépôt

1 500 EUR

Versé au notaire 10 jours après signature

Prestations

À la carte

Travaux et parking chiffrés selon lot

Garanties

VEFA + GFA

Cadre légal sécurisé

Frais notaire

2-3%

vs 7-8% dans l'ancien

Frais et dépôt de garantie

Afin de valider votre achat, vous devrez verser un dépôt de garantie par virement auprès du notaire, 10 jours après la signature de votre contrat de réservation. Le dépôt affiché (1 500 EUR) correspond à une moyenne indicative et peut varier selon le promoteur.

Dépôt de garantie : 1 500 EUR

Cadre légal et étapes (VEFA)

L'activité de promotion immobilière est très encadrée. Pour la vente de logements neufs, c'est le régime de VEFA qui encadre l'opération.

Recherche du terrainMontage de l'opérationMarché travauxSuivi de l'opérationCommercialisationConstructionLivraisonSuivi des garanties

Prestations complémentaires (optionnelles)

Le montant dépend du lot, du promoteur et des choix retenus. Les prix fixes ci-dessous concernent uniquement les services financiers.

  • Travaux modificatifs du logementSur devis
  • Place de parking supplémentaireSelon le lot
  • Courtier en financement2 500 EUR
  • Négociation assurance crédit99 EUR
  • Gestion locativeSur devis

Liste non exhaustive, tarifs HT soumis à modification.

Frais de notaire réduits

2-3%dans le neufvs7-8%ancien

Acheter dans le neuf vous permet de réaliser une économie significative sur les frais de notaire.

Garantie financière (GFA)

Le promoteur de cette résidence est couvert par une Garantie Financière d'Achèvement (GFA). Cette garantie, réglementée par la loi, atteste de sa capacité à mener à bien la construction du projet.

Sécurité Financière : La GFA garantit que le financement nécessaire à l'achèvement du projet est en place.
Livraison Conforme : Vous pouvez avoir confiance dans le fait que la résidence sera livrée selon les normes convenues.
Sérénité pour les Acheteurs : En tant qu'acquéreur, cette garantie vous assure une transition en douceur vers votre nouveau logement.

Documents requis pour l'achat

Pour valider votre achat, le promoteur vous demandera :

  • 1 Pièce d'identité officielle avec photo
  • 2 Avis d'imposition
  • 3 Justificatif de domicile
  • 4 Dépôt de garantie par virement bancaire