Sous-sol
StationnementRéf. NC

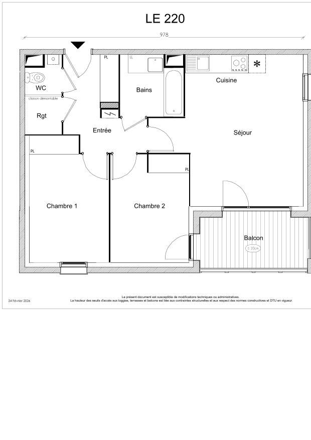
Fiche lot
31100 Toulouse • Haute-Garonne
Type
Appartement
Typologie
2 chambres /T3
Surface
61 m²
Niveau
3ème étage
Référence
23
Réf. NC
Réf. 1 • 6.81 m²
Budget du lot
Prix total affiché pour ce lot et variantes disponibles selon le montage.
279 900 €
Composition du prix
Prix selon le montage
TVA 5,5%
Sous conditions de ressources et d’éligibilité.
LLI TVA 10%
Selon le montage LLI retenu pour le lot.
Les repères utiles pour situer la résidence.
Adresse
Route de seysses
Ville
31100 Toulouse
Haute-Garonne • Occitanie
Livraison prévue
4ème trimestre 2028
Classe énergie
Promoteur
Green City
À propos du programme
Fort de son caractère résidentiel et tranquille, le quartier route de Seysses propose à ses habitants un cadre de vie agréable au sud de la ville rose.
Sa proximité avec le parc de Gironis et ses équipements (lac, parc, stades, terrains de tennis, gymnase) en fait un lieu de résidence privilégié, offrant de multiples activités pour toute la famille.
Le quartier est bien desservi par les transports en commun, avec la ligne de bus Linéo L4 qui relie les 2 lignes du métro toulousain (station Basso Cambo de la ligne A et Empalot de la ligne B), permettant de rejoindre le coeur de Toulouse en moins de 20 minutes.
Avec les autoroutes A64 et A620 à moins de 5 minutes et la rocade « Arc-en-Ciel », on accède rapidement à toutes les zones économiques de la métropole toulousaine.
Les habitants du quartier bénéficient du dynamisme du pôle scientifique et technologique Oncopole, de la zone industrielle de Thibaud, ainsi que des zones commerciales de Portet-sur-Garonne et Roques-sur-Garonne.
La résidence « Le 220 » se situe à proximité d’un espace boisé classé et du coeur commerçant où se côtoient tous les services et commerces du quotidien.
La résidence « Le 220 » se compose d’un bâtiment entouré de beaux jardins boisés, favorisant la convivialité entre les habitants.
Documents utiles
Les pièces les plus utiles pour comprendre le programme.
Mon estimation
Calculez votre capacité d'emprunt pour une estimation personnalisée.
Estimatif mensuel moyen sur 10 ans
Cash-flow mensuel
--
Estimatif mensuel moyen sur 10 ans
A retenir
31100 Toulouse
Disponible à l'achatPrix du logement
279 900 €
T.T.CMon estimation
Calculez votre capacité d'emprunt pour une estimation personnalisée.
Estimatif mensuel moyen sur 10 ans
Cash-flow mensuel
--
Estimatif mensuel moyen sur 10 ans
Livraison
4ème trimestre 2028
Parcours d'achat
Étape 1
Comparez les lots, les plans et les prestations pour identifier le bien qui vous correspond.
Étape 2
Remplissez votre demande d'achat en ligne, puis validez les informations et documents demandés.
Étape 3
Finalisez votre plan de financement, puis validez les pièces demandées pour sécuriser l'opération.
Étape 4
Suivez les dernières formalités avec votre conseiller jusqu'à la signature définitive et la livraison.
Demande d'achat 100% en ligne
Renseignez vos informations et déposez vos pièces justificatives directement depuis votre espace sécurisé.
Informations importantes
Dépôt
1 500 EUR
Versé au notaire 10 jours après signature
Prestations
À la carte
Travaux et parking chiffrés selon lot
Garanties
VEFA + GFA
Cadre légal sécurisé
Frais notaire
2-3%
vs 7-8% dans l'ancien
Afin de valider votre achat, vous devrez verser un dépôt de garantie par virement auprès du notaire, 10 jours après la signature de votre contrat de réservation. Le dépôt affiché (1 500 EUR) correspond à une moyenne indicative et peut varier selon le promoteur.
L'activité de promotion immobilière est très encadrée. Pour la vente de logements neufs, c'est le régime de VEFA qui encadre l'opération.
Le montant dépend du lot, du promoteur et des choix retenus. Les prix fixes ci-dessous concernent uniquement les services financiers.
Liste non exhaustive, tarifs HT soumis à modification.
Acheter dans le neuf vous permet de réaliser une économie significative sur les frais de notaire.
Le promoteur de cette résidence est couvert par une Garantie Financière d'Achèvement (GFA). Cette garantie, réglementée par la loi, atteste de sa capacité à mener à bien la construction du projet.
Pour valider votre achat, le promoteur vous demandera :