Étape 1
Choisir et comparer
Comparez les lots, les plans et les prestations pour identifier le bien qui vous correspond.




Navigation du programme
Résidence
Toutes les informations clés du programme, ses documents utiles et les prestations de la résidence.
Les repères utiles pour situer la résidence.
Adresse
1, ROUTE DE LENS
Ville
62223 Écurie
Pas-de-Calais • Hauts-de-France
Livraison prévue
4ème trimestre 2027
Classe énergie
Promoteur
EUROPEAN_HOMES
Offres en cours
Les avantages commerciaux actuellement associés au programme.
À propos du programme
À seulement 6 minutes d’Arras et 14 minutes de Lens par la N17, la commune d’Écurie offre un cadre de vie idéal pour les familles à la recherche de calme et de verdure, sans renoncer à la proximité du bassin d’emplois à Arras, des services et des transports.
Nichée dans un environnement préservé, Écurie permet de rejoindre la gare TGV d’Arras en 10 minutes.
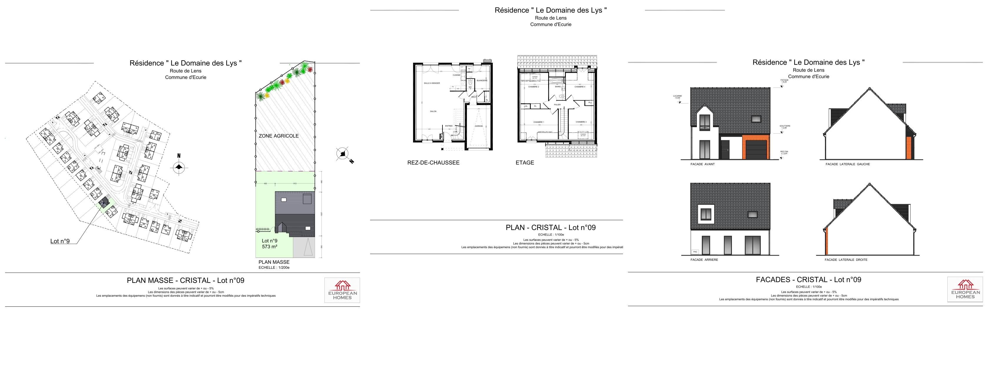
Situé route de Lens, Le Domaine des Lys propose 38 maisons familiales « prêtes‑à‑vivre » de 4 et 5 pièces.
Le programme comprend quatre modèles de maisons allant de 82 m2 à 116 m2, toutes prolongées par un jardin privatif engazonné et clôturé.
Toutes les maisons disposent d’un stationnement extérieur et la plupart d’un garage attenant.
Un espace paysager commun vient compléter l’ensemble, pour un cadre de vie serein et convivial.
Forte de son expérience de plus de 50 ans, European Homes est précurseur de la maison en village « prête à vivre ».
Pensé pour les familles, le quartier facilite le quotidien avec une crèche accessible en 8 minutes à pied et l’école primaire Haroun Tazieff à proximité.
L’école maternelle Jean‑Yves Cousteau se trouve à 4 minutes en voiture.
Les collégiens et lycéens profitent d’une bonne desserte en transports scolaires avec un arrêt de bus desservi par les lignes C30 et 11 pour rejoindre le collège Verlaine ou le lycée Robespierre.
Côté commerces, un Intermarché est à 5 minutes de voiture et le centre commercial Aushopping Arras à 10 minutes, et la mairie, la Poste, une pharmacie, un médecin, un dentiste et le centre hospitalier d’Arras sont accessibles en moins de 10 minutes.
Plan 3D
Une lecture plus concrète de l'implantation et de l'organisation des logements.
Quartier
Carte, points d'intérêt et aperçu de la ville pour situer le programme dans son environnement.
Découvrez d'autres programmes susceptibles de vous intéresser.
Parcours d'achat
Étape 1
Comparez les lots, les plans et les prestations pour identifier le bien qui vous correspond.
Étape 2
Remplissez votre demande d'achat en ligne, puis validez les informations et documents demandés.
Étape 3
Finalisez votre plan de financement, puis validez les pièces demandées pour sécuriser l'opération.
Étape 4
Suivez les dernières formalités avec votre conseiller jusqu'à la signature définitive et la livraison.
Demande d'achat 100% en ligne
Renseignez vos informations et déposez vos pièces justificatives directement depuis votre espace sécurisé.
Informations importantes
Dépôt
1 500 EUR
Versé au notaire 10 jours après signature
Prestations
À la carte
Travaux et parking chiffrés selon lot
Garanties
VEFA + GFA
Cadre légal sécurisé
Frais notaire
2-3%
vs 7-8% dans l'ancien
Afin de valider votre achat, vous devrez verser un dépôt de garantie par virement auprès du notaire, 10 jours après la signature de votre contrat de réservation. Le dépôt affiché (1 500 EUR) correspond à une moyenne indicative et peut varier selon le promoteur.
L'activité de promotion immobilière est très encadrée. Pour la vente de logements neufs, c'est le régime de VEFA qui encadre l'opération.
Le montant dépend du lot, du promoteur et des choix retenus. Les prix fixes ci-dessous concernent uniquement les services financiers.
Liste non exhaustive, tarifs HT soumis à modification.
Acheter dans le neuf vous permet de réaliser une économie significative sur les frais de notaire.
Le promoteur de cette résidence est couvert par une Garantie Financière d'Achèvement (GFA). Cette garantie, réglementée par la loi, atteste de sa capacité à mener à bien la construction du projet.
Pour valider votre achat, le promoteur vous demandera :