Handee

8 DUMOURIEZ - programme neuf à Rueil-Malmaison (92500, Île-de-France)

8 RUE DUMOURIEZ 92500 RUEIL MALMAISON92500 Rueil-MalmaisonBONAPART

Aucune image disponible

Navigation du programme

8 DUMOURIEZ

Résidence

Le programme en détail

Toutes les informations clés du programme, ses documents utiles et les prestations de la résidence.

Le programme

Les repères utiles pour situer la résidence.

Adresse

8 RUE DUMOURIEZ 92500 RUEIL MALMAISON

Ville

92500 Rueil-Malmaison

Hauts-de-Seine • Île-de-France

Livraison prévue

2ème trimestre 2028

Actabilité

Le programme sera actable à partir du 30 juin 2026

Classe énergie

Promoteur

BONAPART

À propos du programme

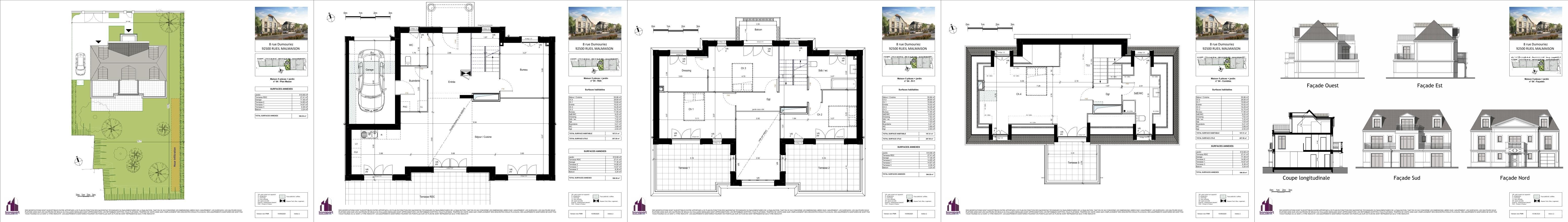
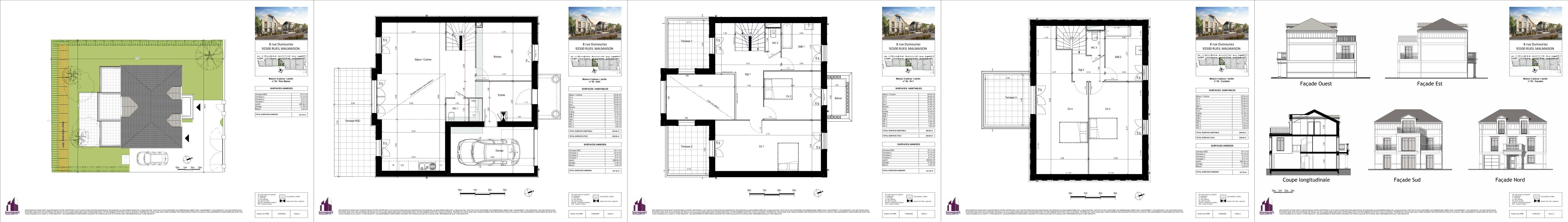
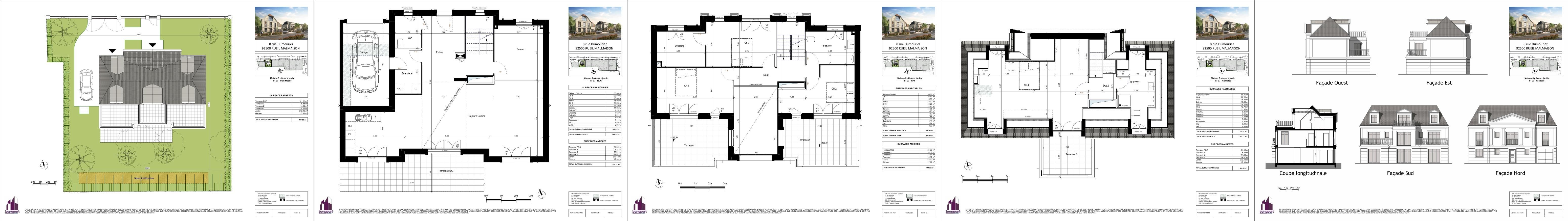
8 Dumouriez – L'art de vivre en maisons d'exception à Rueil-Malmaison.

Avec 8 Dumouriez, Bonapart signe un programme résidentiel unique : 8 maisons neuves haut de gamme, conçues pour incarner l'excellence de l'habitat du XXIᵉ siècle tout en s'inscrivant harmonieusement dans l'histoire de Rueil-Malmaison.

Idéalement situées entre l'hippodrome de Saint-Cloud et la forêt de Malmaison, les maisons bénéficient d'un cadre rare, prestigieux et profondément résidentiel.

Ce lieu d'exception appelait une architecture à sa mesure : élégante, inspirée, intemporelle.

Puisant dans l'esprit architectural de la Belle Époque, 8 Dumouriez réinterprète les codes classiques avec une écriture moderne, pour offrir un ensemble aussi cohérent que raffiné.

Ici, chaque maison est unique : volumétrie, lumière, organisation des espaces…

Rien n'est standardisé.

Une collection exclusive de 8 résidences singulières, pensées comme de véritables maisons de caractère, où le confort contemporain rencontre l'élégance patrimoniale.

Documents utiles

Les pièces les plus utiles pour comprendre le programme.

Plan 3D

Explorer le volume du programme

Une lecture plus concrète de l'implantation et de l'organisation des logements.

Quartier

Comprendre l'environnement du programme

Carte, points d'intérêt et aperçu de la ville pour situer le programme dans son environnement.

Chargement de la carte...

3 logements trouvés

Annexes
Chambres
Étage
Budget
Surface
program image
Disponible

1 623 000 €

Mensualité totale

--

Mensualité prêt --
Taxe foncière --
Charges --

Estimatif mensuel moyen sur 10 ans

Livraison

BONAPART

2ème trimestre 2028

program image
Disponible

1 646 000 €

Mensualité totale

--

Mensualité prêt --
Taxe foncière --
Charges --

Estimatif mensuel moyen sur 10 ans

Livraison

BONAPART

2ème trimestre 2028

program image
Disponible

1 674 000 €

Mensualité totale

--

Mensualité prêt --
Taxe foncière --
Charges --

Estimatif mensuel moyen sur 10 ans

Livraison

BONAPART

2ème trimestre 2028

Suggestions

Programmes similaires (12)

Découvrez d'autres programmes susceptibles de vous intéresser.

Slide

à partir de

916 800 €

Ville-d'Avray - 92

Les Impressionnistes

92410 107 Rue de Versailles

Livraison

MARIGNAN

2ème trimestre 2027

Slide

à partir de

398 000 €

Ville-d'Avray - 92

Les Villas d'Eugénie

92410 38 Avenue Thierry

Livraison

Les Nouveaux Constructeurs

3ème trimestre 2028

Slide

à partir de

741 000 €

Boulogne-Billancourt - 92

BOULOGNE D5 Lot 3 Accession

92100 Quai Georges Gorse

C

Livraison

EIFFAGE

3ème trimestre 2026

program image

à partir de

1 450 000 €

Suresnes - 92

Horizon

92150 4 Allée Beau Site

Livraison

NACA IMMOBILIER

4ème trimestre 2026

Slide

à partir de

403 900 €

Puteaux - 92

Victoria's Village

92800 128 Av. du Président Wilson

Livraison

Les Nouveaux Constructeurs

3ème trimestre 2029

Slide

à partir de

485 000 €

Puteaux - 92

Parc des Bergères

92800 45 Avenue des Bergères

Livraison

MARIGNAN

1er trimestre 2028

program image

à partir de

306 000 €

Chatou - 78

40 AVENUE FOCH

78400 40 AVENUE FOCH CHATOU

Livraison

EMERIGE

1er trimestre 2029

Slide

à partir de

586 955 €

Le Pecq - 78

RELAIS ET PAVILLON GRANCHAMP

78230 6 ALLÉE DES BELVEDERES|17 ALLÉE DES POTAGERS

Livraison

Histoire & Patrimoine

4ème trimestre 2025

program image

à partir de

346 560 €

Suresnes - 92

30 RUE MERLIN DE THIONVILLE

92150 30 rue Merlin de Thionville

Livraison

FRANCE LOGIS

3ème trimestre 2027

program image

à partir de

333 000 €

Boulogne-Billancourt - 92

TERRASSES EN SEINE

92100 QUARTIER SILLY-GALLIENI 11 QUAI ALPHONSE LE GALLO 80-82BIS RUE DE SEVRES

Livraison

Faubourg Immobilier

2ème trimestre 2029

Slide

à partir de

440 311 €

Suresnes - 92

LA CANOPEE

92150 2B rue d’Estienne D’Orves

Livraison

PIERRE_PROMOTION

3ème trimestre 2027

program image

à partir de

356 000 €

Sèvres - 92

CRISTALLERIE

92310 AVENUE DE LA CRISTALLERIE 92310 SEVRES

Livraison

LOFT DESIGN

3ème trimestre 2027

Parcours d'achat

Acheter votre logement en 4 étapes

  1. Étape 1

    Choisir et comparer

    1

    Comparez les lots, les plans et les prestations pour identifier le bien qui vous correspond.

  2. Étape 2

    Réserver le lot

    2

    Remplissez votre demande d'achat en ligne, puis validez les informations et documents demandés.

  3. Étape 3

    Financer et valider

    3

    Finalisez votre plan de financement, puis validez les pièces demandées pour sécuriser l'opération.

  4. Étape 4

    Signer et préparer la remise des clés

    4

    Suivez les dernières formalités avec votre conseiller jusqu'à la signature définitive et la livraison.

Demande d'achat 100% en ligne

Renseignez vos informations et déposez vos pièces justificatives directement depuis votre espace sécurisé.

Informations importantes

Ce qu'il faut savoir avant d'acheter

Dépôt

1 500 EUR

Versé au notaire 10 jours après signature

Prestations

À la carte

Travaux et parking chiffrés selon lot

Garanties

VEFA + GFA

Cadre légal sécurisé

Frais notaire

2-3%

vs 7-8% dans l'ancien

Frais et dépôt de garantie

Afin de valider votre achat, vous devrez verser un dépôt de garantie par virement auprès du notaire, 10 jours après la signature de votre contrat de réservation. Le dépôt affiché (1 500 EUR) correspond à une moyenne indicative et peut varier selon le promoteur.

Dépôt de garantie : 1 500 EUR

Cadre légal et étapes (VEFA)

L'activité de promotion immobilière est très encadrée. Pour la vente de logements neufs, c'est le régime de VEFA qui encadre l'opération.

Recherche du terrainMontage de l'opérationMarché travauxSuivi de l'opérationCommercialisationConstructionLivraisonSuivi des garanties

Prestations complémentaires (optionnelles)

Le montant dépend du lot, du promoteur et des choix retenus. Les prix fixes ci-dessous concernent uniquement les services financiers.

  • Travaux modificatifs du logementSur devis
  • Place de parking supplémentaireSelon le lot
  • Courtier en financement2 500 EUR
  • Négociation assurance crédit99 EUR
  • Gestion locativeSur devis

Liste non exhaustive, tarifs HT soumis à modification.

Frais de notaire réduits

2-3%dans le neufvs7-8%ancien

Acheter dans le neuf vous permet de réaliser une économie significative sur les frais de notaire.

Garantie financière (GFA)

Le promoteur de cette résidence est couvert par une Garantie Financière d'Achèvement (GFA). Cette garantie, réglementée par la loi, atteste de sa capacité à mener à bien la construction du projet.

Sécurité Financière : La GFA garantit que le financement nécessaire à l'achèvement du projet est en place.
Livraison Conforme : Vous pouvez avoir confiance dans le fait que la résidence sera livrée selon les normes convenues.
Sérénité pour les Acheteurs : En tant qu'acquéreur, cette garantie vous assure une transition en douceur vers votre nouveau logement.

Documents requis pour l'achat

Pour valider votre achat, le promoteur vous demandera :

  • 1 Pièce d'identité officielle avec photo
  • 2 Avis d'imposition
  • 3 Justificatif de domicile
  • 4 Dépôt de garantie par virement bancaire