Handee

ARANEA - programme neuf à Ascain (64310, Nouvelle-Aquitaine)

Chemin d'Ansorlua64310 AscainVINCI
Image 1
Image 2
2 photos

Navigation du programme

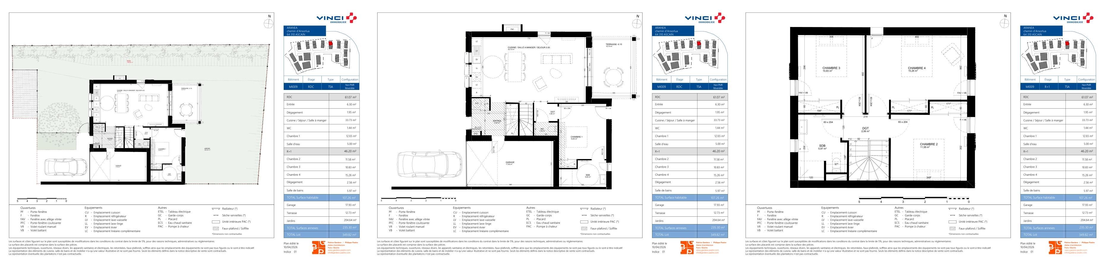
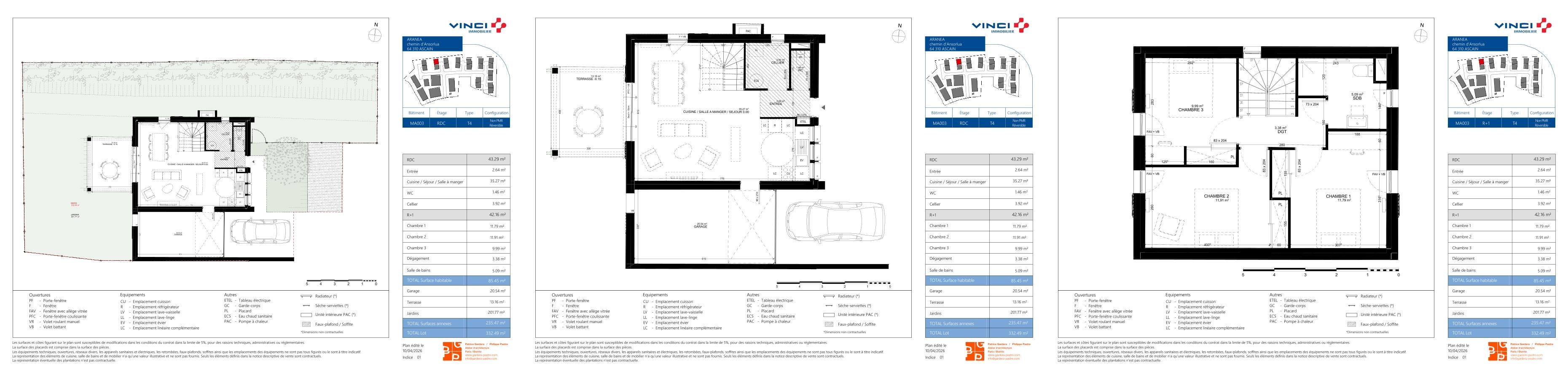
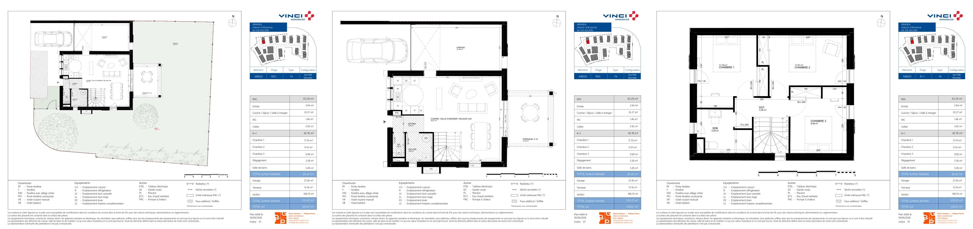
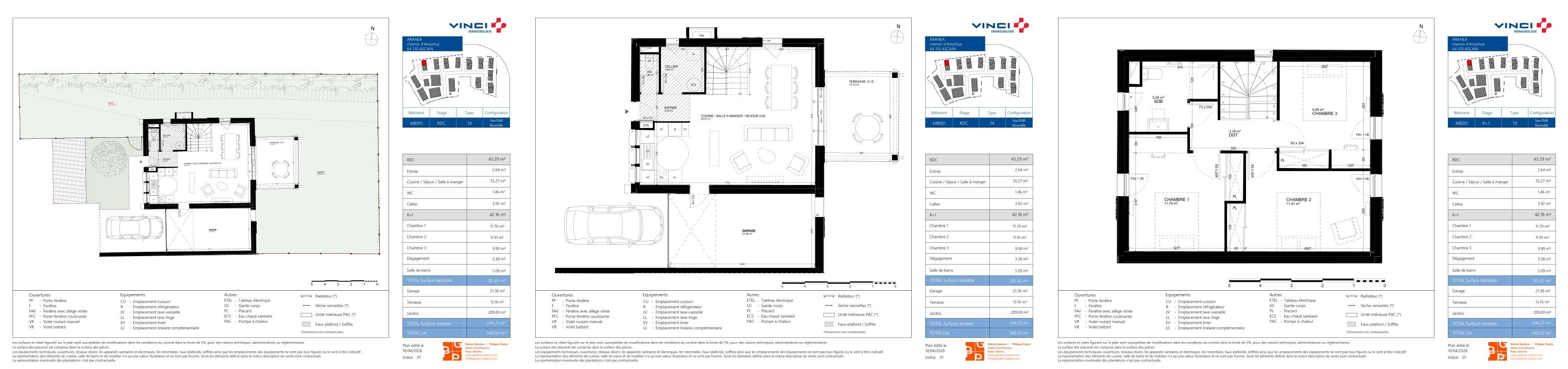
ARANEA

Résidence

Le programme en détail

Toutes les informations clés du programme, ses documents utiles et les prestations de la résidence.

Le programme

Les repères utiles pour situer la résidence.

Adresse

Chemin d'Ansorlua

Ville

64310 Ascain

Pyrénées-Atlantiques • Nouvelle-Aquitaine

Livraison prévue

3ème trimestre 2028

Actabilité

Le programme sera actable à partir du 14 décembre 2026

Classe énergie

Promoteur

VINCI

À propos du programme

A 8 min à pied du centre-bourg d'Ascain, découvrez le nouveau programme de VINCI Immobilier, essentiellement composé de maisons 4 pièces et 5 pièces.

Au pied de La Rhune, cette adresse privilégiée offre un cadre de vie rare, entre authenticité basque et douceur de vivre.

Les familles apprécieront l'accès rapide aux écoles, commerces et services : supérette, boulangerie, pharmacie, restaurants, ... tous les essentiels sont en accès immédiat.

Saint-Jean-de-Luz et ses plages se rejoignent en seulement 15 min, tandis que le Golf de la Nivelle est accessible en 8 min.

Chaque maison propose de beaux volumes ouverts sur un jardin privatif ainsi que des stationnements dédiés, dans une architecture inspirée des codes traditionnels du Pays Basque.

Un emplacement rare et central, conjuguant sérénité résidentielle et proximité immédiate de l’océan, pour vivre pleinement l’art de vivre basque.

Quartier

Comprendre l'environnement du programme

Carte, points d'intérêt et aperçu de la ville pour situer le programme dans son environnement.

Chargement de la carte...

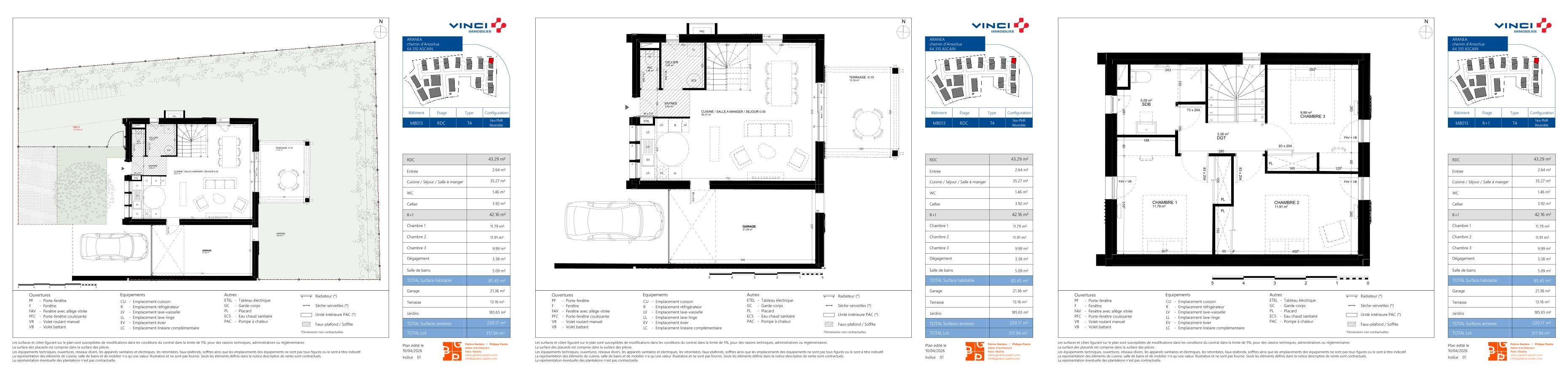
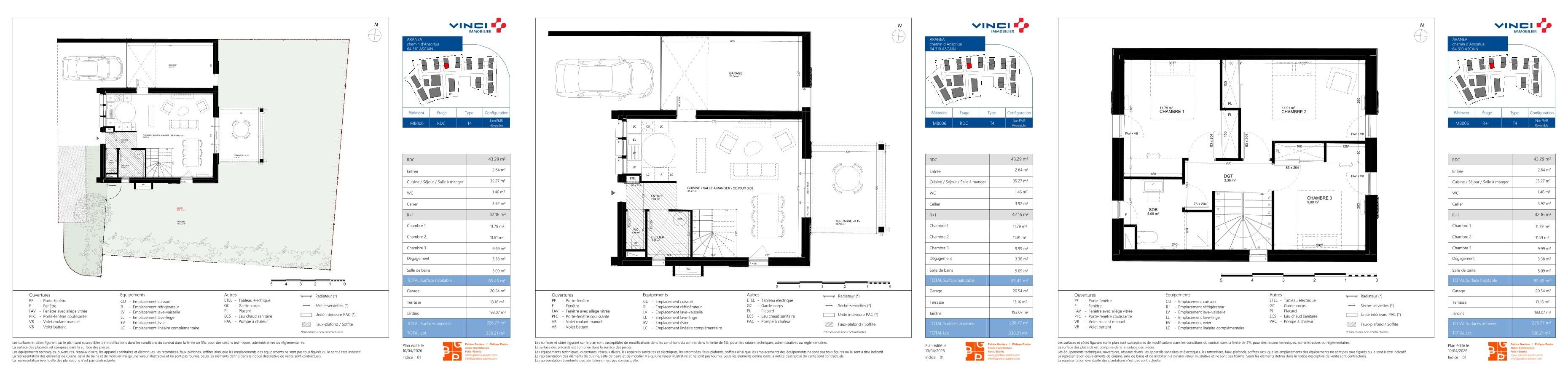
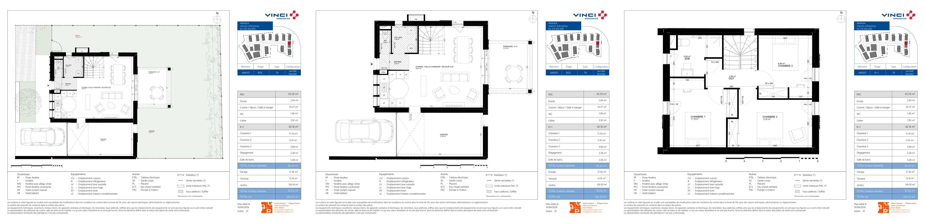
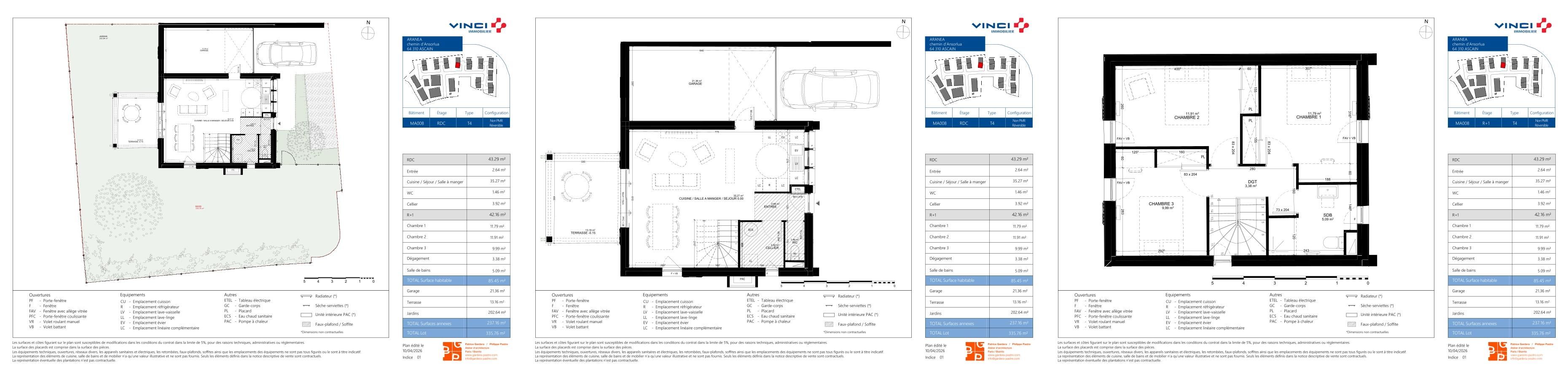
14 logements trouvés

Annexes
Chambres
Étage
Budget
Surface
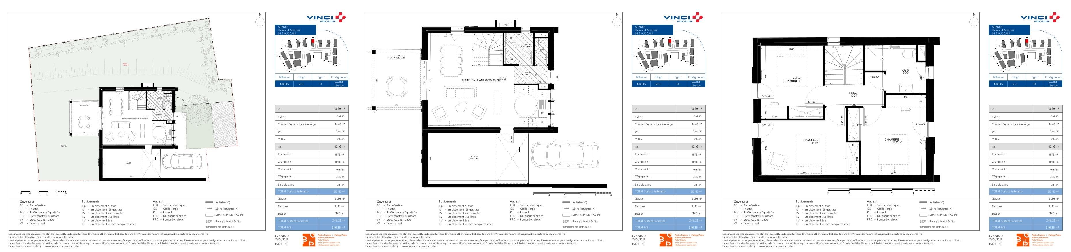
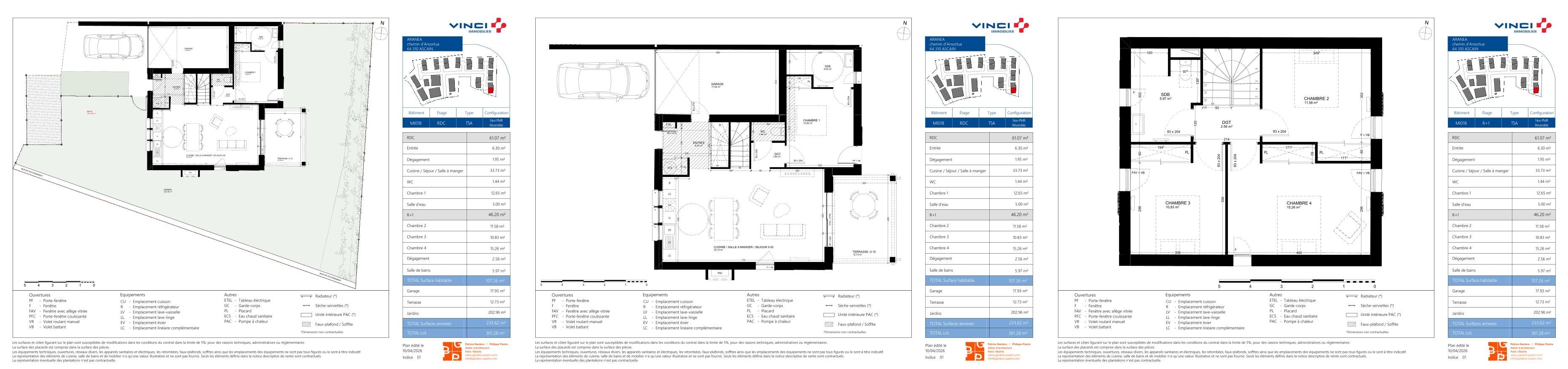
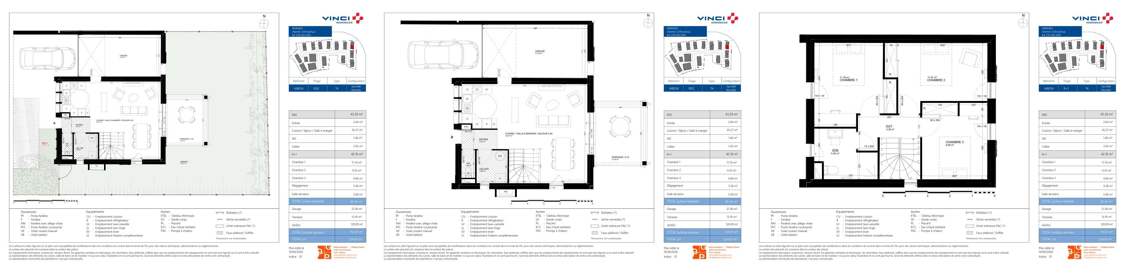
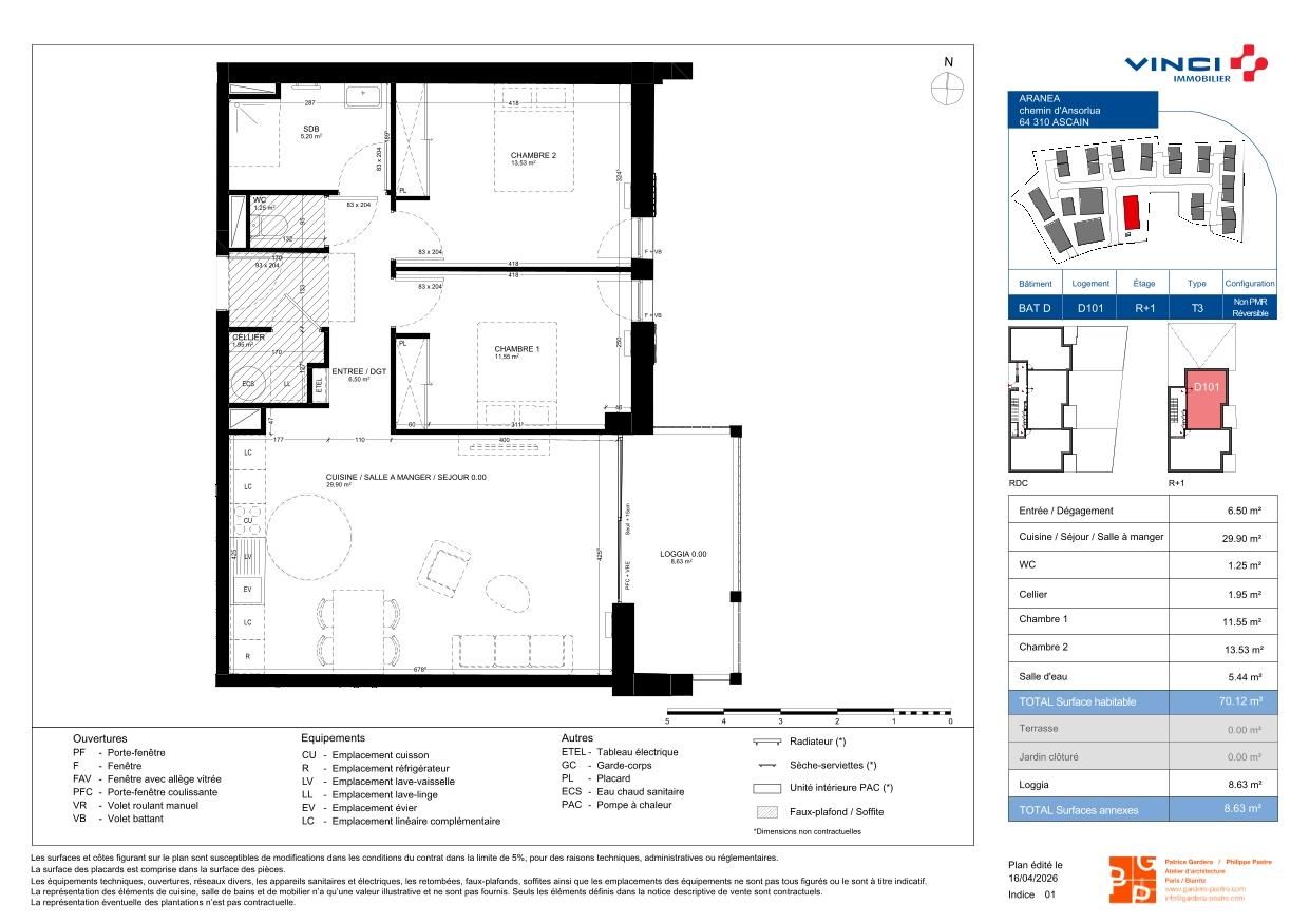
program image
Disponible

392 500 €

Mensualité totale

--

Mensualité prêt --
Taxe foncière --
Charges --

Estimatif mensuel moyen sur 10 ans

Livraison

VINCI

3ème trimestre 2028

program image
Disponible

456 000 €

Mensualité totale

--

Mensualité prêt --
Taxe foncière --
Charges --

Estimatif mensuel moyen sur 10 ans

Livraison

VINCI

3ème trimestre 2028

program image
Disponible

460 000 €

Mensualité totale

--

Mensualité prêt --
Taxe foncière --
Charges --

Estimatif mensuel moyen sur 10 ans

Livraison

VINCI

3ème trimestre 2028

program image
Disponible

464 000 €

Mensualité totale

--

Mensualité prêt --
Taxe foncière --
Charges --

Estimatif mensuel moyen sur 10 ans

Livraison

VINCI

3ème trimestre 2028

program image
Disponible

469 000 €

Mensualité totale

--

Mensualité prêt --
Taxe foncière --
Charges --

Estimatif mensuel moyen sur 10 ans

Livraison

VINCI

3ème trimestre 2028

program image
Disponible

478 000 €

Mensualité totale

--

Mensualité prêt --
Taxe foncière --
Charges --

Estimatif mensuel moyen sur 10 ans

Livraison

VINCI

3ème trimestre 2028

program image
Disponible

479 000 €

Mensualité totale

--

Mensualité prêt --
Taxe foncière --
Charges --

Estimatif mensuel moyen sur 10 ans

Livraison

VINCI

3ème trimestre 2028

program image
Disponible

479 000 €

Mensualité totale

--

Mensualité prêt --
Taxe foncière --
Charges --

Estimatif mensuel moyen sur 10 ans

Livraison

VINCI

3ème trimestre 2028

program image
Disponible

483 000 €

Mensualité totale

--

Mensualité prêt --
Taxe foncière --
Charges --

Estimatif mensuel moyen sur 10 ans

Livraison

VINCI

3ème trimestre 2028

program image
Disponible

483 000 €

Mensualité totale

--

Mensualité prêt --
Taxe foncière --
Charges --

Estimatif mensuel moyen sur 10 ans

Livraison

VINCI

3ème trimestre 2028

program image
Disponible

484 000 €

Mensualité totale

--

Mensualité prêt --
Taxe foncière --
Charges --

Estimatif mensuel moyen sur 10 ans

Livraison

VINCI

3ème trimestre 2028

program image
Disponible

485 000 €

Mensualité totale

--

Mensualité prêt --
Taxe foncière --
Charges --

Estimatif mensuel moyen sur 10 ans

Livraison

VINCI

3ème trimestre 2028

program image
Disponible

564 000 €

Mensualité totale

--

Mensualité prêt --
Taxe foncière --
Charges --

Estimatif mensuel moyen sur 10 ans

Livraison

VINCI

3ème trimestre 2028

program image
Disponible

566 000 €

Mensualité totale

--

Mensualité prêt --
Taxe foncière --
Charges --

Estimatif mensuel moyen sur 10 ans

Livraison

VINCI

3ème trimestre 2028

Suggestions

Programmes similaires (12)

Découvrez d'autres programmes susceptibles de vous intéresser.

Slide

à partir de

397 000 €

Arbonne - 64

GOIZ ARGIAN

64210 0022 RTE DU BOURG

Livraison

NEXITY

4ème trimestre 2026

Slide

à partir de

355 000 €

Bayonne - 64

CAP A MA

64100 0110 RUE MAUBEC

Livraison

NEXITY

1er trimestre 2027

Slide

à partir de

562 000 €

Anglet - 64

LE CLOS DE L'ETANG

64600 7 RUE DE L'ETANG

Livraison

VINCI

1er trimestre 2027

Slide

à partir de

250 000 €

Saint-Jean-de-Luz - 64

Anderenia

64500 0190 AMETZAGUE

Gare 9 minCommerces 5 minÉcole 10 min

Livraison

NEXITY

2ème trimestre 2027

Slide

à partir de

215 000 €

Saint-Martin-de-Seignanx - 40

GFI - OLATUA

40390 0000 ALL DE PETIT PIERRE

Livraison

NEXITY

3ème trimestre 2027

Slide

à partir de

270 711 €

Ivry-sur-Seine - 94

Ivry Confluences 2

94200 2 avenue de l'Industrie

Livraison

Les Nouveaux Constructeurs

4ème trimestre 2028

Slide

à partir de

219 000 €

Beauchamp - 95

Clos Des Bleuets

95250 Avenue Georges Clémenceau

Livraison

EIFFAGE

1er trimestre 2029

Slide

à partir de

250 009 €

Aubervilliers - 93

Les Allées du Parc

93300 7 - 13 rue de la Nouvelle France

Livraison

Les Nouveaux Constructeurs

2ème trimestre 2028

Slide

à partir de

218 616 €

Aubervilliers - 93

Les Terrasses du Canal

93300 47-49 rue de la haie coq

Livraison

Les Nouveaux Constructeurs

1er trimestre 2028

Slide

à partir de

204 739 €

Ivry-sur-Seine - 94

Ivry Confluences 1

94200 2 avenue de l'Industrie

Livraison

Les Nouveaux Constructeurs

3ème trimestre 2028

Slide

à partir de

229 081 €

Aubervilliers - 93

Le Clos des Vertus

93300 28 bis rue du Goulet

Livraison

Les Nouveaux Constructeurs

3ème trimestre 2028

Slide

à partir de

208 100 €

Toulouse - 31

Altoria

31000 Avenue Raymond Badiou

Livraison

MARIGNAN

4ème trimestre 2028

Parcours d'achat

Acheter votre logement en 4 étapes

  1. Étape 1

    Choisir et comparer

    1

    Comparez les lots, les plans et les prestations pour identifier le bien qui vous correspond.

  2. Étape 2

    Réserver le lot

    2

    Remplissez votre demande d'achat en ligne, puis validez les informations et documents demandés.

  3. Étape 3

    Financer et valider

    3

    Finalisez votre plan de financement, puis validez les pièces demandées pour sécuriser l'opération.

  4. Étape 4

    Signer et préparer la remise des clés

    4

    Suivez les dernières formalités avec votre conseiller jusqu'à la signature définitive et la livraison.

Demande d'achat 100% en ligne

Renseignez vos informations et déposez vos pièces justificatives directement depuis votre espace sécurisé.

Informations importantes

Ce qu'il faut savoir avant d'acheter

Dépôt

1 500 EUR

Versé au notaire 10 jours après signature

Prestations

À la carte

Travaux et parking chiffrés selon lot

Garanties

VEFA + GFA

Cadre légal sécurisé

Frais notaire

2-3%

vs 7-8% dans l'ancien

Frais et dépôt de garantie

Afin de valider votre achat, vous devrez verser un dépôt de garantie par virement auprès du notaire, 10 jours après la signature de votre contrat de réservation. Le dépôt affiché (1 500 EUR) correspond à une moyenne indicative et peut varier selon le promoteur.

Dépôt de garantie : 1 500 EUR

Cadre légal et étapes (VEFA)

L'activité de promotion immobilière est très encadrée. Pour la vente de logements neufs, c'est le régime de VEFA qui encadre l'opération.

Recherche du terrainMontage de l'opérationMarché travauxSuivi de l'opérationCommercialisationConstructionLivraisonSuivi des garanties

Prestations complémentaires (optionnelles)

Le montant dépend du lot, du promoteur et des choix retenus. Les prix fixes ci-dessous concernent uniquement les services financiers.

  • Travaux modificatifs du logementSur devis
  • Place de parking supplémentaireSelon le lot
  • Courtier en financement2 500 EUR
  • Négociation assurance crédit99 EUR
  • Gestion locativeSur devis

Liste non exhaustive, tarifs HT soumis à modification.

Frais de notaire réduits

2-3%dans le neufvs7-8%ancien

Acheter dans le neuf vous permet de réaliser une économie significative sur les frais de notaire.

Garantie financière (GFA)

Le promoteur de cette résidence est couvert par une Garantie Financière d'Achèvement (GFA). Cette garantie, réglementée par la loi, atteste de sa capacité à mener à bien la construction du projet.

Sécurité Financière : La GFA garantit que le financement nécessaire à l'achèvement du projet est en place.
Livraison Conforme : Vous pouvez avoir confiance dans le fait que la résidence sera livrée selon les normes convenues.
Sérénité pour les Acheteurs : En tant qu'acquéreur, cette garantie vous assure une transition en douceur vers votre nouveau logement.

Documents requis pour l'achat

Pour valider votre achat, le promoteur vous demandera :

  • 1 Pièce d'identité officielle avec photo
  • 2 Avis d'imposition
  • 3 Justificatif de domicile
  • 4 Dépôt de garantie par virement bancaire