Étape 1
Choisir et comparer
Comparez les lots, les plans et les prestations pour identifier le bien qui vous correspond.


Navigation du programme
Résidence
Toutes les informations clés du programme, ses documents utiles et les prestations de la résidence.
Les repères utiles pour situer la résidence.
Adresse
9 Rue Françoise Sagan
Ville
69007 Lyon 7e Arrondissement
Rhône • Auvergne-Rhône-Alpes
Livraison prévue
3ème trimestre 2028
Actabilité
Le programme sera actable à partir du 15 juillet 2026
Classe énergie
Promoteur
VINCI
À propos du programme
À la croisée de l’allée Christine Pascal et de la rue Françoise Sagan, Néo7 s’élève comme un signal fort, vert et contemporain, qui se détache en ligne de crête du quartier.
Il offre un trait d’union entre la ville et le nouveau parc habité, à la fois fragmenté dans sa verticalité de 7 et 11 étages et offrant une unicité architecturale épurée, mariage de béton, de métal et de bois connecté à la nature environnante.
Habitat urbain et bâti-jardin, la résidence a été guidée par une conception bioclimatique, proposant des logements multiorientés avec des séjours exposés au Sud et à l’Ouest permettant de maximiser l’entrée de la lumière et les apports énergétiques passifs.
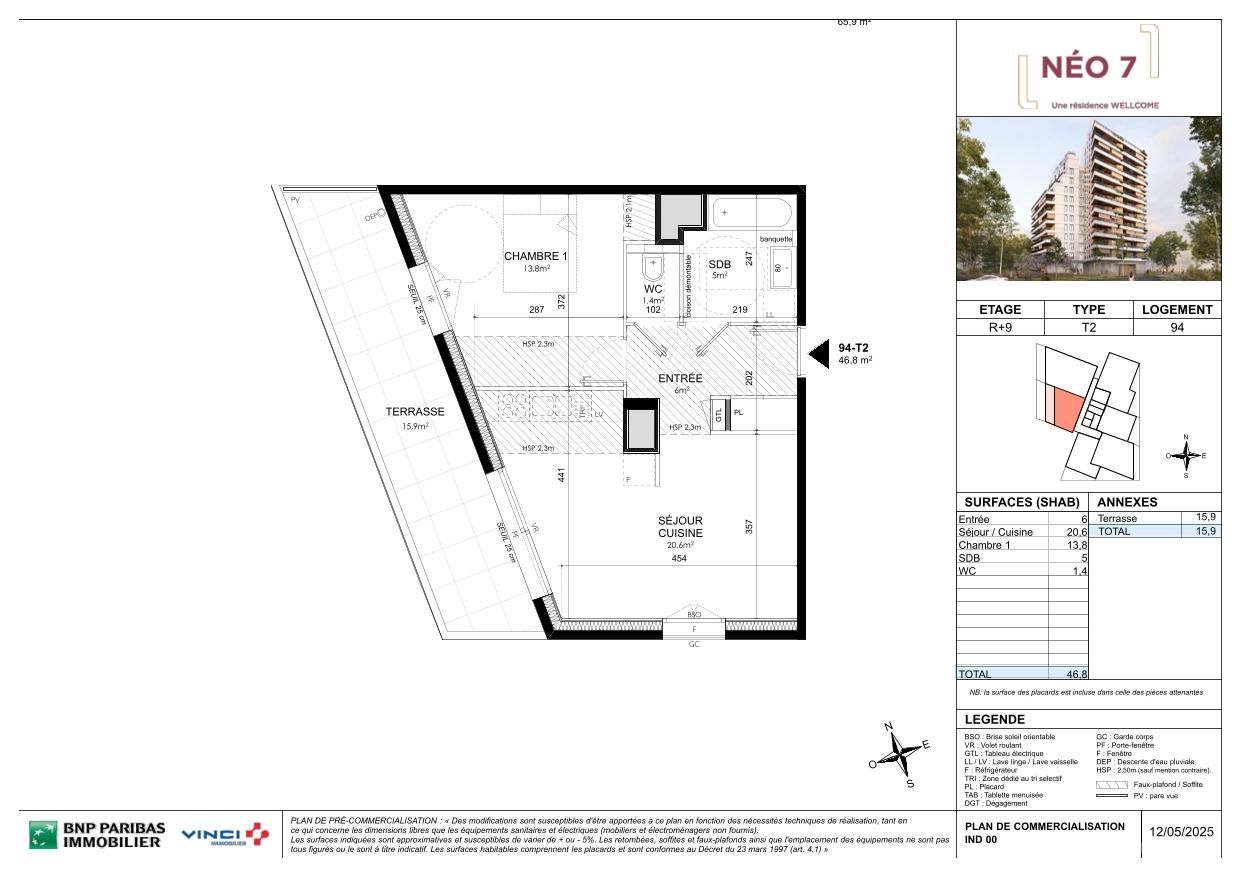
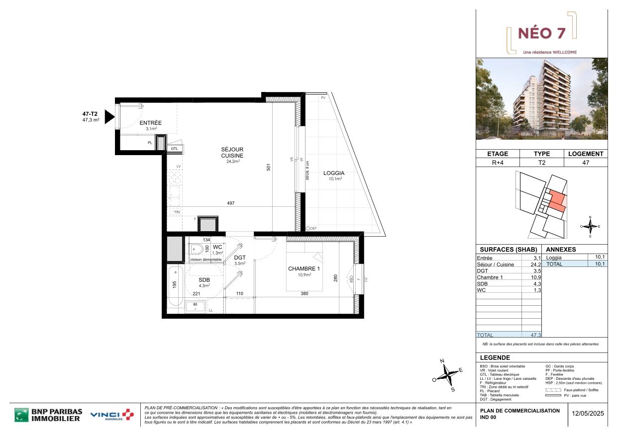
Du studio au 5 pièces, les logements se déclinent dans une grande variété de superficies, de plans (simplex et duplex), et de points de vue, offrent des extérieurs généreux tournés vers l’îlot paysager, l’allée plantée, la cour végétalisée…
Le pied d’immeuble, aéré et ouvert sur de grands espaces, est animé par une mixité de lieux à usages résidentiels : abris à vélos, locaux à poussettes, accès aux stationnements.
Néo7 dialogue avec la rue, les jardins, les espaces privatifs et partagés, comme un habitat qui a tout compris de ce que signifie « vivre-ensemble ».
Documents utiles
Les pièces les plus utiles pour comprendre le programme.
Quartier
Carte, points d'intérêt et aperçu de la ville pour situer le programme dans son environnement.
Découvrez d'autres programmes susceptibles de vous intéresser.
Parcours d'achat
Étape 1
Comparez les lots, les plans et les prestations pour identifier le bien qui vous correspond.
Étape 2
Remplissez votre demande d'achat en ligne, puis validez les informations et documents demandés.
Étape 3
Finalisez votre plan de financement, puis validez les pièces demandées pour sécuriser l'opération.
Étape 4
Suivez les dernières formalités avec votre conseiller jusqu'à la signature définitive et la livraison.
Demande d'achat 100% en ligne
Renseignez vos informations et déposez vos pièces justificatives directement depuis votre espace sécurisé.
Informations importantes
Dépôt
1 500 EUR
Versé au notaire 10 jours après signature
Prestations
À la carte
Travaux et parking chiffrés selon lot
Garanties
VEFA + GFA
Cadre légal sécurisé
Frais notaire
2-3%
vs 7-8% dans l'ancien
Afin de valider votre achat, vous devrez verser un dépôt de garantie par virement auprès du notaire, 10 jours après la signature de votre contrat de réservation. Le dépôt affiché (1 500 EUR) correspond à une moyenne indicative et peut varier selon le promoteur.
L'activité de promotion immobilière est très encadrée. Pour la vente de logements neufs, c'est le régime de VEFA qui encadre l'opération.
Le montant dépend du lot, du promoteur et des choix retenus. Les prix fixes ci-dessous concernent uniquement les services financiers.
Liste non exhaustive, tarifs HT soumis à modification.
Acheter dans le neuf vous permet de réaliser une économie significative sur les frais de notaire.
Le promoteur de cette résidence est couvert par une Garantie Financière d'Achèvement (GFA). Cette garantie, réglementée par la loi, atteste de sa capacité à mener à bien la construction du projet.
Pour valider votre achat, le promoteur vous demandera :